机械零件 Patrs List - 第356页
47-B 一 括 交 換 台車 Fe ed er Ca rt パーツレイアウト Ki t N o . キット 品番 Kit N am e キット名称 KXFX 03 6PA 00 セクションNo. PARTS LAYOUT Section No. S153

Ref
No.
Remarks
R
1
Q'ty
47-A
一
括
交
換
台車
Feeder Cart
イラスト
No.
Part No.
品 名品番 数量
R
2
パーツリスト
Kit N
o
.
キット品
番
Kit Name
キット名称
KXFX036PA00
Part Name
備 考
セクションNo.
PARTS LIST
Section No.
R
3
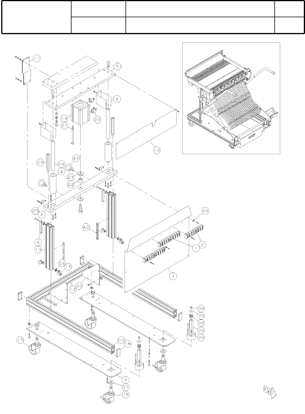
STOPPER
2
1 N210011343AA
BASE
1
2 KXFB02E8A03
BASE
1
3 KXFB02E9C01
BASE
1
4 KXFB02EAA02
PLATE
1
5 KXFB02EBA00
PLATE
1
6 KXFB02ECA01
SHAFT
1
7 KXFB02EDA00
COLLAR
27
8 KXFB02EEA00
BAR
2
9 KXFB02EGA03
SPACER
2
10 KXFB02EHA00
GUIDE
28
11 N210092714AA
GUIDE
28
12 N210092715AA
COVER
1
13 N210075728AB
COVER
1
14 KXFB02F3B02
BRACKET
10
15 KXFB02F4A00
GUIDE
3
16 KXFB02F5A00
COVER
2
17 KXFB02F6A00
COVER
1
18 N210034388AB
COVER
1
19 N210022420AA
COVER
1
20 N210022421AA
BRACKET
2
21 N210100142AA
COVER
1
23 N210022425AA
WASHER
20
24 KXF03P0AA00 T10
PIN
4
25 KXF02YTAA00 MS6-25
SPACER
28
26 KXF0CTQAA00 BRU-309S
CAP
56
27 KXF0DJ4AA00 FC M3
PIN
4
28 KXF0CXHAA00 1017003-40008
PIN
2
29 KXF0CXJAA00 1017003-50010
SPACER
8
30 N510016261AA BSF-425E
WASHER
10
31 KXF0CTTAA00 WSSB13-5-5
SPACER
4
33 N510016262AA BSF-480E
PIN
6
34 KXF0CXKAA00 1017003-60012
BUSH
2
35 KXF0CTVAA00 JBA12-16
JOINT
1
36 KXF08GBAA00 KQLE06-00
PIN
112
38 KXF0CXLAA00 1017003-30010
GROMMET
1
39 KXF007TAA00 C-30-SG-32A
COLLAR
4
40 N510004894AA NCLB10-16-18.0
WASHER
4
41 KXF0CUDAA00 WSSB25-10-5
BRACKET
1
42 N210064292AA
COLLAR
2
44 N510030795AA 87AZC4
COVER
1
45 N210022436AA
PACKING
1
46 KXF0E24RA00 FC-779-4-1(DA KXF0E24RA00)
KNOB
2
47 KXF02ESAA00 KRM-32-M5X10
BOLT
28
48 N510018811AA
Hexagon socket head cap screw M3X18-10.9 A2J (Trivalent)
PLUG
1
49 KXF02CRAA00 KQP-06
GUIDE
1
50 N210029161AA
COVER
1
51 N210060009AD
SCREW
2
52 N510018104AA Pan head machine screw Cross recessed M2X4
BAND
1
53 KXF0290AA00 KCA-34
STOPPER
2
54 N210085294AA
S152

47-B
一
括
交
換
台車
Feeder Cart
パーツレイアウト
Ki
t
N
o
.
キット
品番
Kit Name
キット名称
KXFX036PA00
セクションNo.
PARTS LAYOUT
Section No.
S153

Ref
No.
Remarks
R
1
Q'ty
47-B
一
括
交
換
台車
Feeder Cart
イラスト
No.
Part No.
品 名品番 数量
R
2
パーツリスト
Kit N
o
.
キット品
番
Kit Name
キット名称
KXFX036PA00
Part Name
備 考
セクションNo.
PARTS LIST
Section No.
R
3
HOLDER
4
1 KXFB02ERA00
HOLDER
2
2 KXFB02ESA00
PLATE
1
3 KXFB02EWA01
BUSH
2
4 N210011274AA
PLATE
1
5 N210009545AA
BAR
2
6 N210011344AA
COVER
1
7 N210022427AA
COVER
2
8 N210022428AA
PLATE
2
9 N210022429AA
COVER
1
10 N210022430AA
BRACKET
2
11 N210019839AA
FRAME
2
12 KXF0CTXAA00 SFF-364 L=849
FRAME
2
13 KXF0DLSAA00 SFF-364 L=370 TL
FRAME
1
14 KXF0CTZAA00 SFF-364 L=590
BRACKET
6
15 KXF0ATEAA00 SFJ-018
CAP
4
16 KXF0ARXAA00 SFA-005
CASTER
2
17 N510004570AA 420SA-N75-B
CASTER
2
18 N510004571AA 413SA-N75-B
CYLINDER
1
19 N510005138AA ACQ80X75
SPEED-CONTROLLER
2
20 KXF0952AA00 AS3201F-03-06S
BOLT
4
21 N510017161AA
Hexagon socket head cap screw M10X130-10.9 A2J (Trivalent)
COLLAR
1
22 KXF0CU7AA00 NCLB16-25-23.0
WASHER
2
23 KXF0CU8AA00 WSSB50-16-5
POST
2
24 N510004786AA ETKRFT-25-250-1
MAGNET
2
25 KXF03HBAA00 SM-77S
NUT
48
26 KXF0ATGAA00 SFB-002
POST
2
29 N510008398AA LSBWRKT-19-133
GUIDE
2
33 KXFB02F0A01
SHAFT
2
34 KXFB02F1A00
WASHER
2
35 KXF0AJYAA00 WSSB30-8-2
SPRING
2
36 KXF0DLTAA00 (DA 0DLTA)
WASHER
4
37 KXF0DLUAA00 WSSB40-16-5
BOLT
2
38 KXF0DREAA00 CBSS8-12
BOLT
2
40 N510018798AA
Eyebolt M16 Steel Unichrome white (Trivalent)
NUT
4
42 KXF0DY18A00 SFJ-606
PLATE
2
43 N210022437AA
WASHER
12
44 N510020101AA Thick washer for M6
S154