机械零件 Patrs List - 第393页
Ref No. Remark s R 1 Q'ty 55-C 下 流 延 長 コンベア:305mm Downstream Ex tension Conveyor:305mm イラスト No. Part No. 品 名 品番 数量 R 2 パーツリスト Kit N o . キット品 番 Kit Name キット名称 N610003227AA Part Name 備 考 セクションNo. PARTS LIST Section No…

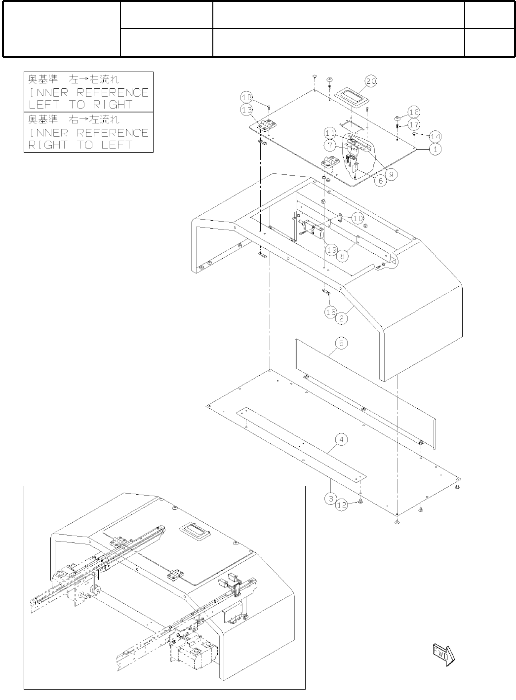
55-C
下
流
延
長
コンベア:305mm
Downstream Extension Conveyor:305mm
パーツレイアウト
Ki
t
N
o
.
キット
品番
Kit Name
キット名称
N610003227AA
セクションNo.
PARTS LAYOUT
Section No.
S189

Ref
No.
Remarks
R
1
Q'ty
55-C
下
流
延
長
コンベア:305mm
Downstream Extension Conveyor:305mm
イラスト
No.
Part No.
品 名品番 数量
R
2
パーツリスト
Kit N
o
.
キット品
番
Kit Name
キット名称
N610003227AA
Part Name
備 考
セクションNo.
PARTS LIST
Section No.
R
3
COVER
1
1 N210006399AA
S
COVER
1
2 N210006400AB
COVER
1
3 N210006401AA
PLATE
1
4 N210028743AA
COVER
1
5 N210024437AA
S
COVER
1
6 N210009673AA
S
COVER
1
7 N210009675AA
S
BRACKET
1
8 N210009676AA
BRACKET
1
9 N210009677AA
S
NUT-PLATE
1
10 KXFB03UPA00
NUT-PLATE
1
11 N210004525AA
SCREW
19
12 N510018282AA
Cross recessed Truss head machine screw M4X8-4.8 A2J (Trivalent)
HINGE
2
13 KXF0DXYXA00 BP-19-1-2-B
RUBBER-CUSHION
2
14 KXF01E2AA00 C-30-CS-4
NUT
4
15 KXF0DX7PA00 SQN4-32-20
CAP
2
16 KXF0DLNAA01 CP-328-B-4-ivory(DA KXF0DLNAA01)
BOLT
2
17 N510017616AA
Hexagon socket Flat head bolt M4X12-10.9 A2J (Trivalent)
BOLT
8
18 N510017517AA
Hexagon socket button head screw M4X12-10.9 A2J (Trivalent)
SW(1000mm)
1
19 N610002227AA
S
PULL
1
20 KXF0DYFRA00 AP-291-3
S190

55-D
下
流
延
長
コンベア:305mm
Downstream Extension Conveyor:305mm
パーツレイアウト
Ki
t
N
o
.
キット
品番
Kit Name
キット名称
N610003227AA
セクションNo.
PARTS LAYOUT
Section No.
S191