YG12_kjv_e - 第6页
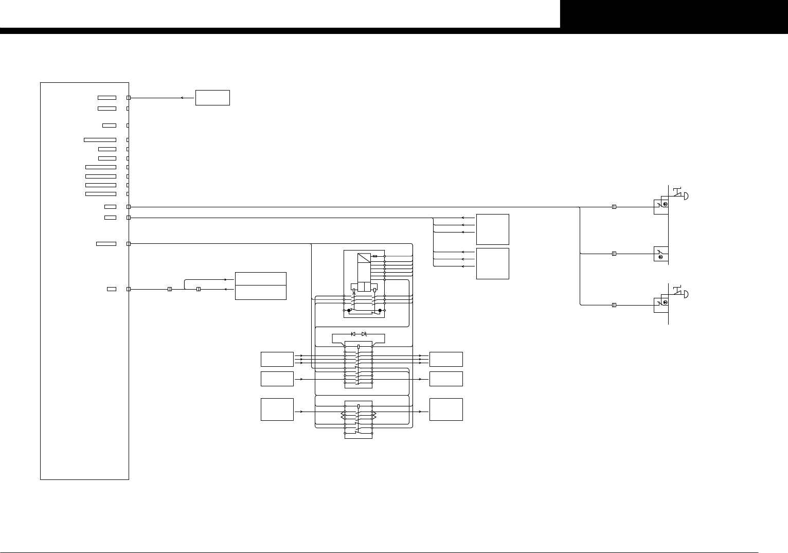
Confidential & Proprietary P A G E F.TERMINAL BOA RD CN18 CN17 J0191 J0181 OPE.PANEL F I/O CONVEYOR BOARD ASSY TCN1 R.TERMINAL BOA RD CN19 J0193 CN20 OPE.PANEL R J0212 J0211 J0210 J0209 J0208 J0207 F.ACTIVE(WHITE ) F…

Confidential & Proprietary
PAGE
POWER CIRCUITCN1DC24V IN
I/O CONVEYOR BOARD ASSY
P025
J0046CN1
CN2TAPE CUT
COM CN14
CN13CONTACTOR
J0164CN13
CN14 J0102
I/O AI/O A
J0101
See Page 2
CONTROL BOX
INTERFACE BOARD
See Page 5
IF1 I/O
J0103
CN12EMG1
CN11EMG2
CN6
CN5
NOZZLE SENSOR 4
NOZZLE SENSOR 3
NOZZLE SENSOR 2
NOZZLE SENSOR 1
CN10
CN9
CN8
CN7
SPARE DI
SPARE DI
J0162
J0163CN11
CN12
FRONT SIDE
REAR SIDE
COVER
EMG
F COVER
F EMG
FRONT EMG SW
SB31
FRONT
SQ101
J0166
J0168
MULTI CAM UP/LOW CN4
CN3SPARE
ANC STATION (OPTION)
COVER SW
A2 0V24
POWER CIRCUIT
NF11
J0165
POWER CIRCUIT
CONTROL BOX
A2 0V24A1
U54
V54
W54
U52
V52
W52
A1
A2
LOGIC
DC
AC
T11
T12
T22
T31
T32
T31
T32
T11 EMG0
T12 EMG22
T22 EMG22
33 +24V
23 +24V
13 +24V
34 +24B
14
24 +24E
33
23
34
24
14 13
K2 K1CH1CH2
42
KM10
41
S10
A2 0V24A1
+48A +48V
POWER CIRCUIT
GS31
POWER CIRCUIT
HEAD SERVO +48V
GS21
POWER CIRCUIT POWER CIRCUIT
C/V MOTOR DRIVER
1154+24C1153 +24B
CONV+24V CONV+24E
1122 T32A1121 T32B
13 14
A1 A2
53 54
73 74
83 84
21 22
63 64
1/L1
3/L2
5/L3
2/T1
4/T2
6/T3
KM11/KM11A
A1 A2
1/L1
3/L2
5/L3
2/T1
4/T2
6/T3
1222 T321221 T32A 21 22
KM12/KM12A
Y1OT
Y1ORG
HEAD EMG
See Page 2
CONTROL BOX
See Page 6
HEAD SERVO UNIT
Y1OT
Y1ORG
HEAD EMG
SRV1 GOOD
SRV2 GOOD
I/F GOOD
SERVO1 GOOD
SERVO2 GOOD
INTERFACE GOOD
EMGR EMG
REAR EMG SW
SB32
J0167
A1 +24V
GS21,QF23
See Page 13
See Page 13
See Page 13 See Page 13
See Page 13
See Page 13
See Page 13
33
41
34
42
1233 +24C 1234 SRV ON
CC.V3
3
I/O CONVEYOR -1-
YG12

Confidential & Proprietary
PAGE
F.TERMINAL BOARD
CN18
CN17
J0191
J0181
OPE.PANEL F
I/O CONVEYOR BOARD ASSY
TCN1R.TERMINAL BOARD CN19
J0193
CN20OPE.PANEL R
J0212
J0211
J0210
J0209
J0208
J0207
F.ACTIVE(WHITE)
F.START(GREEN)
F.READY(WHITE)
F.RESET(WHITE)
F.ACTIVE
F.START
F.STOP
F.ERR.CLR
F.READY
F.RESET
F2 SW DI
F2 SW DO
SB01
SB02
SB03
SB04
SB05
SB06
TERMINAL BOARD ASSY
TCN1
TERMINAL BOARD ASSY
TCN1R
TCN1F
N0100880/T0100040
N0100881/T0100041
N0100882/T0100042
N0100883/T0100043
N0100884/T0100044
N0100885/T0100045
CN17
CN18
CN19
FRONT(Left side)
REAR(Right side)
HL12
T0100047
F.STOP(RED/WHITE)
F.OPERATION PANEL
PU-AXIS 1 ORIGIN
SQ002
W1-AXIS ORIGIN
SQ004
TCN8R
TCN11R
N0100904
N0100906
CN8
CN11
CN17
CN3
CN10
CN5
CN18
CN14
J0204
CN26
CN30
CN9
CN13
CN25
CN29
F.ERROR CLEAR(YELLOW/BLUE)
J0203
J0205
CN21
CN5
CN18
TCN3F
TCN10F
CN3
CN10
J0200
SQ041A
SQ041B
TCN4F
TCN14F
CN4
CN14
J0201
SQ042A
SQ042B
FEEDER FLOAT UPPER(OPTION)
F1 FEEDER FLOAT(OPTION)
N01008C0
FRONT(L) FEEDER FLOAT
N01008C1
FRONT(L) FEEDER FLOAT UPPER
TCN2R
YV082
SIDE BLOW
SQ083A
SQ083B
TCN15R
BLOW STATION
N0100907
SIDE BLOW
BLOW STATION
T01000E2
J0195
CN15
CN2
BLOW STATION
TCN6R
CN6
CN23
CN24
CN20
CN7
CN12
CN16
CN28
CN19
CN22
CN27
CN4
TCN24R
TCN28R
ION I/F BOARD ASSY
J0871
IONIZER ASSY(OPTION)
SQ031
SQ032
SQ033
TCN8F
TCN7F
TCN11F
SQ035
TCN19F
SQ037
TCN12F
SQ039
TCN20F
CONVEYOR ENTRANCE
WAITING POSITION
STAGE-1 PCB MOUNT POSITION
SUB STOPPER HIGH END
WORK OUT1
N01008F0
N01008F1
N01008F2
N01008F6
N01008F4
N0100900
CN8
CN7
CN11
CN12
CN17
CN19
CN20
SQ040
J0194TCN28F
CONVEYOR EXIT
N0100901
CN24
CN28
TCN24F
P
HEAD AIR
HEAD AIR PRESSURE
SP12
SP11
N0100902
P
FDR AIR FEEDER AIR PRESSURE
STAGE-1 MAIN STOPPER HIGH END
CN26
CN30
CN9
CN13
CN25
CN29
CN27
CN15
CN16
CN2
CN23
CN6
CN22
CN21
P025
See Page 11
P014
P013
F2 FEEDER FLOAT(OPTION)
J0202
TCN18F
TCN5F
SQ043A
SQ043B
N01008C2
FRONT(R) FEEDER FLOAT
CC.V3
4
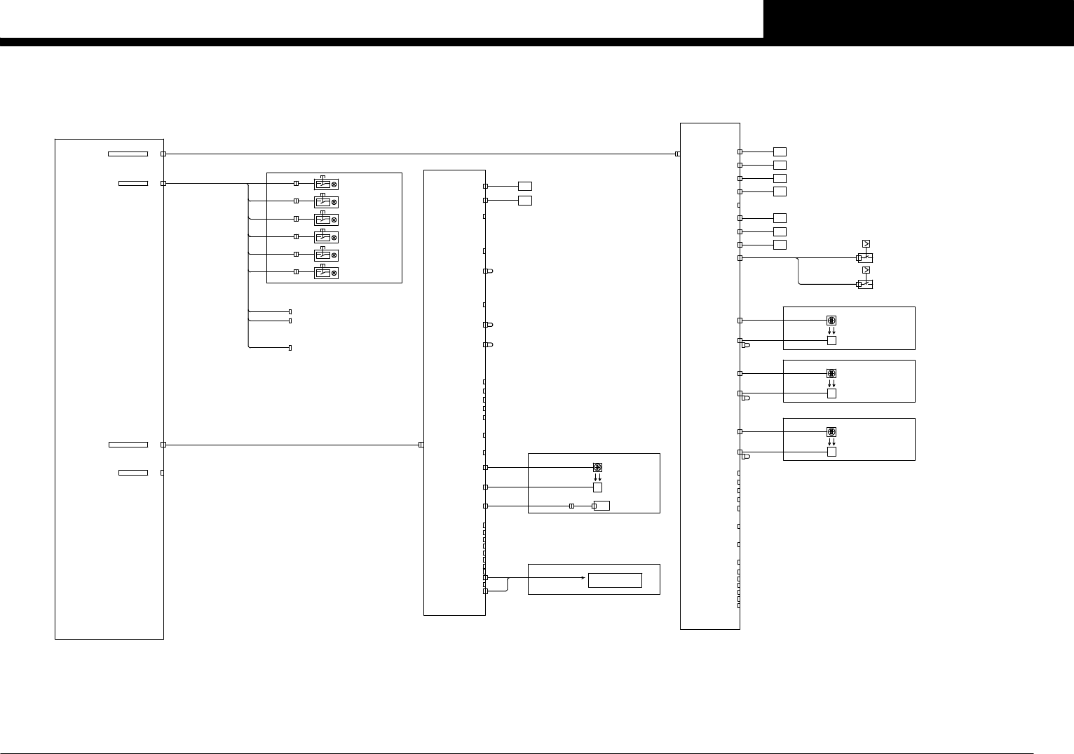
I/O CONVEYOR -2-
YG12

Confidential & Proprietary
PAGE
P025
I/O CONVEYOR BOARD ASSY
CN29SS FEEDER
CN27+24VF5
J0028CN27
CN28
J0049
CAMERA UNIT SEL.
See Page 7
MULTI CAMERA POWER
+24VS2
CN28
See Page 2
SERVO BREAKE +24V
CONTROL BOX
EXT.PWR
+24VD4
+24VD3
CN31
CN30
CN2 CN3
CONVEYOR MOTOR 1 30W
CV1
CV1 CN3CV1 CN2
CN1
DCN1
J0064
□60 MAX 300rpm
P011
CONVEYOR DRIVER 1
J0047
CN32MCH C/V MOTOR
J0062
CN33YTF C/V MOTOR
POWER CIRCUIT
KM11A
CN32
CN43+24VF3,+24VC1
J0042CN43
I/O HEAD
I/O HEAD POWER
See Page 6
CN40SIGNAL TOWER
CN39FAN LOCK ALARM
+24VD2
+24VD1
CN38
CN37
CN41AMF
J0048
J0221
J0225
T0100034
T0100035
AMF1
AMF2
CN39
CN40
CN41
FAN1
FAN2
FAN3
FAN4
CN36+24VF7
CN41
+24V
+24VJ0885
STACK STICK FEEDER(OPTION)
CN1 COM1
CN2 COM2
DI00/ANC
DI01/ANC
DC24V INCN10
SQ061
SQ062
N0101070
N0101071
NOZZLE STATION OPEN
NOZZLE STATION CLOSE
ANC CN1
ANC CN2
I/O A
I/O A
ANC+24V
ANC CN10
J0112
J0056
CN35+24VF6
J0051CN35
CN11
CN11A
DO00,DO01/ANC
J0196 ANC OPEN
YV022
T0100800
NOZZLE STATION OPEN
ANC CTRL BOARD ASSY
ANC STATION(OPTION)
BUZZER
RUN(GREEN)
HL11
T01000D2
T01000D0
T01000D1
T01000D6
ALARM(RED/WHITE)
ERROR(YELLOW/BLUE)
I/O A I/O A
J0102
See Page 2
CONTROL BOX
INTERFACE BOARD
J0101
IF1 I/OCN14
I/O CONVEYOR BOARD
See Page 3
J0103
HL11
21
OFF
ON
3 5 64
DIP SW(S2)
M19
ION I/F BOARD ASSY
IONIZER ASSY(OPTION)
CN34+24E
CN34
J0871
CN44+24VS1
J0711CN44
See Page 9
I/O TF BOARD POWER
CN2
REAR BOTTOM COVER
FAN2
FAN1
FAN3
FAN4
SIDE PANEL
SIDE PANEL
TRNS ROOM
N01008B4
N01008B5
N01008B6
N01008B7
CN6
CN6A
CN7A
CN7
See Page 13
See Page 11
REAR RIGHT(R1)REAR LEFT(R2)
J0086J0085
FRONT CENTER
REAR CENTER
J0083
COVER EARTH
FRONT RIGHT(F2)
J0087
J0084
J0099
USB
CONVEYOR
J0081
CN21CART UP/DOWN VLV
CN25GATE
CN23
CN24
MULTI CAM.UP/DOWN
VLV(CONV.)
J0222
CN22CART PW.ON/OF SIGNAL
CN24
YV006
YV005
EXIT ST
SUB ST SUB STOPPER UP
EXIT STOPPER UP
T0100024
T0100025
YV003
CLAMP 1
T0100022
MAIN ST1
YV001
T0100020
PCB CLAMP
MAIN STOPPER UP
STAGE-1
STAGE-1
EX
J0187
J0186
PREV C
NEXT B
NEXT A
PREV B
PREV A
J0199
J0198
INTERFACE PANEL
INTERFACE PANEL
J0224
J0223
PREVIOUS INTERFACE
BA IN/UR IN
BUSY OUT/LR OUT
NEXT INTERFACE
BUSY IN/LR IN
BA OUT/UR OUT
COUNT RESET
3 OUT
4 COM
5
1 4
3
KA01
5 DO
1 0V
PREV
J0185CN25
P018
CC.V3
5
I/O CONVEYOR -3-
YG12