YG12_kjv_e - 第9页
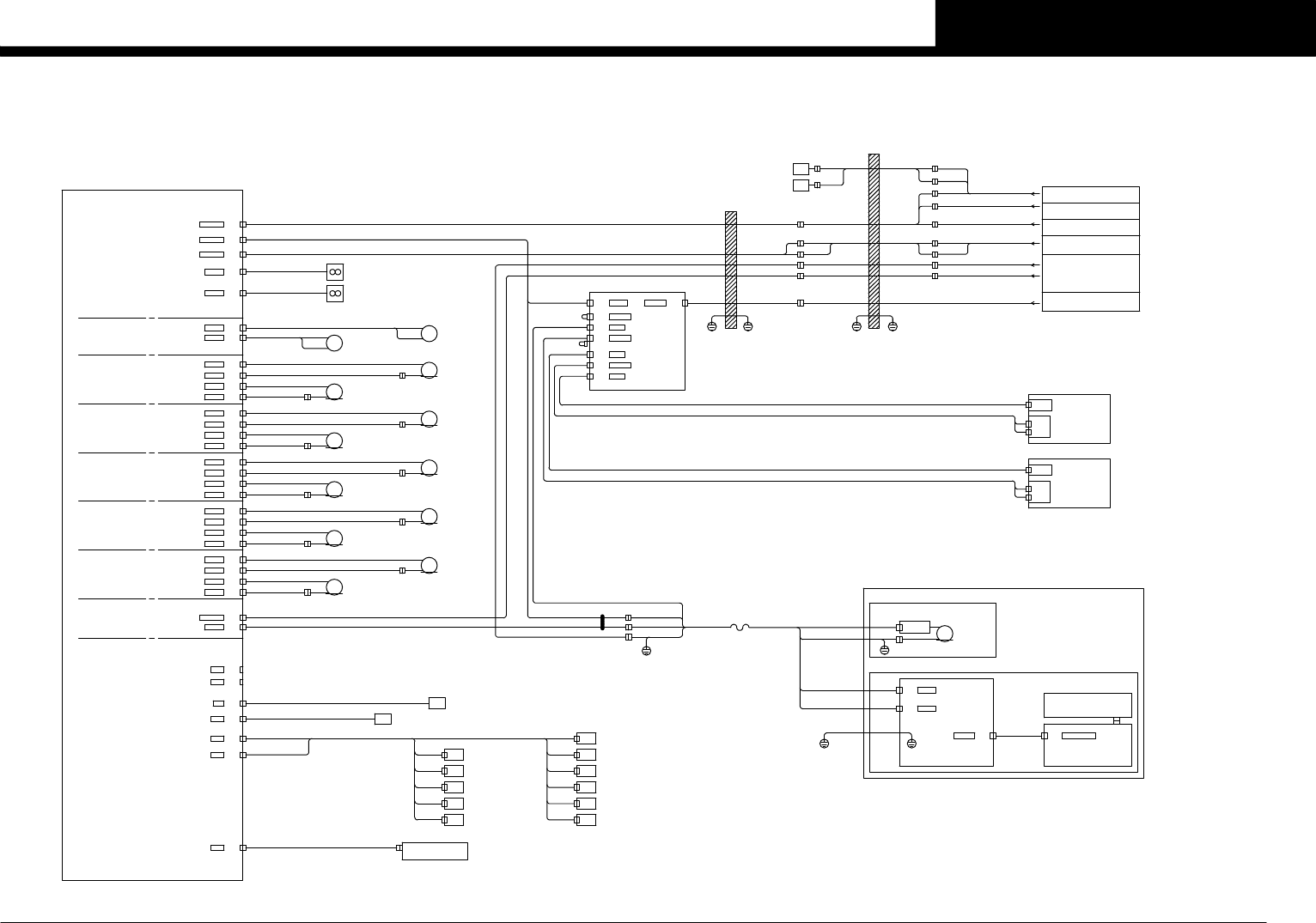
Confidential & Proprietary P A G E SIDE CN3 CN4 COAX CN5 DVRI/F M.LIGHT COAX. ASSY CN1 MAIN MAIN J0510 J0509 SUB CX MAI N SUB CX MAIN P070 MAI N MAIN P069 MAI N MAIN P068 MAI N MAIN P067 MAI N MAIN P066 M I/F MAIN P0…

Confidential & Proprietary
PAGE
CN2
CN1
FID.LIGHT BRD. ASSY
CN2
CN1
FID.LIGHT BRD. ASSY
FIDUCIAL CAMERA 2(OPTION)
FIDUCIAL CAMERA 1
FCAM1
FCAM2
FID2
FID1
J0504
J0300
J0505
J0301
E03
SC+24V
Y1-AXIS OVER TRAVEL
N0100981
N0100980
Y1-AXIS ORG
M07
M06
M09
M08
M11
M10
M13
M12
M15
M14
M17
M16
R2-AXIS 15W
J0305
J0301
J0321
CAM1
CAM2
P082
LIGHT1CN7
CAM1CN4
CAM2CN6
LIGHT1
CAM3
Z10-AXIS 10W
Z9-AXIS 10W
Z8-AXIS 10W
Z7-AXIS 10W
Z6-AXIS 10W
Z5-AXIS 10W
Z4-AXIS 10W
Z3-AXIS 10W
Z2-AXIS 10W
MAX 1m/s
MAX 1m/s
MAX 1m/s
MAX 1m/s
MAX 1m/s
MAX 1m/s
MAX 1m/s
MAX 1m/s
MAX 1m/s
Z1-AXIS 10W
MAX 1m/s
□42 MAX 2000rpm
□42 MAX 2000rpm
R1-AXIS 15W
IF10
IF9
IF8
IF7
IF6
IF5
IF4
IF3
IF2
IF1
J0318
J0317
J0316
J0314
J0313
J0312
J0311
J0315
SCP
IF SCP
CN19
CN18
CN21
HEAD EMG
CAMOUT
FAN6
FAN5
CN3
CN2
CN1
Z10M
Z9M
Z8M
Z7M
Z6M
Z5M
Z4M
Z3M
Z2M
Z1M
J0320
YV311
HEAD 10(VACUUM/BLOW)
HEAD 9(VACUUM/BLOW)
HEAD 8(VACUUM/BLOW)
HEAD 7(VACUUM/BLOW)
HEAD 6(VACUUM/BLOW)
HEAD 10
HEAD 9
HEAD 8
HEAD 7
HEAD 6
SH BLOW
T002C000/T002C002
T002C001/T002C003
T002C400/T002C402
T002C401/T002C403
T003C400
SHAFT BLOW
YV310
YV309
YV307
YV308
T002C800/T002C802
YV306
HEAD 5(VACUUM/BLOW)
HEAD 4(VACUUM/BLOW)
HEAD 3(VACUUM/BLOW)
HEAD 2(VACUUM/BLOW)
HEAD 5
HEAD 4
HEAD 3
HEAD 2
HEAD 1(VACUUM/BLOW)HEAD 1
T002C801/T002C803
T002CC00/T002CC02
T002CC01/T002CC03
T003C000/T003C002
T003C001/T003C003
YV301
YV302
YV303
YV304
YV305
IF SCP
HEAD SERVO UNIT ASSY
CN15DI1
CN14DI0
CN17
CN16
N002D005
N002D006
SQ302
X1-AXIS
OVER TRAVEL
SQ301
X1-AXIS
ORIGIN
ORG
XORG
OT
XOT
CN19
CN18
DO1
DO0
AD0
CN21
VAC.SENSOR BOARD ASSY
VACJ0304
CN5FAN2
FAN1 CN4
FAN2
FAN1
J0302
J0123
+24VOUT CN2
CN3TXD/RXD
LINEAR IF BOARD ASSY P048
HEAD SERVO1 P042
HEAD SERVO2 P043
HEAD SERVO3 P044
HEAD SERVO4 P045
HEAD SERVO5 P046
HEAD SERVO6 P047
CN1
R2
MO2 CN3
R1
MO1 CN2
J0319 SENS10
SENS9
J0310
SENS8
SENS7
SENS6
SENS5
SENS4
SENS3
SENS2
SENS1 CN2
CN1SENS0
SENS1 CN2
CN1SENS0
SENS1 CN2
CN1SENS0
SENS1 CN2
CN1SENS0
SENS1
SENS1
MO2
CN2
CN1SENS0
MO2
MO1
MO2
MO1
MO2
MO1
MO2
MO1
MO1
CN3
CN2
CN3
CN2
CN3
CN2
CN3
CN2
CN3
CN2
Y1OT
Y1ORG
Y1OT
Y1ORG
SCM
I/O HEAD BOARD ASSY P041
BOARD ASSY
I/O TERMINAL
CN43
POW/EMG
SQ005
SQ001
KM12,XT31
DC48V,0V48
I/O CONV BOARD
See Page 5
See Page 3
I/O CONV BOARD
CN12
H+24V
J0190
J0162
J0042
DUCT Y
FLEXIBLE
J0043 J0055H+48V
DUCT X
FLEXIBLE
POW/EMG
J0044
J0134
CAM2
J0133
J0502J0503
CAMERA SELECTOR
J0121J0122
J0141
SRVB
CONTROL BOX
See Page 2
INTERFACE BOARD
CONTROL BOX
See Page 2
VISION BOARD
CAM2
MO1
PI1
CONTROL BOX
See Page 2
SERVO BOARD 1
J0145
SCP
SCM
SRVB2
SRVB1
SCM
SCP
SRVB2
SRVB1
J0146
LIGHT3CN10
CAM3CN8
LIGHT2CN9
CN11 DC24V CAMOUT CN5
C+24V
LIGHT2
J0124
D.CAM1
D.CAM2
CN1SENS0
CN4ENC DIFF
See Page 13
J0307
CAM3
SC+24V
CN1
CN3
SCAN J0514
POCL
+24V
CN4LIGHT CN1 LIGHT I/F
SCAN CAM.SUB ASSY OF.LIGHT BRD.ASSY.
OF.SV.LIGHT BRD ASSY
SCAN CAM. ASSY
P083
P085
P084
SCAN UNIT ASSY
SCM
M18
MAX 1.5m/s
SC-AXIS 85W
CN2
CN1
SCAN AXIS ASSY
SENSOR BOARD ASSY
P088SC-AXIS
J0306
P086
P087
P049
J0072J0073
CC.V3
6
HEAD SERVO UNIT
YG12

Confidential & Proprietary
PAGE
SIDE
CN3
CN4
COAX
CN5 DVRI/F
M.LIGHT COAX. ASSY
CN1MAIN
MAIN J0510
J0509
SUB CX
MAIN
SUB CXMAIN
P070
MAIN
MAIN
P069
MAIN
MAIN
P068
MAIN
MAIN
P067
MAIN
MAIN
P066
M I/F
MAIN
P065 P063
SUB CX
SUB CX
P064
M.LIGHT MAIN ASSY M.LIGHT SUB CX. ASSY
J0508CAM1
CN8 POCL
+24V
L+24V
CN6LIGHT
M.CAM
J0501
J0048
I/O CONVEYOR BOARD
See Page 5
CONTROL BOX
See Page 2
CAM1
VISION BOARD
CN28
MULTI CAMERA POWER
CONTROL BOX
See Page 2
CAM3
VISION BOARD
SIDE
CN3
CN4
COAX
CN5 DVRI/F
M.LIGHT COAX. ASSY
CN1MAIN
MAIN
SUB CX
MAIN
SUB CXMAIN
MAIN
MAIN
MAIN
MAIN
MAIN
MAIN
MAIN
MAIN
M I/F
MAIN
SUB CX
SUB CX
M.LIGHT MAIN ASSY M.LIGHT SUB CX. ASSY
CN8 POCL
+24V
L+24V
CN6LIGHT
M.CAM
CAM3 J0511
J0512
J0513
P073 P074P075 P076 P077 P078 P079 P080
P071 P072
P062P061
SUB CX
SUB CX
SUB COAX
SUB COAX
CN4
J0507
CN4
MULTI CAM. SUB ASSY
MULTI CAM. SUB ASSY
DIGITAL MULTI CAMERA 1 ASSY(FRONT)
DIGITAL MULTI CAMERA 2 ASSY(REAR)
CC.V3
7
MULTI CAMERA UNIT SEL.(OPTION)
YG12

Confidential & Proprietary
PAGE
J0181
J0245
J0230
J0244
FRONT LCD (STANDARD)
FRONT OPERATION SWITCHES
A12
MOUSE
A10
KEYBOARD
J0254
FRONT OPERATION SWITCHES
FRONT LCD TOUCH PANEL(OPTION)
J0240
J0181
J0245
J0244
J0234
LCD 1
J0252 LCD1
LCD1
DC12V IN
VGA SERIAL
A12
MOUSE
A10
KEYBOARD
J0256
RS232C F
RS232C F
J0230 J0254
VGA F
LCD1
VGA
LCD 1
VGA F
VGA
KEY
MOUSE
CN18
See Page 4
I/O CONVEYOR -2-
CN18
See Page 4
I/O CONVEYOR -2-
EXT.PWR
VGA
KEY
MOUSE
SERIAL1
CONTROL BOX
See Page 2
EXT.PWR
CONTROL BOX
See Page 2
J0252J0234 LCD1
DC12V IN
CC.V3
8
OPERATION PANEL SEL.
YG12