TR5DNR_TR5DNX-Rev04 - 第15页
- 12 - NOTE ( 注記 ) #01....F OR EN EN 用 #02....EX CEPT EN EN を除く REF. NO NOT E PART NO D E S C R I P T I O N 品 名 Qty 1 400- 49100 S T GUID E R AIL 5D ST ガイドレール 5 D 4 2 400- 51573 B ALL CATC H ボールキャッチ 2 3 #02 400- 52108 D …

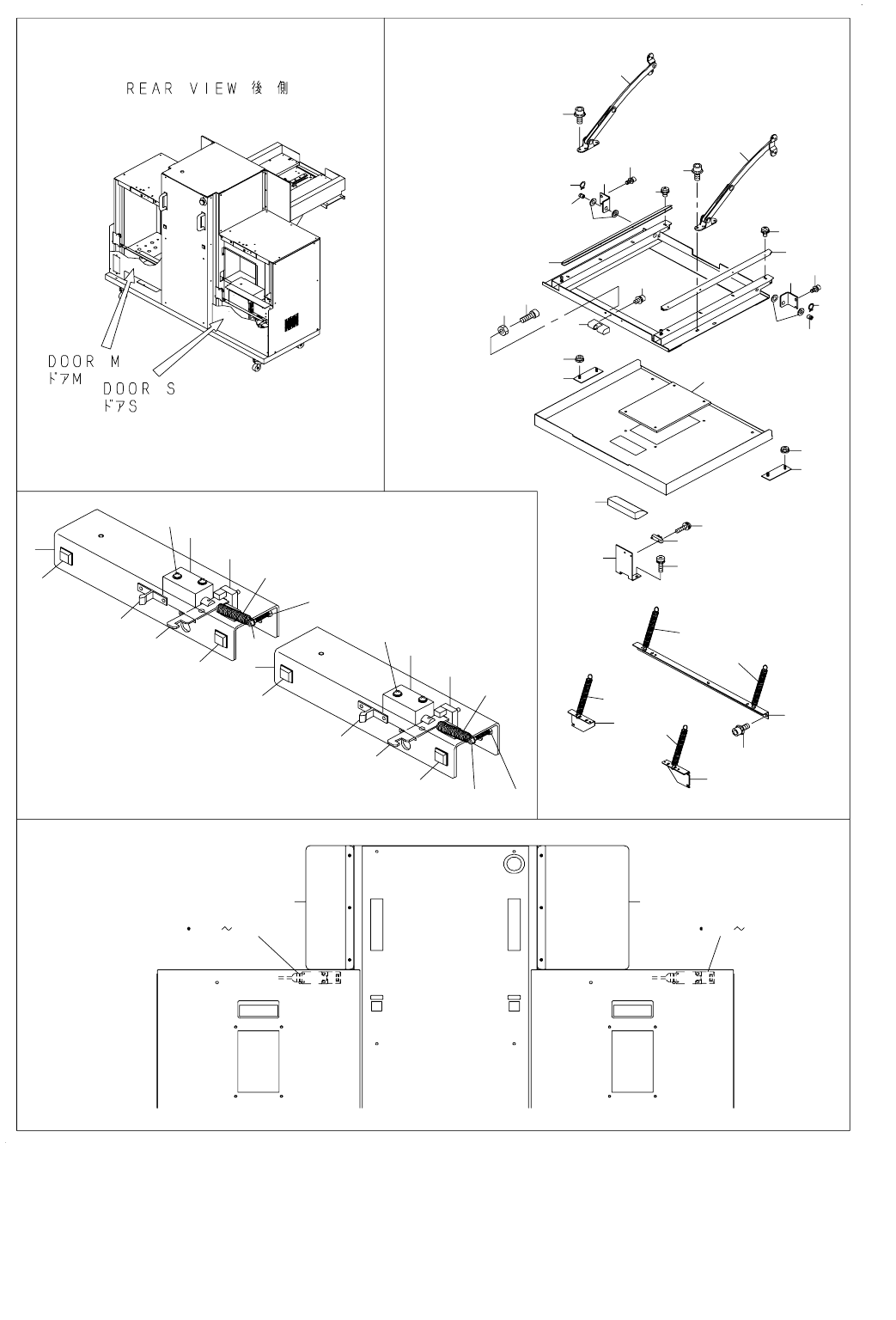
- 11 -
6. DOOR UNIT
ドアユニット
2
3
4
5
5
7
13
9
10
2
12
10
6
1516
6
10
12
2
10
9
8
13
18
18
19
1920
20
17
21 23 14 21 23
24
25
26
5
5
27
28
29
30
31
32
31
32
33
34
35
38
40
39
34
1
1
36
35
42
42
41
43
11
44
45
37
36
37
40

- 12 -
NOTE( 注記 ) #01....FOR EN EN 用
#02....EXCEPT EN EN を除く
REF.NO NOTE PART NO D E S C R I P T I O N
品 名
Qty
1 400-49100 ST GUIDE RAIL 5D
ST ガイドレール5 D
4
2 400-51573 BALL CATCH
ボールキャッチ
2
3
#02
400-52108 DOOR SENSOR BR
ドアセンサー BR
2
4
#02
HD-0017100-00 PHOTO SENSOR
フォトインタラプタ
2
5 E4508-717-000 DOOR DAMPER SP
ドアダンパー SP
4
6 400-50094 DOOR LOCK BR(CE)
ドアロック BR(CE)
2
7 400-45098 DOOR M INTERLOCK SOL. ASM
ドア M インターロック SOL.組
1
8 400-45100 DOOR S INTERLOCK SOL. ASM
ドア S インターロック SOL.組
1
9 E1055-717-000 DOOR LOCK SP
ドアロック SP
2
10 E1524-716-000 DOOR CUSHION
ドアクッション
4
11 SL-6030892-TN SCREW M3 L=8
座金付き六角穴ボルト M 3 L =8
4
12 E4559-717-000 DOOR LOCK LEVER
ドアロックレバー
2
13 HD-0005700-0A PHOTO SENSOR
フォトセンサ
2
14
#01
400-49626 DOOR S OPEN SW ASM
ドアSオープンSW組
1
15
#01
400-50026 JOINT COVER L 5D
ジョイントカバー L 5 D
1
16
#01
400-50025 JOINT COVER R 5D
ジョイントカバー R 5 D
1
17
#01
400-49621 DOOR M OPEN SW ASM
ドアMオープンSW組
1
18 SL-4030691-SC SCREW M3X6
なべ小ねじセムス M3X0.5 L=6
4
19 NM-6030001-SC NUT M3
六角ナット M3X0.5 1種
2
20 SM-6033002-TP SCREW M3 L=30
六角穴付きボルト M 3 L =30
2
21
#01
E6208-723-000 SAFETY SW BR(CE)
セーフティ SWBR(CE)
2
22
#01
SL-4040891-SC SCREW M4 L=8
座金付きなべ小ねじ M 4 L =8
4
23
#01
SL-4043091-SC SCREW M4 L=30
座金付きなべ小ねじ M 4 L =30
4
24 400-49278 DOOR DAMP BR R
ドアダンプ BR R
1
25 400-49277 DOOR DAMP BR L
ドアダンプ BR L
1
26 400-48786 DOOR DAMPER BR
ドアダンパー BR
1
27 SL-6041092-TN SCREW
座金付き六角穴ボルト
2
28 400-48894 EMBEDDED PULLS
埋め込み取手
1
29
#02
SL-6041092-TN SCREW
座金付き六角穴ボルト
4
30
#02
SL-4031291-SC SCREW M3X12
なべ小ねじセムス M3X0.5 L=12
2
31 400-48854 DOOR PLATE
ドアプレート
4
32 NM-3040510-SL FLANGE NUT
フランジ付きナット
8
33 400-48926 WINDOW S
ウインドウ S
1
34 WP-1052001-SC WASHER 10,5X21X2
平座金みがき丸 M 10
8
35 E4503-717-000 DOOR PIVOT PIN
ドアピボットピン
4
36 RC-0100001-KP SNAP RING M10
C 形止め輪 9.3
4
37 SL-6041092-TN SCREW
座金付き六角穴ボルト
4
38 E6042-723-000 DOOR BR C
ドアブラケット C
2
39 E6043-723-000 DOOR BR D
ドアブラケット D
2
40 SL-4030691-SC SCREW M3X6
なべ小ねじセムス M3X0.5 L=6
8
41 E6134-723-000 DOOR STAY 5D R
ドアステー5 DR
2
42 SL-6041092-TN SCREW
座金付き六角穴ボルト
8
43 E6133-723-000 DOOR STAY 5D L
ドアステー5 DL
2
44 SM-6041202-TN SCREW M4X0.7 L=12
六角穴ボルト M 4 X 0.7 L =12
2
45 NM-6040001-SC NUT M4
六角ナット M 4
2

- 13 -
7. Z UNIT
Z ユニット
7
9
9
2
3
6
69
5
8
11
13
34
23
34
66
32
57
33
33
23
23
23
36
34
34
29
28
27
29
25
24
20
12
30
30
16
10
41
40
26
42
43
50
15
52
51
51
46
46
46
44
44
45
45
53
39
39
55
55
56
54
58
59
58
59
60
60
18
60
60
65
65
47
48
38
38
61
62
62
63
62
62
63
64
17
4
1
19
A
A
22
21
35
35
35
35
37
31
67
67
68
49
14