NPM-D3A_规格说明书_Ver.2024.0612 - 第142页
NPM- D3 A 20 24. 0612 - 136 - B-8 希望自动准备支撑销。 进行支撑销的自动更换 时,有以下限 制条件。 限制条件 项 目 内 容 可配置支撑销的 最小基板尺寸 L 50 × W 70 mm 销的配置间距 16 mm 以上 (X, Y 方向 ) 销的配置区域 ( 左 → 右流向 ) ※ 1 ※ 1 右 → 左流向时,上述尺 寸为左右对称。 ※ 2 可配置销 ( 中心 ) 的范围,包括 图中外形线部分 。 ※…

NPM-D3A 2024.0612
- 135 -
B-8
希望自动准备支撑销。
On-site
机器整体
支撑销自动更换
在贴装头自动配置支撑销的功能。(不可使用标准规格的支撑销。)
点胶头/检查头+贴装头(或者无工作头+贴装头)规格时,在一侧的贴装头对应前侧轨道和后侧轨道的销配置。
支撑销配置数据在 NPM-DGS 编制而成。可以在 PC 画面确认销的配置位置。
附属品
内 容
备 注
基板支撑块(自动更换用)
1 套 (前/后各 1 个)
NPM-D3A/D3/ D2 专用
专用更换器
1 套 (前/后各 1 个)
与 NPM 系列, NPM-X 系列可通用
选 项
内 容
备 注
支撑销(自动更换用)
与 NPM 系列, NPM-X 系列,AM100 可通用
支撑销配置用吸嘴
100 吸嘴: 轻量 16 吸嘴贴装头 V3A 用
轻量 8 吸嘴贴装头用
1100 吸嘴: 2 吸嘴贴装头用
与 NPM 系列, NPM-X 系列可通用
支撑销配置用吸嘴,收纳于专用的吸嘴更换器。
专用吸嘴更换器可以收纳#100 吸嘴和#1100 吸嘴各 1 个。
进行支撑销的自动更换时的有关限制条件,请参考下一页。
Customer
支撑销
(
自动更换用
)
支撑销配置数量
双轨模式
单轨模式
长型规格传送带
最多
40
个
( 20
个/基板
)
最多
20
个
短型规格传送带
最多
32
个
( 16
个/基板
)
最多
16
个
Customer
支撑销配置用吸嘴
请根据贴装头构成进行选择。
(
各贴装头使用
1
个。
)
支撑销(自动更换用)
基板支撑块(自动更换用)
专用更换器
机种 A
机种 B
标准位置
※
2
(基准轨道侧)
支撑销的再配置时间: 90 s/ 10 个
※
1
(机种 A →机种 B)
尖端直径: φ1.5 mm
100 吸嘴
(轻量 16 吸嘴贴装头 V3A/轻量 8 吸嘴贴装头用)
※1 350 × 300 mm 基板时(不包括传送轨道的宽度变更时间。)
※2 根据条件不同,从机种 A 直接切换到机种 B 的支撑销配置。
1100 吸嘴
(2 吸嘴贴装头用)

NPM-D3A 2024.0612
- 136 -
B-8
希望自动准备支撑销。
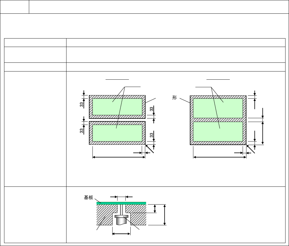
进行支撑销的自动更换时,有以下限制条件。
限制条件
项
目
内 容
可配置支撑销的
最小基板尺寸
L 50 × W 70 mm
销的配置间距
16 mm
以上
(X, Y
方向
)
销的配置区域
(
左
→
右流向
)
※
1
※
1
右
→
左流向时,上述尺寸为左右对称。
※
2
可配置销
(
中心
)
的范围,包括图中外形线部分。
※
3
( )
内的数値
:
短型规格传送带时
销的配置条件
请按照左边尺寸配置销的位置。
另外,请避开基板的空隙进行配置。
(单位: mm)
单轨模式时
双轨模式时
基板外形
344(254)
※
3
33
296
19
33
33
33
33
33
6
后侧轨道
基准轨道侧
6
344(254)
※
3
前侧轨道
基准
基准
基板
支撑销
φ8
6
28
φ15
反面的元件等
可配置销(中心)的范围
※
2

NPM-D3A 2024.0612
- 137 -
B-9
希望进行供料器的事先准备和整体交换。
Customer
交换台车
交换台车设置范围的地面倾斜,需要台车的左右方向在 6 mm 以内,前后方向在 11 mm 以内。地面倾斜度超过此范围时,
不可搬移交换台车。
是 NPM-D3A/ D3/ D2/ D/ TT2/ TT 以及 NPM 可以通用。
Customer
C-Cart34C
・ C-Cart 设置范围的地面倾斜,需要台车的左右方向在 6 mm 以内,前后方向在 11 mm 以内。
地面倾斜度超过此范围时,不可搬移 C-Cart。
・ 该 C-Cart 上不可使用智能编带供料器。