NPM-D3A_规格说明书_Ver.2024.0612 - 第184页
NPM- D3 A 20 24. 0612 - 178 - 12.2 空气投入部 后 侧 30PM (NITTO KOHKI) 30SM (NITTO KOHKI) 工厂侧管道连接 直径 : Rc3/8 气压软管 ( 选购项 ) 附属于设备 客户准备

NPM-D3A 2024.0612
- 177 -
12. 电源・空气投入部
12.1
电源投入部
■ 电源使用 4 芯电缆,是 3.5 mm
2
~ 5.5 mm
2
范围的电缆,并且使用专用工具进行连接。
■ 如下图所示,请采用在 2 处夹钳电缆的方法进行配线。
1. 电缆外经尺寸: φ13.5 mm ~φ18.0 mm
2. 请必须用电缆夹具固定电缆,不使其被拖拉(100 N), 转动而发生移动。
■ 端子台连接时的注意
端子连接管脚(推荐)
生产厂家: Phoenix Contact
型号: 3.5 mm
2
~ 4.0 mm
2
AI 4-12 GY
5.5 mm
2
~ 6.0 mm
2
AI 6-12 YE
1. 请将套头端子的凹凸部分与端子台并行插入。
2. 请确认套头端子是否确实插入。
3. 请使用以下工具操作。
4. 不使用套头端子时,请确认芯线和插入状态。
Remarks
• 请客户准备电源电缆。
电源投入部
端子台
(
在罩内侧
)
OK
NG
电缆夹具
端子台
电缆
前 侧

NPM-D3A 2024.0612
- 178 -
12.2
空气投入部
后 侧
30PM
(NITTO KOHKI)
30SM
(NITTO KOHKI)
工厂侧管道连接
直径
: Rc3/8
气压软管
(选购项)
附属于设备
客户准备

NPM-D3A 2024.0612
- 179 -
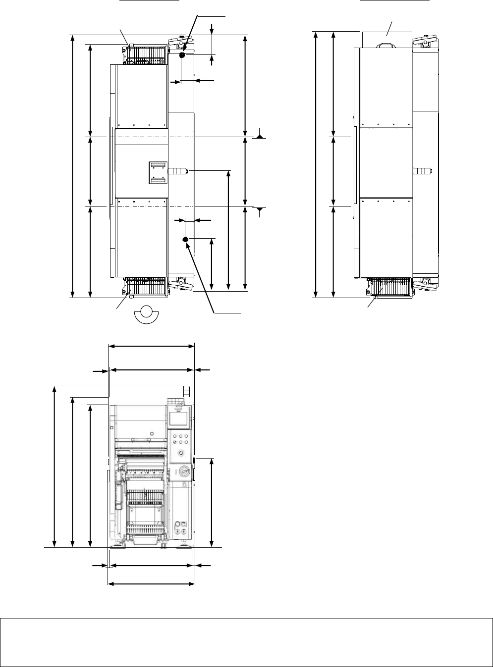
13.
尺寸图
(
单位
: mm)
■
交换台车连接时
Remarks
• 上述示图的缩小比例与实际机器在严格上讲,并不完全一致。
在研讨生产线构成和尺寸时,请另行索取资料。
• 本机下部如有设置通风道等时,请确保与主体间空隙保持 40 mm 以上。
1 207
864
1 629
1 514
1 444
900
820
832 (主体)
体
5
7
830
820
5
5
(传送带长度)
(罩外形)
前 侧
Air
电源
2 652
941
941
686
515
80
686
1 025
194
114
交换台车规格
交换台车
交换台车
基板传送基准
(后侧轨道)
基板传送基准
(前侧轨道)
(基板传送高度)
2 683 (2 729: 连接交换台车时)
1 056
686
941
交换台车
(1 102: 连接交换台车时)
托盘供料器或者交换台车
托盘供料器规格