NPM-D3A_规格说明书_Ver.2024.0612 - 第189页
NPM- D3 A 20 24. 0612 - 183 - ■ 调整螺 栓的配 置图 ( 单位 : mm) 223 AIR 0.5 MPa ~ 0.8 MPa 传送带基准面 电源 825 1359.5 673.5 2 575 421 1 290 444 420 660 820 80 80 139 前 侧

NPM-D3A 2024.0612
- 182 -
(
单位
: mm)
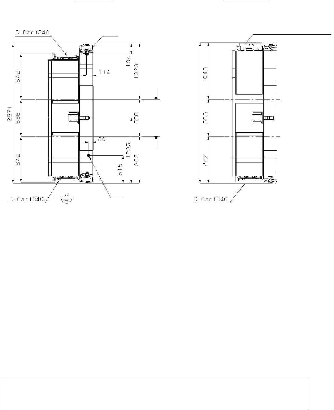
■
C-Cart
连接时
Remarks
• 上述示图的缩小比例与实际机器在严格上讲,并不完全一致。
在研讨生产线构成和尺寸时,请另行索取资料。
• 本机下部如有设置通风道等时,请确保与主体间空隙保持 40 mm 以上。
交换台车规格
托盘供料器规格
前 侧
AIR
电源
基板传送基准
(前侧轨道)
基板传送基准
(后侧轨道)
2 594 (2 571: C-Cart 连接时)
托盘供料器或
C-Cart34C
(1 023: C-Cart 连接时)

NPM-D3A 2024.0612
- 183 -
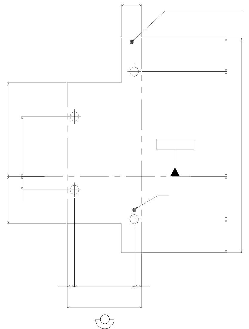
■
调整螺栓的配置图
(
单位
: mm)
223
AIR
0.5 MPa ~ 0.8 MPa
传送带基准面
电源
825
1359.5
673.5
2 575
421
1 290
444
420
660
820
80
80
139
前 侧

NPM-D3A 2024.0612
- 184 -
■
传送带的外形尺寸
(N-CONL, N-CONR)
(
单位
: mm)
■
托盘供料器的外形尺寸
(
单体
)
※1 托盘供料器高度 896 mm,是 NPM-D3A 的基板搬送高度是 900 mm 时的标准值。
可调整范围是: 896 mm。
※2 350 × 480 mm 尺寸的基板中心
基板传送高度
罩外形
基板传送基准
(前侧轨道)
基板传送基准
(后侧轨道)
1 042
900
+70
-20
1 350
686
332
332
450
传送带长度
498
(
从基板中心
※
2
)
基板中心
※
2
+65
-16.5
896
※
1
1 052
985
185
873
828
480