NPM-D3A_规格说明书_Ver.2024.0612 - 第192页
NPM- D3 A 20 24. 0612 - 186 - ■ C-Cart 连接时 更换 C-Cart 时,是必须的最小 限空间。 设置机器时请必须确保以下的空间。 ( 单位 : mm) Remarks • C-Cart 设置范围的地面倾斜 ,需要台车的左 右方向在 6 mm 以内,前后方向 在 11 mm 以内。 地面倾斜度超过此范围 时,不可搬移 C-Cart 。 前 侧

NPM-D3A 2024.0612
- 185 -
■
交换台车连接时
更换交换台车时,是必须的最小限空间。
设置机器时请必须确保以下的空间。
(
单位
: mm)
安装托盘供料器时,是必须的最小限空间。
在维护作业时有时会卸下托盘供料器,所以设置机器时请必须确保以下的空间。
・将托盘供料器切换为交换台车时的尺寸如下。
※1 4 249 mm
※2 2 205 mm
※3 837 mm
Remarks
•
交换台车设置范围的地面倾斜,需要台车的左右方向在
6 mm
以内,前后方向在
11 mm
以内。
地面倾斜度超过此范围时,不可搬移交换台车。
前
側
859
678
1711
864
837
516
2 044
2 046
4 090
4 269
※
1
2 044
2 225
※
2
857
※
3
864
837
前 侧
1711

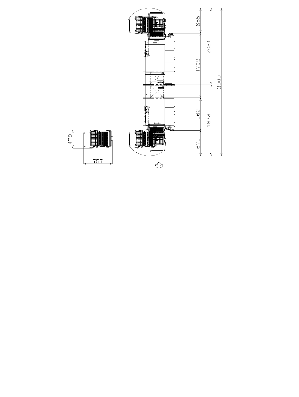
NPM-D3A 2024.0612
- 186 -
■
C-Cart
连接时
更换 C-Cart 时,是必须的最小限空间。
设置机器时请必须确保以下的空间。
(
单位
: mm)
Remarks
•
C-Cart
设置范围的地面倾斜,需要台车的左右方向在
6 mm
以内,前后方向在
11 mm
以内。
地面倾斜度超过此范围时,不可搬移
C-Cart
。
前 侧

NPM-D3A 2024.0612
- 187 -
14.
有关许可证
为了启动以下软件
(
选购件
)
,需要各自的使用许可证。
・
PanaCIM-EE
对应
※
・
iLNB
对应
※
・元件校对
※
・自动机种切换
※
・供料器准备导向
※
・上位通信
※
・
APC
系统对应
・其他厂家检查机界面软件
・
APC-MFB2
系统对应
・支援站箱
(
元件校对类型
)
※
・吸附错误自动恢复功能
・吸附前检查(极性)
・留言板
・贴装头诊断
・远程操作
※
・生物识别
・贴装完位置识别
・LCR 检查器(供料器形状类型)
・轻量 16 吸嘴头贴装定负荷控制
・轻量 16 吸嘴头转印
・吸附前检查 (字符/2D)
・AOI 信息显示功能
・贴装点扩大
・其他厂家不良标记通信
・托盘箱 1 盘 10 品种
・APC-5M
每台启动的设备都需要一个使用许可证。
※对软件选择,生产线中的所有设备,必须是相同的。
如果一条线中软件的使用许可证或有或无,就不能保证生产线整体的运转。
【重要】
为了使用以上应用软件,需要在下页的「软件的使用条件」签字同意。请必须浏览确认。
正确例子
错误例子
自动机种切换 × 6
自动机种切换 × 3
有许可证
有许可证
无许可证
NPM-D3A
NPM-D3A