RX-7-Rev07PDFA - 第119页
在线预览 RX-7-Rev07PDFA PDF 文档。

A-102
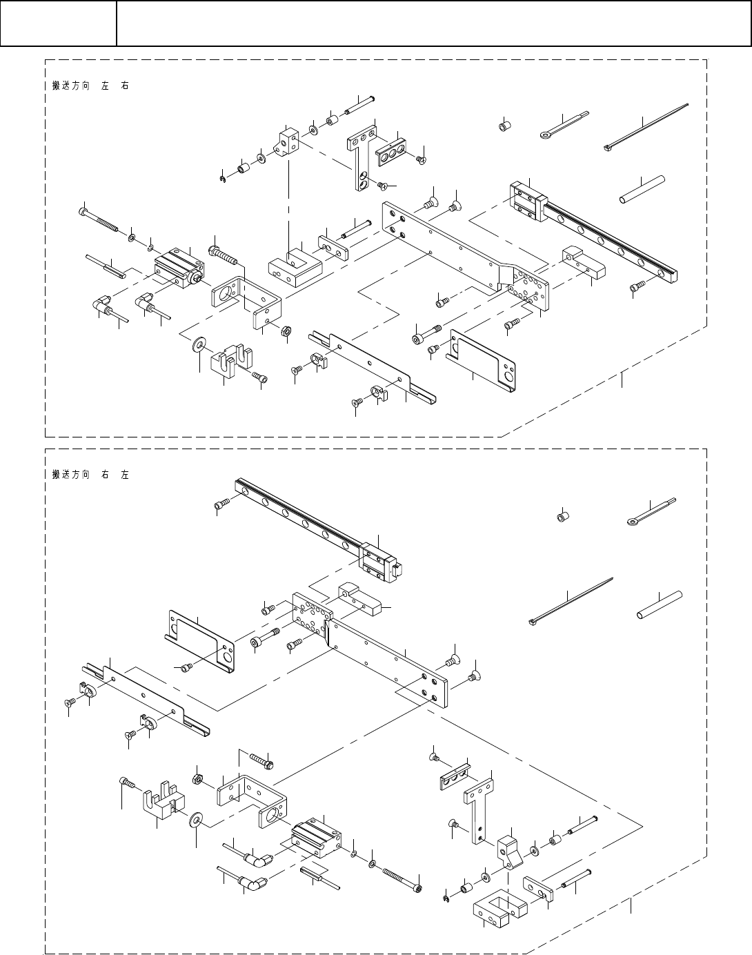
A42
CVSユニット
CVS UNIT
イラスト番号
Ref.No.
品番
Part Number
Description
品名
個数
Q'ty
備考
Remarks
55
NM-6030001-SC
NUT M3X0.5 TYPE1
六角 ナット M3X0.5 1 種
(2)
56
401-53443
CVS_BR_B_L
CVS_ブラケット B_L
(1)
57
SL-6030592-TN
SCREW M3 L=5
座金付き六角穴ボルト M3 L=5
(3)
58
SL-6030592-TN
SCREW M3 L=5
座金付き六角穴ボルト M3 L=5
(1)
59
SL-6041092-TN
SCREW M4 L=10
座金付き六角穴ボルト M4 L=10
(2)
60
401-54486
CVS PROBE CABLE ASM
CVS PROBE CABLE ASM
1
61
401-54474
CVS_PWB_UNIT_L
CVS_基板ユニット L
1
62
401-53445
CVS_PWB_BR_L
CVS_基板ブラケット_L
(1)
63
400-95117
CVS PCB ASM
CVS 基板組
(1)
64
HX-0035400-00
SPACER
スペーサ
(6)
65
401-53446
CVS_PWB_COVER
CVS_基板カバー
(1)
66
SL-6030592-TN
SCREW M3 L=5
座金付き六角穴ボルト M3 L=5
(6)
67
401-53448
GUIDE_ROLLER_DR-30-H6W1
ガイドローラ_DR-30H61W
(2)
68
SL-6063092-TN
SCREW M6 L=30
座金付き六角穴ボルト M6 L=30
(2)
69
WP-0641600-SC
WASHEW 6.4X12.5X1.6
ヒラザガネ
(4)
70
401-53447
CVS_CABLE_BR
CVS_ケーブルブラケット
1

A-103
A43
基板ストッパー ASSY
PWB stopper assy
3
4
5
6
8
8
9
1 1
1 1
1 0
1 0
1 2
1 3
1 4
1 5
1 6
1 7
1 8
1 8
1 9
2 0
2 1
2 1
2 2
2 3
2 3
2 3
2 5
2 4
2 6
2 7
2 8
2 9
2 9
3 0
3 1
3 1
3 2
3 3
3 3
3 4
3 5
3 6
3 7
3 8
7
3 9
4 0
2
4 2
4 3
4 8
5 2
4 4
4 5
4 6
6 0
5 0
5 1
5 1
5 0
4 8
4 9
5 3
5 4
5 5
5 6
6 5
6 4
6 8
5 8
5 8
5 7
6 9
6 9
7 0
5 9
7 5
7 4
6 1
6 1
6 2
4 7
6 3
6 3
6 3
6 6
6 7
7 1
7 1
7 2
7 3
7 3
7 6
7 7
7 8
7 9
8 0
1
C ON V E Y A N C E D I R E C T I ON R I GH T - L E F T
-
C ON V E Y A N C E D I R E C T I ON L E F T - R I GH T
-
4 1