00195775-0102_UM_D3_ZH - 第240页
4 安装和试运行 SIPLACE D3 用户手册 4.3 安装贴片机 源自软件版本 SR.605.xx 07/2008 英文版 240 4.3.17 将贴片机集成到生产线上 →注 意 第 195 页第 4.3.2 节的警告说明。 → 有关工具和 设备清单,见第 4.3.3 节,第 196 页。 4.3.17.1 叉车定位 4 图 4.3 - 28 接触表面 - 垂直于 PCB 传送方向的叉子 (1) 叉车叉子的接触表 面 → 使叉车垂直…

用户手册 SIPLACE D3 4 安装和试运行
源自软件版本 SR.605.xx 07/2008 英文版 4.3 安装贴片机
239
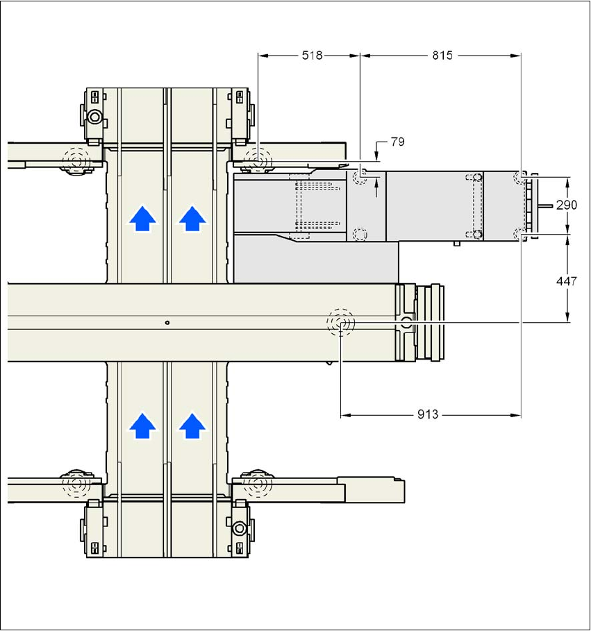
4.3.16.6 贴片机和 WPC 的贴片机支脚间隙
4
4
4
4
图
4.3 - 27
贴片机和
WPC
的贴片机支脚间隙
(mm)

用户手册 SIPLACE D3 4 安装和试运行
源自软件版本 SR.605.xx 07/2008 英文版 4.3 安装贴片机
241
警告 4
抬升贴片机之前,必须注意以下几点,以免贴片机受损,无法修复:
– 叉子的间距必须在 800 到 900 mm 之间。叉车的插入表面,见图 4.3 - 28
。接触表面之间的
最大距离为 1120 mm。不要加大叉子的间距,否则贴片机抬起时,会偏向机架的侧面,导致
贴片机机架变形。
→ 确保抬升贴片机时,叉子的载荷均匀分配。在叉子和贴片机之间应有一个坚固的支承,这样
可以防止贴片机在抬升时倾翻。这样做还可以防止将载荷加到贴片机的一个支脚上,以免贴
片机支脚的固定装置变形。我们建议在抬升机贴片时,应另安排一人观察整个过程,确保贴
片机被叉车铲起时,不会向一侧倾翻。
4.3.17.2 运输贴片机时的注意事项
警告 4
运输贴片机时,确保所有的支脚已离开地面。否则,支脚会与地面摩擦,并撞上障碍物。这会损
坏贴片机机架上的支脚固定装置。
