FX-3-Rev13(-J)J.pdf - 第11页
- - REF.NO NOTE PART NO D E S C R I P T I O N Qty 1 400-47066 PSU MAIN BRACKET 2 2 400-47067 PSU SIDE COVER 2 3 400-47068 PSU CONN BRACKET 2 4 400-47069 PSU BRACKET A 2 5 400-47070 PSU BRACKET B 2 6 #01 400-47071 PSU U…

- -
3. BASE FRAME ELECTRIC APPARATUS COMPONENTS (2)
1
3
4
5
6 7
8
9
1 0
1 2 1 3
1 0
1 6
1 8 1 9
1 8 1 9
1 8 1 9
1 8 1 9
1 8 1 9
1 8 1 9
2 1
2 1
2 2
2 2
2 3
2 3
3 2
3 2
3 3
3 3
3 3
3 5
3 5
3 5
3 5
3 5
3 5
3 5
3 5
3 5
3 5
3 5
3 5
3 5
2 3
3 5
3 6
3 7
3 9
3 9
3 9
3 9
3 9
3 9
3 9
3 9
3 9
3 9
3 9
3 9
3 9
3 9
4 0
4 2
4 5
4 6
2 6
1 8 1 9
1 8 1 9
1 8 1 9
1 8 1 9
1 8 1 9
1 8 1 9
1 8 1 9
2 0
1 8 1 9
2 1
1 8 1 9
1 8 1 9
1 5
2 0
2 0
1 4
A
A
1 1 2 8
1 1 2 8
2 2
3 4
1 8 1 9
1 8 1 9
3 5
3 9
3 5
3 9
3 9
3 5
3 5
3 9
2 9
3 8
1 8 1 9
1 8 1 9
1 7
1 7
1 7
2 7
2 7
2
2 7
2 7
3 0
3 1
4 1
4 3
4 4
2 4
2 5
4 7
4 8
3 9
3 5
1 8 1 9

- -
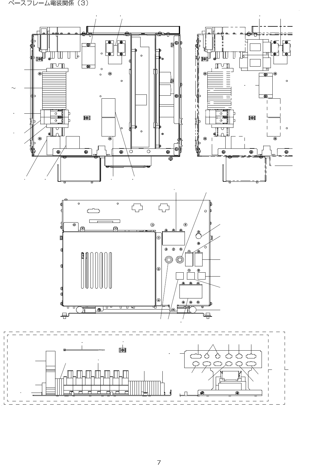
REF.NO NOTE PART NO D E S C R I P T I O N Qty
1 400-47066 PSU MAIN BRACKET 2
2 400-47067 PSU SIDE COVER 2
3 400-47068 PSU CONN BRACKET 2
4 400-47069 PSU BRACKET A 2
5 400-47070 PSU BRACKET B 2
6
#01
400-47071 PSU UPPER COVER 2
7
#03
400-47130 PSU UPPER COVER CE 1
8 400-47072 PSU FRONT COVER 2
9 400-47073 PSU COVER 2
10 400-47074 PSU Z PLATE 4
11 400-47078 STUD70 16
12
#01
400-63479 PSU REAR COVER 2
13
#03
400-47144 PSU REAR COVER CE 1
14 HX-0002600-0A BASE PARTS 4
15 HM-0003300-20 FINGER GUARD 2
16 SL-4033591-SC SCREW M3X35 8
17 HX-0022100-00 BUSH 6
18
#01
SL-4040891-SC SCREW M4 L=8 136
19
#02
SL-4040891-SC SCREW M4 L=8 128
20 SL-4030691-SC SCREW M3X6 64
21 SL-4030891-SC SCREW M3X8 8
22 SL-4030681-SC SCREW M3 L=6 28
23 NM-6030001-SC NUT M3 12
24
#02
SM-4040801-SC SCREW M4X0.7 L=8 44
25 HX-0029400-00 FIXED BASE 52
26 400-82021 COIL BRACKET 2
27 E5348-033-100 CABLE PROTECTOR 106MM 20
28
#01
E8760-452-E00 TUBE 0.24
29
#01
400-63478 PSU BASE 2
30 EA-9500B01-00 CABLE BAND 100
31 EA-9500B02-00 CABLE BAND 150 100
32 HK-0595200-30 CONNECTOR 4
33 HK-0598100-60 CONNECTOR 6
34 HM-0003300-0A FAN 2
35 HX-0029400-00 FIXED BASE 52
36 HX-0048200-00 SWITCH POWER SUPPLY (24V/500W) 2
37 HX-0054300-0A POWER SUPPLY 24V 2
38 KX-0000001-50 POWER SOURCE 6V 2
39 SM-4040801-SC SCREW M4X0.7 L=8 60
40 400-47522 POWER PCB ASM 2
41
#02
HX-0054200-0B POWER SOURCE 24V 1
42 400-47524 ZT POWER PCB ASM 2
43 400-01247 HEAD HANDLE 2
44
#01
SL-6051092-TN BOLT 4
45 400-47554 ETF POWER PCB ASM 2
46
#01
SL-6061292-TN SCREW 8
47 E1038-871-000 PLATEN LOCK CAM SCREW 4
48 HX-0022300-0A BUSHING 0.104

- -
4. BASE FRAME ELECTRIC APPARATUS COMPONENTS (3)
9 1 19 1 1
9 1 1
1 2 1 3
1 2 1 3
1 4
1 4
1 5 2 0
3 1 2 7 2 8 3 0
3 0
2 8
2 8
2 93 2
3 83 6
3 7 3 3 3 4
3 8
3 5
4 2 4 3
3 9 4 0
4 4 4 5
4 1 4 3
2 6 2 5
1 0 4 7
4 8 4 9
2 42 2 2 3
9 1 1 9 1 1
2 8
8 4 6 6
7
4
4
2 1
2
1
5 3 8 4 6