1OM-1513-001_w - 第188页
1OM-1513 第六章1.支撑治具制作规格 6-3 1.2 构成表 支撑治具的构成如下。 制作治具时,请参考构成表,使用元件图纸。 线路板吸取治具 250<W<460 65<W<250 50<W<65 图面 : 吸取治具 13 图面 : 吸取治具 13-1 图面 : 吸取治具 13-2 图面 : 吸取治具 13-3 图面 : 吸取治具 12 图面 : 吸取治具 12-1 图面 : 吸取治具 …

1OM-1513
6-2
第六章1.支撑治具制作规格
W 381
~
250
P W – 41
I W/4 – 13.5
M W/2 – 20
N W/2 – 13.5
L 510
~
420 420
~
332 332
~
262 262
~
204 204
~
142 142
~
92 92
~
50
A L - 4 200
B L/2 – 77 25
C 360 290 230 166 120 70 30
D
L/2 – 182 L/2 – 147 L/2 – 117 L/2 – 85
40 65 85
E L/2 – 62 L/2 – 37 L/2 – 17
F L/2 - 2 100
S L/2 – 62 67
X L/2 – 167 L/2 – 132 L/2 – 102 L/2 – 47 40
T 330 260 200 90 55
U L/2 – 17 200 90 90
Q 6 4
H L/4 – 13.5
J L/2 – 17
K L/2 – 12
TT 8 15
R L/2 – 210
V 416
T1F1
W : 线路板宽
L : 线路板长
1.1 尺寸表
0908-001

1OM-1513
第六章1.支撑治具制作规格
6-3
1.2 构成表
支撑治具的构成如下。
制作治具时,请参考构成表,使用元件图纸。
线路板吸取治具
250<W<46065<W<25050<W<65
图面 : 吸取治具 13
图面 : 吸取治具 13-1
图面 : 吸取治具 13-2
图面 : 吸取治具 13-3
图面 : 吸取治具 12
图面 : 吸取治具 12-1
图面 : 吸取治具 12-2
图面 : 吸取治具 12-3
图面 : 吸取治具 12-4
图面 : 吸取治具 11
图面 : 吸取治具 11-1
图面 : 吸取治具 11-2
图面 : 吸取治具 11-3
图面 : 吸取治具 11-4
线路板支撑治具
250<W<46065<W<25050<W<65
图面 : 支撑治具 23
图面 : 支撑治具 23-1
图面 : 支撑治具 23-2
图面 : 支撑治具 22
图面 : 支撑治具 22-1
图面 : 支撑治具 22-2
图面 : 支撑治具 22-3
图面 : 支撑治具 21
图面 : 支撑治具 21-1
图面 : 支撑治具 21-2
图面 : 支撑治具 21-3
F1F1
0908-001

1OM-1513
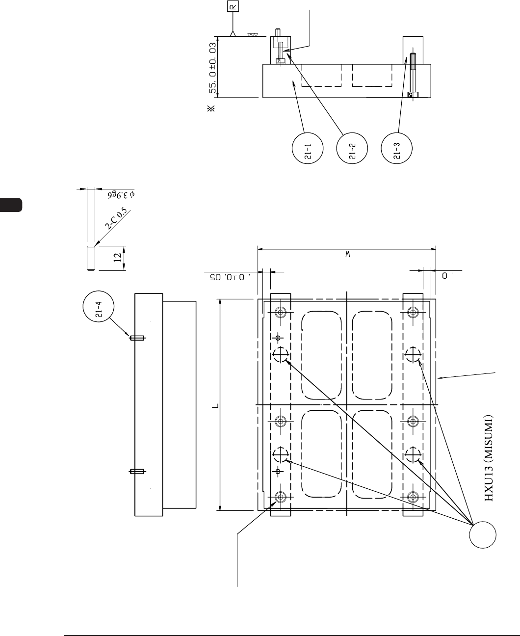
6-4
第六章1.支撑治具制作规格
1.3 线路板支撑治具 ( 线路板宽W
“
250<=W<=460
”
)
1.3.1 组装图
8
S-1
X1
X2
X1
X1
X4
4-M4L15
6-M5L35
Material : SUS304
Processing : None
(PCB Length)
250<W<460
1. 元件编号S-1为购入品。
2. 各元件组装后,加工R面,完成※标记的尺寸。
3. 元件编号21-4在加工R面以后安装。
(PCB Width)
Magnets
两点划线表示线路板定位状态。
Bonding with LOCTITE
F1F2
0908-001