1OM-1513-001_w - 第191页
1OM-1513 6-6 第六章1.支撑治具制作规格 1.3.3 元件部 ( 元件编号 21-2) 的变形图 3-M5 Depth 15 Counterbore Depth 5 Depth from Back 8 Material : A5052 Processing : None F1F4 0908-001

1OM-1513
第六章1.支撑治具制作规格
6-50908-001
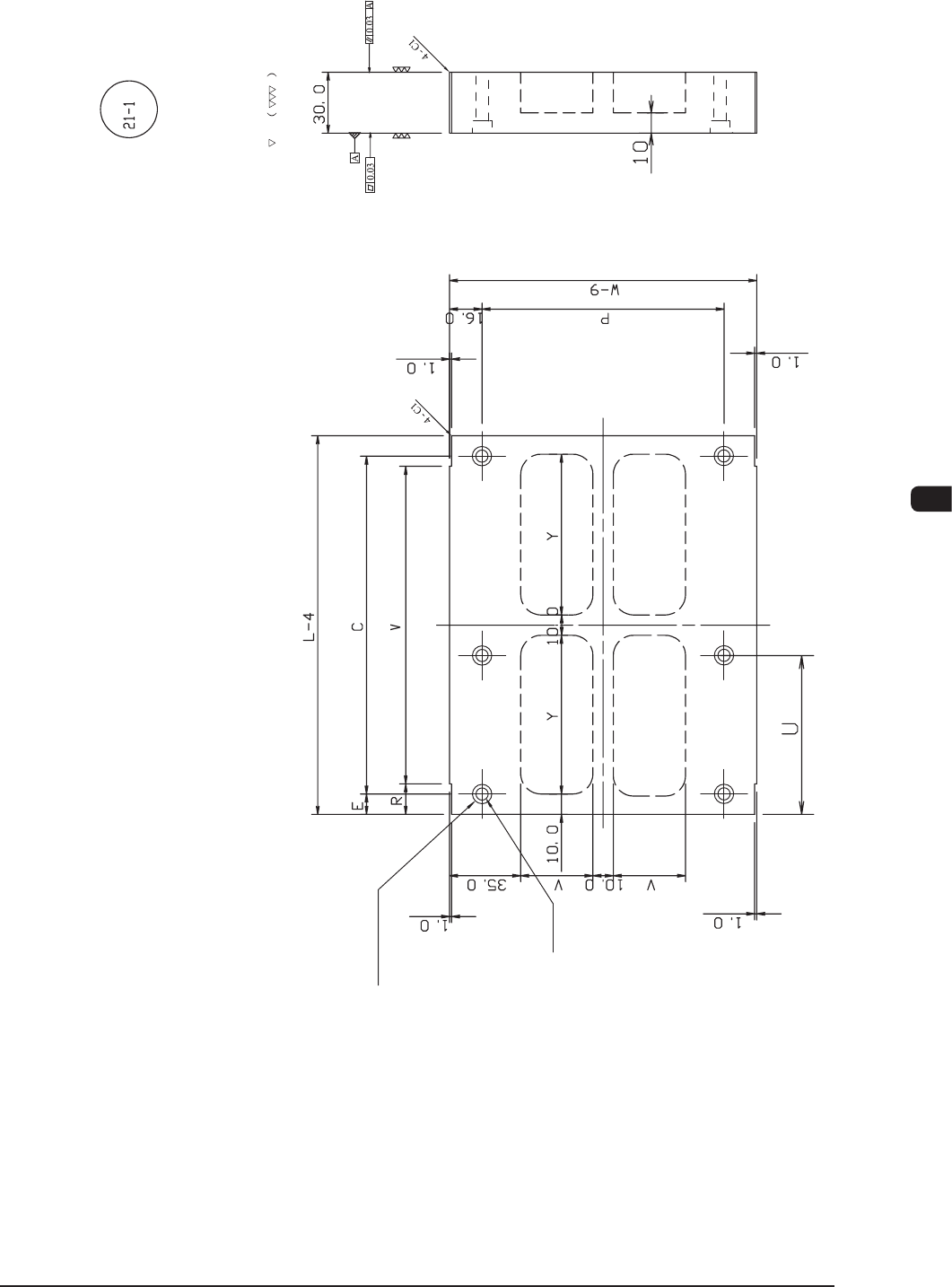
1.3.2 元件部 ( 元件编号 21-1) 的变形图
6- F9.5 Depth 6
6- F6
Material : A5052
Processing : None
F1F3

1OM-1513
6-6
第六章1.支撑治具制作规格
1.3.3 元件部 ( 元件编号 21-2) 的变形图
3-M5 Depth 15
Counterbore Depth 5
Depth from Back 8
Material : A5052
Processing : None
F1F4
0908-001

1OM-1513
第六章1.支撑治具制作规格
6-7
1.3.4 元件部 ( 元件编号 21-3) 的变形图
3-M5 Depth 15
Counterbore Depth 5
Material : A5052
Processing : None
F1F5
0908-001