1OM-1513-001_w - 第205页
1OM-1513 6-20 第六章1.支撑治具制作规格 1.7 线路板吸取治具 ( 线路板宽W “ 65<=W<=250 ” ) 1.7.1 组装图 X2 X4 X1 X1 X1 X1 65<W<250 Material : SUS304 Processing : None (PCB Length) (PCB Width) Magnets 两点划线表示线路板定位状态。 Bonding with LO…

1OM-1513
第六章1.支撑治具制作规格
6-19
1.6.5 元件部 ( 元件编号 11-4) 的变形图
3-M5 Depth 15
Counterbore Depth 5
Material : A5052
Processing : None
F1F17
0908-001

1OM-1513
6-20
第六章1.支撑治具制作规格
1.7 线路板吸取治具 ( 线路板宽W
“
65<=W<=250
”
)
1.7.1 组装图
X2
X4
X1
X1
X1
X1
65<W<250
Material : SUS304
Processing : None
(PCB Length)
(PCB Width)
Magnets
两点划线表示线路板定位状态。
Bonding with LOCTITE
1. 元件编号S-1为购入品。
2. 各元件组装后,加工R面,完成※标记的尺寸。
3. 元件编号12-5在加工R面以后安装。
F1F18
0908-001

1OM-1513
第六章1.支撑治具制作规格
6-21
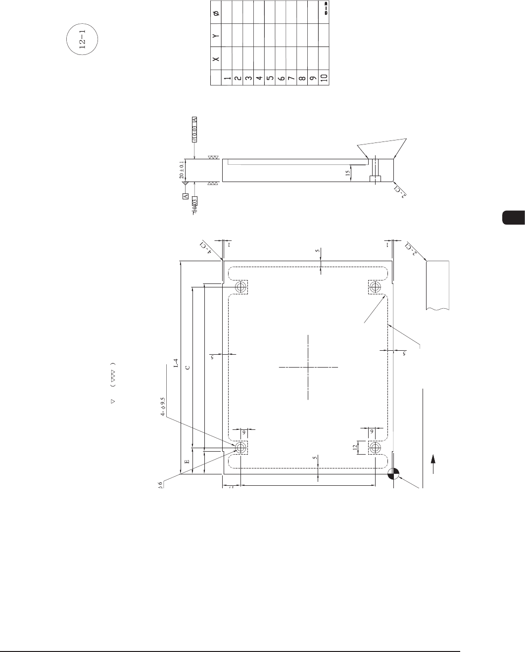
1.7.2 元件部 ( 元件编号 12-1) 的变形图
R
V
Material : A5052
Processing : None
Fine Chamfering
(Fringe)
R (Optional)
Engraved
Origin for Pick-Up Hole Coordinates
吸取孔坐标以及径
请根据线路板形状,开适合的吸取孔。
F1F19
0908-001