1OM-1513-001_w - 第210页
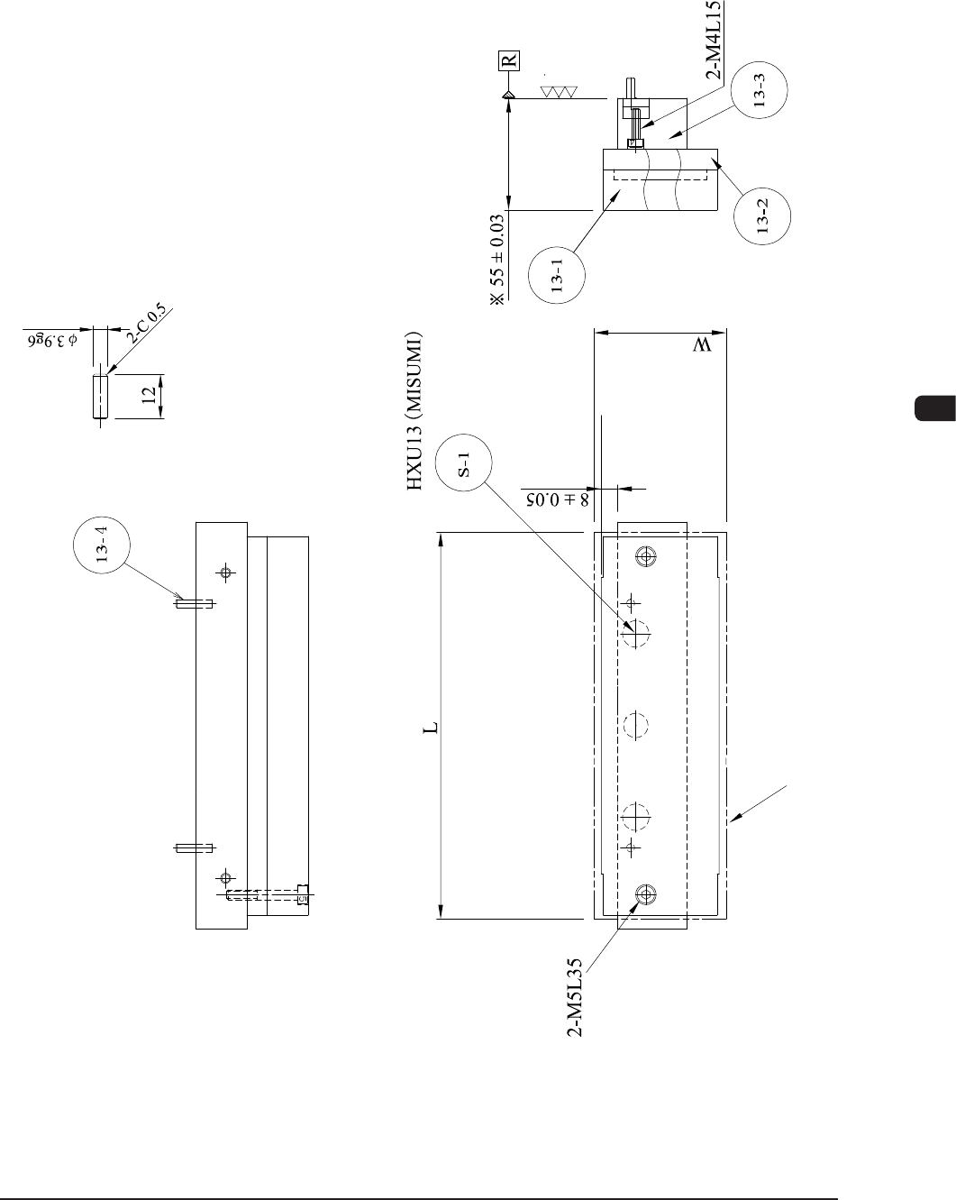
1OM-1513 第六章1.支撑治具制作规格 6-25 1.8 线路板吸取治具 ( 线路板宽W “ 50<=W<=65 ” ) 1.8.1 组装图 X2 X2 X1 X1 X1 50<W<65 (PCB Length) (PCB Width) Magnets 两点划线表示线路板定位状态。 (Bonding with LOCTITE) 1. 元件编号S-1为购入品。 2. 各元件组装后,加工R面,完成…

1OM-1513
6-24
第六章1.支撑治具制作规格
1.7.5 元件部 ( 元件编号 12-4) 的变形图
Counterbore Depth 5
Material : A5052
Processing : None
2-M5 Depth 15
(Prepared Hole Not Penetrable)
F1F22
0908-001

1OM-1513
第六章1.支撑治具制作规格
6-25
1.8 线路板吸取治具 ( 线路板宽W
“
50<=W<=65
”
)
1.8.1 组装图
X2
X2
X1
X1
X1
50<W<65
(PCB Length)
(PCB Width)
Magnets
两点划线表示线路板定位状态。
(Bonding with LOCTITE)
1. 元件编号S-1为购入品。
2. 各元件组装后,加工R面,完成※标记的尺寸。
3. 元件编号13-4在加工R面以后安装。
F1F23
0908-001

1OM-1513
6-26
第六章1.支撑治具制作规格
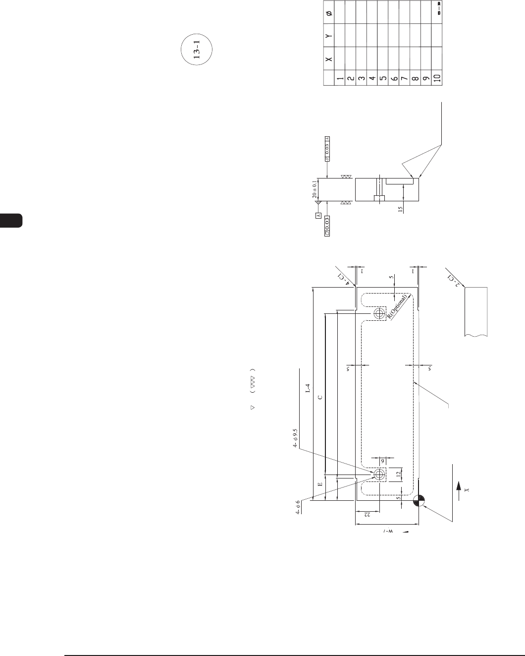
1.8.2
元件部 ( 元件编号 13-1) 的变形图
R
V
Material : A5052
Processing : None
Fine Chamfering
(Fringe)
Engraved
Origin for Pick-Up
Hole Coordinates
Counterbore Depth 6
吸取孔坐标以及径
请根据线路板形状,开适合的吸取孔。
F1F24
0908-001