S25 circuit - 第118页
5 Printed circuit boar ds 118 0032725 2-010 101MD4 I/O termi nal bo ard A3 0032728 3-010 101MD4 O ptical d ecoupli ng u nit A4 1. 1. 1. 11.06.96 11.06.96 11.06.96 Tu. Tu. Tu. 11.06.1996 11.06.1996 00327252-010101MD4 SIEM…

5 Printed circuit boards 117
00327250-010101MD4 I/O terminal board A1
00327251-010101MD4 I/O terminal board A2
1.
1.
1.
11.06.96
11.06.96
11.06.96 Tu.
Tu.
Tu.
11.06.1996
11.06.1996
00327250-010101MD4
SIEMENS
Aktiengesellschaft
AUT 5 BPB BS1
Datum
Bearb.
Gepr.
Norm
Name
Dateiname:
Zust.
Mitteilung
Datum
Name
(Materialnummer)
Format A4
Mat.-Nr.: FS ES US S/F
Blatt
Maßstab
Weitergabe sowie Vervielfältigung dieser Unterlage, Verwertung und Mitteilung
ihres Inhaltes nicht gestattet, soweit nicht ausdrücklich zugestanden.
Zuwiderhandlungen verpflichten zu Schadenersatz. Alle Rechte für den Fall
der Patenterteilung oder GM-Eintragung vorbehalten.
Copying of this document, and giving it to others and the use or communication
of the contents thereof, are forbidden without express authority. Offenders are
liable to the payment of damages. All rights are reserved in the event of the
grant of a patent or the registration of the utility model or design.
(a1_1zu1.vsd)
00327250.11M
M -
-
- - - - -- M
P +
+
+ + + + ++ P
2
3
4 5 6 7 81
M -
-
- - - - -- M
P +
+
+ + + + ++ P
2
3
4 5 6 7 81
A
X2kb
B
X1ka
1/1
X1ka
A1
X2ka
Siemens AUT5
00327250-01
AA-BBBB-CCCC
15
10
X1kb
X2kb
X2ka
X1kb
1 2 3 4 5 6 7 8
P + + + + + + + + P
M - - - - - - - - M
1 2 3 4 5 6 7 8
P + + + + + + + + P
M - - - - - - - - M
A1
Function status
Document status
Product status
SMD Placement System Siplace
I/O terminal board A1
The following labels have to be stuck on:
1 : Assembly designation
Attach the terminal designation to the terminals.
2 : Plug designation
A : Identification label
B : Inspection label
Assembly inscription acc. to recommendation VA-F-510-001
font size 1.5 mm, mat. Scotchcal 3698-E ( color A1 Ral 9006 )
AA = manufacturer/location acc. to SN 37040
BBBB = date (year/month/day) acc. to SN 01007
CCCC = numeral
Product inspection certification acc. to recommendation VA Q 509-001
3 : Terminal designation
Assembly inscription acc. to recommendation
VA-F-510-001
Labels: size approx. 5X12mm, font size 3mm
1.
1.
1.
11.06.96
11.06.96
11.06.96 Tu.
Tu.
Tu.
11.06.1996
11.06.1996
00327251-010101MD4
SIEMENS
Aktiengesellschaft
AUT 5 BPB BS1
Datum
Bearb.
Gepr.
Norm
Name
Dateiname:
Zust.
Mitteilung
Datum
Name
(Materialnummer)
Format A4
Mat.-Nr.: FS ES US S/F
Blatt
Maßstab
Weitergabe sowie Vervielfältigung dieser Unterlage, Verwertung und Mitteilung
ihres Inhaltes nicht gestattet, soweit nicht ausdrücklich zugestanden.
Zuwiderhandlungen verpflichten zu Schadenersatz. Alle Rechte für den Fall
der Patenterteilung oder GM-Eintragung vorbehalten.
Copying of this document, and giving it to others and the use or communication
of the contents thereof, are forbidden without express authority. Offenders are
liable to the payment of damages. All rights are reserved in the event of the
grant of a patent or the registration of the utility model or design.
(a1_1zu1.vsd)
00327251.11M
M -
-
- - - - -- M
P +
+
+ + + + ++ P
2
3
4 5 6 7 81
M -
-
- - - - -- M
P +
+
+ + + + ++ P
2
3
4 5 6 7 81
A
X2kd
B
X1kc
1/1
X1kc
A2
X2kc
Siemens AUT5
00327251-01
AA-BBBB-CCCC
15
10
X1kd
X2kd
X2kc
X1kd
1 2 3 4 5 6 7 8
P + + + + + + + + P
M - - - - - - - - M
1 2 3 4 5 6 7 8
P + + + + + + + + P
M - - - - - - - - M
A2
Function status
Document status
Product status
SMD Placement System Siplace
I/O terminal board A2
The following labels have to be stuck on:
1 : Assembly designation
Attach the terminal designation to the terminals.
2 : Plug designation
A : Identificaction label
B : Inspection label
Assembly inscription acc. to recommendation VA-F-510-001
font size 1.5 mm, mat. Scotchcal 3698-E ( color A1 Ral 9006 )
AA = manufacturer/location acc. to SN 37040
BBBB = date (year/month/day) acc. to SN 01007
CCCC = numeral
Product inspection certification acc. to recommendation VA Q 509-001
3 : Terminal designation
Assembly inscription acc. to recommendation
VA-F-510-001
Labels: size approx. 5X12mm, font size 3mm

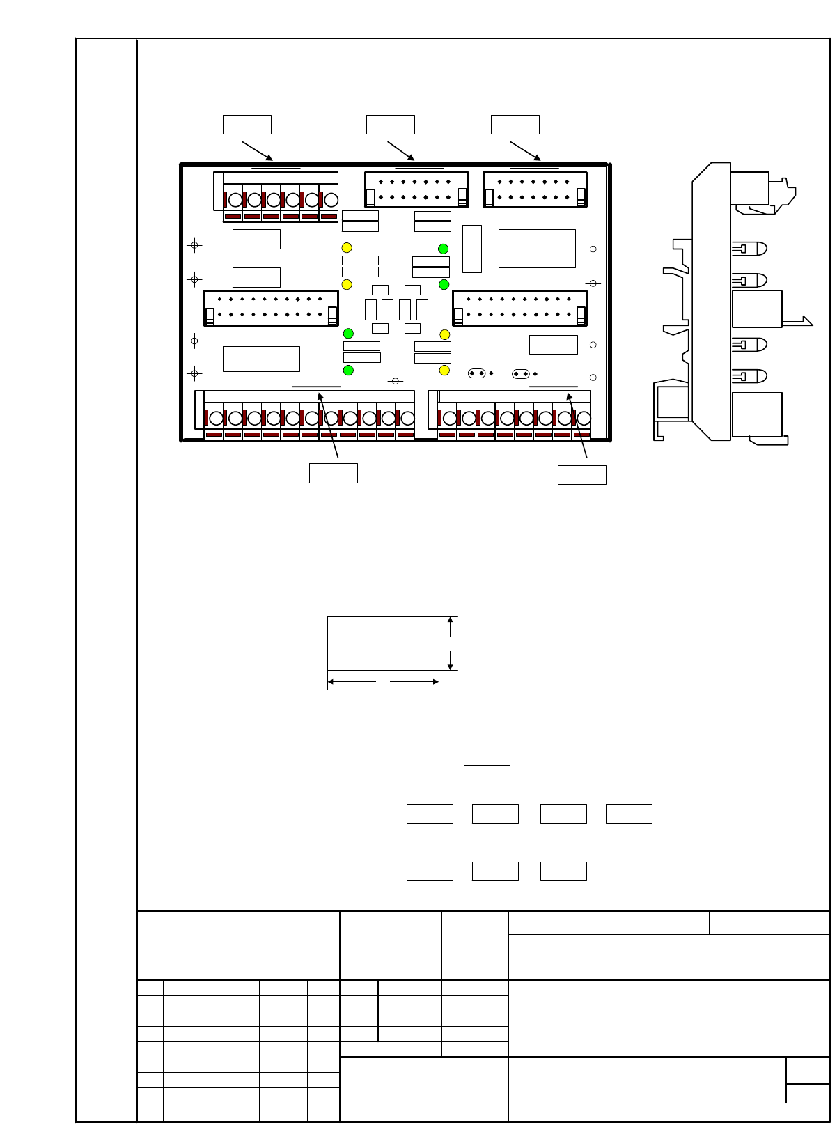
5 Printed circuit boards 118
00327252-010101MD4 I/O terminal board A3
00327283-010101MD4 Optical decoupling unit A4
1.
1.
1.
11.06.96
11.06.96
11.06.96 Tu.
Tu.
Tu.
11.06.1996
11.06.1996
00327252-010101MD4
SIEMENS
Aktiengesellschaft
AUT 5 BPB BS1
Datum
Bearb.
Gepr.
Norm
Name
Dateiname:
Zust.
Mitteilung
Datum
Name
(Materialnummer)
Format A4
Mat.-Nr.: FS ES US S/F
Blatt
Maßstab
Weitergabe sowie Vervielfältigung dieser Unterlage, Verwertung und Mitteilung
ihres Inhaltes nicht gestattet, soweit nicht ausdrücklich zugestanden.
Zuwiderhandlungen verpflichten zu Schadenersatz. Alle Rechte für den Fall
der Patenterteilung oder GM-Eintragung vorbehalten.
Copying of this document, and giving it to others and the use or communication
of the contents thereof, are forbidden without express authority. Offenders are
liable to the payment of damages. All rights are reserved in the event of the
grant of a patent or the registration of the utility model or design.
(a1_1zu1.vsd)
00327252.11M
M -
-
- - - - -- M
P +
+
+ + + + ++ P
2
3
4 5 6 7 81
M -
-
- - - - -- M
P +
+
+ + + + ++ P
2
3
4 5 6 7 81
A
X2kf
B
X1ke
1/1
X1ke
A3
X2ke
Siemens AUT5
00327252-01
AA-BBBB-CCCC
15
10
X1kf
X2kf
X2ke
X1kf
1 2 3 4 5 6 7 8
P + + + + + + + + P
M - - - - - - - - M
1 2 3 4 5 6 7 8
P + + + + + + + + P
M - - - - - - - - M
A3
Function status
Document status
Product status
SMD Placement System Siplace
I/O terminal board A3
The following labels have to be stuck on:
1 : Assembly designation
Attach the terminal designation to the terminals.
2 : Plug designation
A : Identification label
B : Inspection label
Assembly inscription acc. to recommendation VA-F-510-001
font size 1.5 mm, mat. Scotchcal 3698-E ( color A1 Ral 9006 )
AA = manufacturer/location acc. to SN 37040
BBBB = date (year/month/day) acc. to SN 01007
CCCC = numeral
Product inspection certification acc. to recommendation VA Q 509-001
3 : Terminal designation
Assembly inscription acc. to recommendation
VA-F-510-001
Labels: size approx. 5X12mm, font size 3mm
1.
1.
1.
11.06.96
11.06.96
11.06.96 Tu.
Tu.
Tu.
11.06.1996
11.06.1996
00327283-010101MD4
SIEMENS
Aktiengesellschaft
AUT 5 BPB BS1
Datum
Bearb.
Gepr.
Norm
Name
Dateiname:
Zust.
Mitteilung
Datum
Name
(Materialnummer)
Format A4
Mat.-Nr.: FS ES US S/F
Blatt
Maßstab
Weitergabe sowie Vervielfältigung dieser Unterlage, Verwertung und Mitteilung
ihres Inhaltes nicht gestattet, soweit nicht ausdrücklich zugestanden.
Zuwiderhandlungen verpflichten zu Schadenersatz. Alle Rechte für den Fall
der Patenterteilung oder GM-Eintragung vorbehalten.
Copying of this document, and giving it to others and the use or communication
of the contents thereof, are forbidden without express authority. Offenders are
liable to the payment of damages. All rights are reserved in the event of the
grant of a patent or the registration of the utility model or design.
(a1_1zu1.vsd)
00327283.11M
A
X3kg
B
X1kg
1/1
X1kg
A4
X5kg
Siemens AUT5
00327283-01
AA-BBBB-CCCC
15
10
X2kg
X6kg
X2kgX7kg
A4
P P G U U M M 65 7 8 + 65 7 8---
1 2 43 5 6
R3
U1
R2 R4
R6
R5
R9
R10
V2
V1
V6
R8
R7
R11
R12
V4
V3
V7
V8
R1
U2
U3
U4
C1 C3
C2 C4
MP1
MP2
MP3
MP4
MP5
MP6
MP7
MP8
V5
JP1 JP2
1 2 3 1 2 3
MP9
K1
P P G U U M M 5 6 7 8
- - - - 5 6 7 8
- - - - 5 6 7 8
1 2 3 4 5 6
X4kg
X6kg
X5kg
X4kgX3kg
X7kg
Function status
Document status
Product status
SMD Placement System Siplace
Optical decoupling unit A4
The following labels have to be stuck on:
1 : Assembly designation
Attach the terminal designation to the
terminals.
2 : Plug designation
A : Identification label
B : Inspection label
Assembly inscription acc. to recommendation VA-F-510-001
font size 1.5 mm, mat. Scotchcal 3698-E ( color A1 Ral 9006 )
AA = manufacturer/location acc. to SN 37040
BBBB = date (year/month/day) acc. to SN 01007
CCCC = numeral
Product inspection certification acc. to recommendation VA Q 509-001
3 : Terminal designation
Assembly inscription acc. to recommendation
VA-F-510-001
Labels: size approx. ca. 5X12mm, font size 3mm

5 Printed circuit boards 119
00327284-010101MD4 Optical decoupling unit A6
1.
1.
1.
11.06.96
11.06.96
11.06.96 Tu.
Tu.
Tu.
11.06.1996
11.06.1996
00327284-010101MD4
SIEMENS
Aktiengesellschaft
AUT 5 BPB BS1
Datum
Bearb.
Gepr.
Norm
Name
Dateiname:
Zust.
Mitteilung
Datum
Name
(Materialnummer)
Format A4
Mat.-Nr.: FS ES US S/F
Blatt
Maßstab
Weitergabe sowie Vervielfältigung dieser Unterlage, Verwertung und Mitteilung
ihres Inhaltes nicht gestattet, soweit nicht ausdrücklich zugestanden.
Zuwiderhandlungen verpflichten zu Schadenersatz. Alle Rechte für den Fall
der Patenterteilung oder GM-Eintragung vorbehalten.
Copying of this document, and giving it to others and the use or communication
of the contents thereof, are forbidden without express authority. Offenders are
liable to the payment of damages. All rights are reserved in the event of the
grant of a patent or the registration of the utility model or design.
(a1_1zu1.vsd)
00327284.11M
A
X3ki
B
X1ki
1/1
X1ki
A6
X5ki
Siemens AUT5
00327284-01
AA-BBBB-CCCC
15
10
X2ki
X6ki
X2kiX7ki
A6
P P G U U M M 65 7 8 + 65 7 8---
1 2 43 5 6
R3
U1
R2 R4
R6
R5
R9
R10
V2
V1
V6
R8
R7
R11
R12
V4
V3
V7
V8
R1
U2
U3
U4
C1 C3
C2 C4
MP1
MP2
MP3
MP4
MP5
MP6
MP7
MP8
V5
JP1 JP2
1 2 3 1 2 3
MP9
K1
P P G U U M M 5 6 7 8
- - - - 5 6 7 8
- - - - 5 6 7 8
1 2 3 4 5 6
X4ki
X6ki
X5ki
X4kiX3ki
X7ki
Function status
Document status
Product status
SMD Placement System Siplace
Optical decoupling unit A6
The following labels have to be stuck on:
1 : Assembly designation
Attach the terminal designation to the
terminals.
2 : Plug designation
A : Identification label
B : Inspection label
Assembly inscription acc. to recommendation VA-F-510-001
font size 1.5 mm, mat. Scotchcal 3698-E ( color A1 Ral 9006 )
AA = manufacturer/location acc. to SN 37040
BBBB = date (year/month/day) acc. to SN 01007
CCCC = numeral
Product inspection certification acc. to recommendation VA Q 509-001
3 : Terminal designation
Assembly inscription acc. to recommendation
VA-F-510-001
Labels: size approx. 5X12mm, font size 3mm