S25 circuit - 第41页
2 Detailed circuit diagrams 41 GS2-S25 T ap e cutter, pneumatical ly ope rated, l efthand side Aend erun g Zu stand Datu m CAD-Datei : GS2-S25.DWG Urspr./Ers .f./Ers.d . Norm Name Gepr. Strom laufpl an/C ircui t diag ra …

2 Detailed circuit diagrams 40
GS1-S25 Tape cutter, pneumatically operated, righthand side
AenderungZustand Datum
CAD-Datei : GS1-S25.DWG
Urspr./Ers.f./Ers.d.NormName
Gepr.
Stromlaufplan/Circuit diagram
PL EA
Mat.-Nr. :
Beab. Hi
Datum 29.01.01
SIEMENS
SMD Placement System SIPLACE S25 HM
1
1
Tape cutter, pneumatically operated,
br
gn
ye
Left cylinder
Signal
Signal
Right cylinder
piston extended
piston retracted
Sensor switch
00332899-xx
00332899-xx
Sensor switch
Signal
Signal
00332901-xx
(Cable)
2
1
Right valve
X1
3
bk
2
X10dq
rd
3
bk
X9dq
2
rd
GND
5
2
rd
bk
X6dq
+5VDC
+5VDC
gr
4
pk
5
wh
10
bl
6
7a
7b
1b
2b
3b
6b
X37b
5a
3a
2a
X37b
Interface for comp.-handling
+5VDC
Y7
B
C
A
GE
GND (5V)
Control unit
00356211-xx
00326142-xx
assembly
Communications
4a
br
00321429-xx
(Cable)
gn
wh
5
3
2
X3sd
wh
gn
br
V-24
TxD
RxD
GND
br
gn
wh
gn
br
wh
X207 X1dq
(Cable)
00313400-xx
00337342-xx
righthand side
Terminal panel
1
2
3
8
4
10
GND
+30VDC switched
(righthand side)
6a
5a
1c
7a
7b
1b
2b
3b
6b
bl
gr&pk
whgr
rd&bk
yebr
vi
grpk
rdbl
whye
+30VDC
+5VDC
GND (5V)
GND (30V)
Right comp. table
00116226-xx
Control board
00323583-xx
(Cable)
00322072-xx
Control board, tape cutter
X3dq
00329699-xx
1
GND
X5dq
5
2
rd
bk
00332901-xx
(Cable)
X1
1
2
Left valve
LOGIC
piston retracted
Sensor switch
00332900-xx
00332900-xx
Sensor switch
piston extended
+5VDC
3
2
rd
bk
X7dq
+5VDC
3
rd
X8dq
2
bk
2
3
component table
+30VDC
+5VDC
GND (30V)
X7do
14
13
2
1
9
3
GND (5V)
GE
A
4
5
8
B
C
Y7
00322064-xx
X4do
3
6
4
br
gn
ye
2a
3a
4a
GND (5V)
RxD
TxD
(Cable)
00328753-xx
righthand side
Sheet
Sh
.
See page 65
See page 116
See page 120
See page 83
See page 111

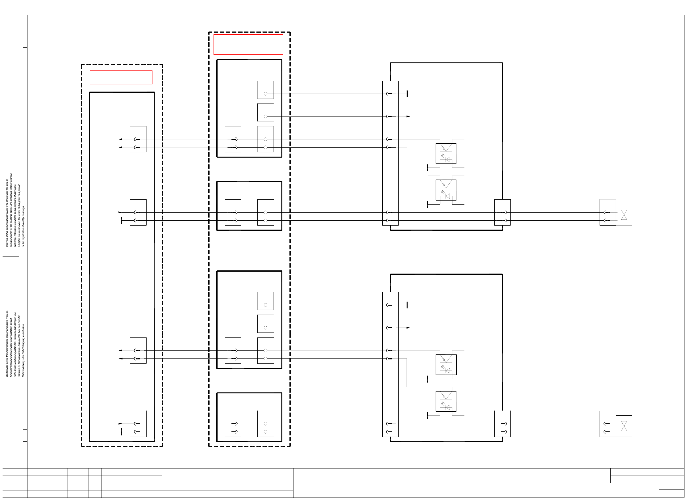
2 Detailed circuit diagrams 41
GS2-S25 Tape cutter, pneumatically operated, lefthand side
AenderungZustand Datum
CAD-Datei : GS2-S25.DWG
Urspr./Ers.f./Ers.d.NormName
Gepr.
Stromlaufplan/Circuit diagram
PL EA
Mat.-Nr. :
Beab. Hi
Datum 29.01.01
SIEMENS
SMD Placement System SIPLACE S25 HM
1
1
Tape cutter, pneumatically operated,
Control board
00323583-xx
component table
+30VDC
+5VDC
GND (30V)
X7do
14
13
2
1
9
3
GND (5V)
GE
A
4
5
8
B
C
Y7
00322063-xx
X4do
3
6
4
br
gn
ye
2a
3a
4a
GND (5V)
RxD
TxD
(Cable)
00328753-xx
lefthand side
Sheet
Sh.
(Cable)
00322071-xx
Control board, tape cutter
X3dq
00329699-xx
1
GND
X5dq
5
2
rd
bk
00332901-xx
(Cable)
X1
1
2
Left valve
LOGIC
piston retracted
Sensor switch
00332900-xx
00332900-xx
Sensor switch
piston extended
+5VDC
3
2
rd
bk
X7dq
+5VDC
3
rd
X8dq
2
bk
2
3
br
gn
ye
Left cylinder
Signal
Signal
Right cylinder
piston extended
piston retracted
Sensor switch
00332899-xx
00332899-xx
Sensor switch
Signal
Signal
00332901-xx
(Cable)
2
1
Right valve
X1
3
bk
2
X10dq
rd
3
bk
X9dq
2
rd
GND
5
2
rd
bk
X6dq
+5VDC
+5VDC
gr
4
pk
5
wh
10
bl
6
7a
7b
1b
2b
3b
6b
X37a
5a
3a
2a
X37a
Interface for comp.-handling
+5VDC
Y7
B
C
A
GE
GND (5V)
Control unit
00356211-xx
00326142-xx
assembly
Communications
4a
br
00321428-xx
(Cable)
gn
wh
5
3
2
X5sd
wh
gn
br
V-24
TxD
RxD
GND
br
gn
wh
gn
br
wh
X207 X1dq
(Cable)
00313400-xx
00337342-xx
righthand side
Terminal panel
1
2
3
8
4
10
GND
+30VDC switched
(lefthand side)
6a
5a
1c
7a
7b
1b
2b
3b
6b
bl
gr&pk
whgr
rd&bk
yebr
vi
grpk
rdbl
whye
+30VDC
+5VDC
GND (5V)
GND (30V)
Left comp. table
00116226-xx
See page 65
See page 116
See page 120
See page 83
See page 111

2 Detailed circuit diagrams 42
PW1-S25 Nozzle changer
AenderungZustand Datum
CAD-Datei : PW1-S25.DWG
Urspr./Ers.f./Ers.d.NormName
Gepr.
Stromlaufplan/Circuit diagram
PL EA
Mat.-Nr. :
Beab. Hi
Datum 29.01.01
SIEMENS
SMD Placement System SIPLACE S25 HM
1
1
9
GND
(Cable)
00317579-xx / W1
X1eb
Nozzle changer 1
00317353-xx
(Cable)
00317578-xx
X60
2
1
V1
Valve
lefthand side
00357878-xx
Terminal panel
00356211-xx
Control unit
I/O boards
Nozzle changer
Sheet
Sh.
X2kf
X4kf
-
wh
X3kf
+
br
X4kf
-
wh
X2kf
00317578-xx
(Cable)
2
1
V1
X60
3
1
wh
br
X2ec
ye
X1ec
9
6
5
4
Valve
Control board - nozzle changer
00317353-xx
Nozzle changer 2
1
3
7
GND
+24VDC
GND
Port A1.2
3
rd
X1kf
7
8
A3
7
13,14
3
bl
-
pk
A1
X1ka X2ka
+ Valve
00317579-xx / W2
(Cable)
- Valve
Nozzle changer open
Nozzle changer closed
GND
+24VDC
X2se
X4sf
13,14
7
8
7
Port E3.3
(Cable)
00344234-xx
00344228-xx
(Cable)
Port E3.2
Nozzle changer closed
Nozzle changer open
Port E3.5
Port E3.4
Port A1.3
GND
13,14
8
X2se
00344228-xx
(Cable)
X2ka
X1ka
13,14
8
-
4
pk
bl
9
10
X4sf
00344234-xx
(Cable)
A1
9
10
5
6
+
rd
ye
br
X3kf
X1kf
A3
+ Valve
- Valve
5
6
X2eb
3
1
wh
br
+24VDC
Control board - nozzle changer
+24VDC
GND
7
3
1
See page 65
See page 86