S25 circuit - 第48页
3 Circ uit d iagrams 48 001 18250-0 10101 LD2 Z-diagra m, mac hine wi ring 1 (Sh. 4 o f 7) 3 Control unit Emerg.-stop loop 9 8 Power 00306380-xx station E D C 8 79 D D Control signals 00322072-xx 00321428-xx V24 00356211…

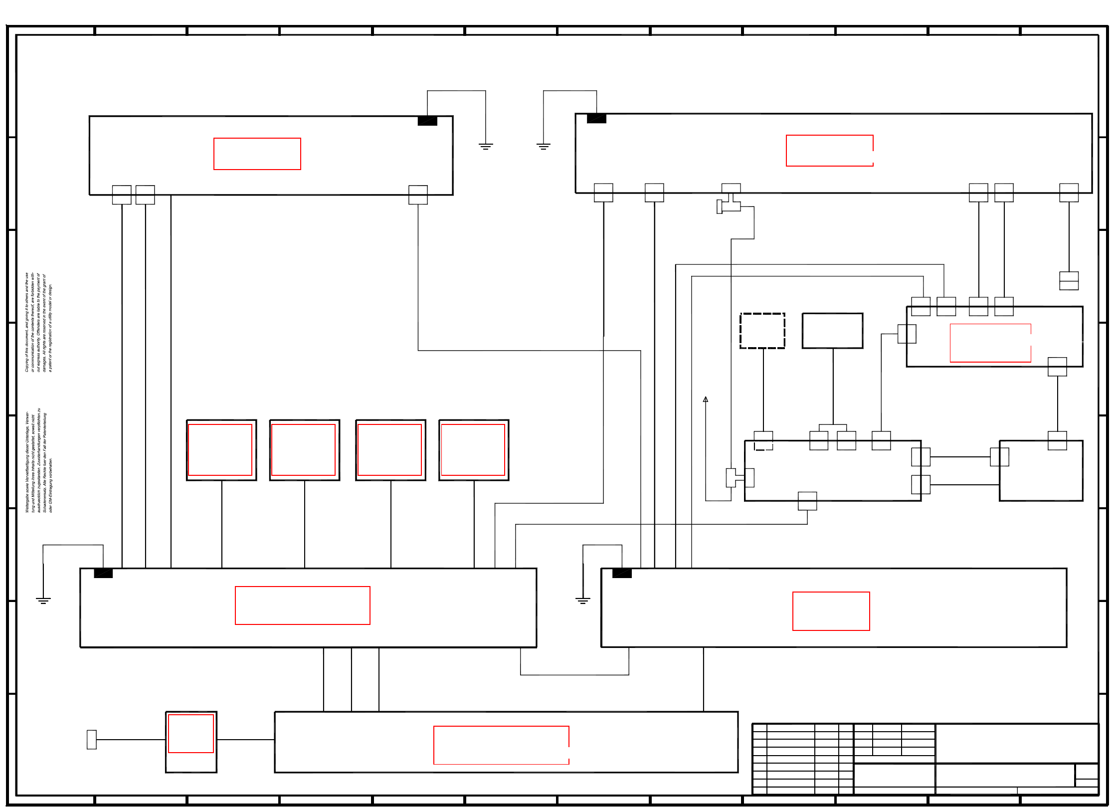
3 Circuit diagrams 47
00118250-010101LD2 Z-diagram, power supply (Sh. 3 of 7)
00321496-xx
M44 VGA cable
00321582-xx
00321581-xx
00337342-xx00337342-xx
X103
X100R
00310194-xx
X2
on the right
X5sc
X5sc
1
00300182-xx
Main power supply
X2
X3
gnye / 6mm²
LAN (von M44)
00344262-xx
X4
X4
gnye / 2.5mm²
00300164-xx
Voltage (6V,30V)
789
Voltage (+8V-12V)
E
00322064-xx
11
00322067-xx
Right
interface
3
Left
LAN
To succeeding machine
421
To term. panel
R1
X103
X100
12
LAN
A
B
Power
23
00324359-xx
3
X3
00322068-xx
Power
00306880-xx
00324356-xx
gnye / 2.5mm²
screen
X101X106X105X103
bei Keyboard
Keyboard und
56
B
10 11 12
A
X106X105X103
X102
00342916-xx
X110
X110
C
touch-screen
R2
Serial 2
9
Mounting plate
5
112
Signale
00322009-xx
11
00337342-xx
00342917-xx
VGA Kabel PC
00321495-xx
* Supplied with monitor
Service
910
on the right
F
G
H
G
machine
frame
Signal K1-K5
X3az
Ground
X4az
Control unit
8
G
F
Ground power supply
12
Ground
Power
H
*
PC
Monitor and
card
X44
X44
C
B
X43X101
X5az
X2az
E
VGA
VGA
X6az
X6az
S23 power supply
Terminal panel
X102X104
X2az
socket
00356211-xx
10
D
4
Tape cutter
00337690-xx
00324358-xx
Ground
power supply
00300272-xx
and LAN
filter
00336812-xx
00300161-xx
00321113-xx
Infeed
00344265-xx
Video-Multiplexer
00322333-xx
Mounting plate
Ground
X1
3x400V / 50Hz
C
00321623-xx
MouseKeyboard
00328348-xx
X43
interface
00322063-xx
Trackball
Servo unit
00343723-xx
Touch-
00344213-xx
H
00300163-xx
Voltage (80V-55V)
X5sa
45 10
Voltage (5V-30V)
A
X17
12
12 4
00301486-xx Ansteuerung
lefthand side
on the right
6
Voltage , power supply unit 1
00344212-xx
X4sa
X4sa
X33
X33
X104
Ground
Ground
F
D
Voltage PC
Voltage (5V-30V)
Supply
00329585-xx
00310194-xx
Ground
67
61 7
Terminal panel
E *
Voltage
*
C
X5az
3
9
Vision VGA cable
To term. panel
gnye / 6mm²
A
X1az
X1az
X3az
H
X5sa
B
D
7
Barcode
frame
machine
X17
Keyboard cable
00313400-xx
00344214-xx
(not to be connected)
G
Tape cutter
F
E
D
8
8
Voltage (30V-80V)
Serial 1
5
00344263-xx (W1)
00344263-xx(W2)
Supply
00313400-xx
X16
X16
00301485-xx Voltage
X4az
00337690-xx
PL EA1 E
SIEMENS AG
Zust. Aenderung Datum Name (Urspr.)
Tu.18.09.00Product status01
01 Document status 18.09.00 Tu.
01 Function status Tu.18.09.00
(Ers. f.:) (Ers. d.:)
00118250-010101LD2
7
Sh.
3
Sheet
18.09.00
Norm
Gepr.
Datum
Bearb.
SIPLACE 80S25HM1Tuth
Z-diagram, power supply
Name
S
ee page 72
S
ee page 65
See page 110
S
ee page 86
S
ee page 83
S
ee page 57
S
ee page 63
See page 41 See page 40 See page 39 See page 38

3 Circuit diagrams 48
00118250-010101LD2 Z-diagram, machine wiring 1 (Sh. 4 of 7)
3
Control unit
Emerg.-stop loop
98
Power
00306380-xx
station
E
D
C
879
D D
Control signals
00322072-xx
00321428-xx V24
00356211-xx
Control signals
X3sd
7
Control signals
Operator panel 1
Communications signals
D
Power
X3kg
X3kg
00303636-xx
10
righthand side
station
00321429-xx V24
00322069-xx
00300379-xx
2
E
F
X4kg
98
8
6
C
B
109
7
1
00344265-xx
H
345 10
103
input conveyor
00 321 436-xx
X37b
X37b
00300379-xx
112
H
00321529-xx
X4kg
00337690-xx
4
3
00322063-xx
G
H
X37a
X37a
00306380-xx
G
4
Signal
00322071-xx
00337690-xx
Tape cutter
X36a
X36a
Emerg.-stop loop
00321433-xx
X5sd X3sd
E
11
Operator panel 2
output conveyor
Control signals
00321434-xx
H
00321432-xx
Tape cutter
G
1
7
B
X5sd
00322070-xx
preceding
6
E
G
6
F
CO table
Communications signals
succeeding
12
F
00303636-xx
12
11 12
B
C
6 11
A
5
C
5
A
Terminal panel, lefthand side
Signal
righthand side
00321528-xx
12
F
lefthand side
00301251-xx
Interface,
lefthand side
A
00322064-xx
CO table
To
1
X36b
To
00301251-xx
X36b
54
12
Interface,
A
B
2
PL EA1 E
SIEMENS AG
Zust. Aenderung Datum Name (Urspr.)
Tu.18.09.00Product status01
01 Document status 18.09.00 Tu.
01 Function status Tu.18.09.00
(Ers. f.:) (Ers. d.:)
00118250-010101LD2
7
Sh.
4
Sheet
18.09.00
Norm
Gepr.
Datum
Bearb.
SIPLACE 80S25HM1Tuth
Z-diagram, machine wiring 1
Name
S
ee page 86
See page 40See page 41
See page 39
See page 39
See page 38
S
ee page 65

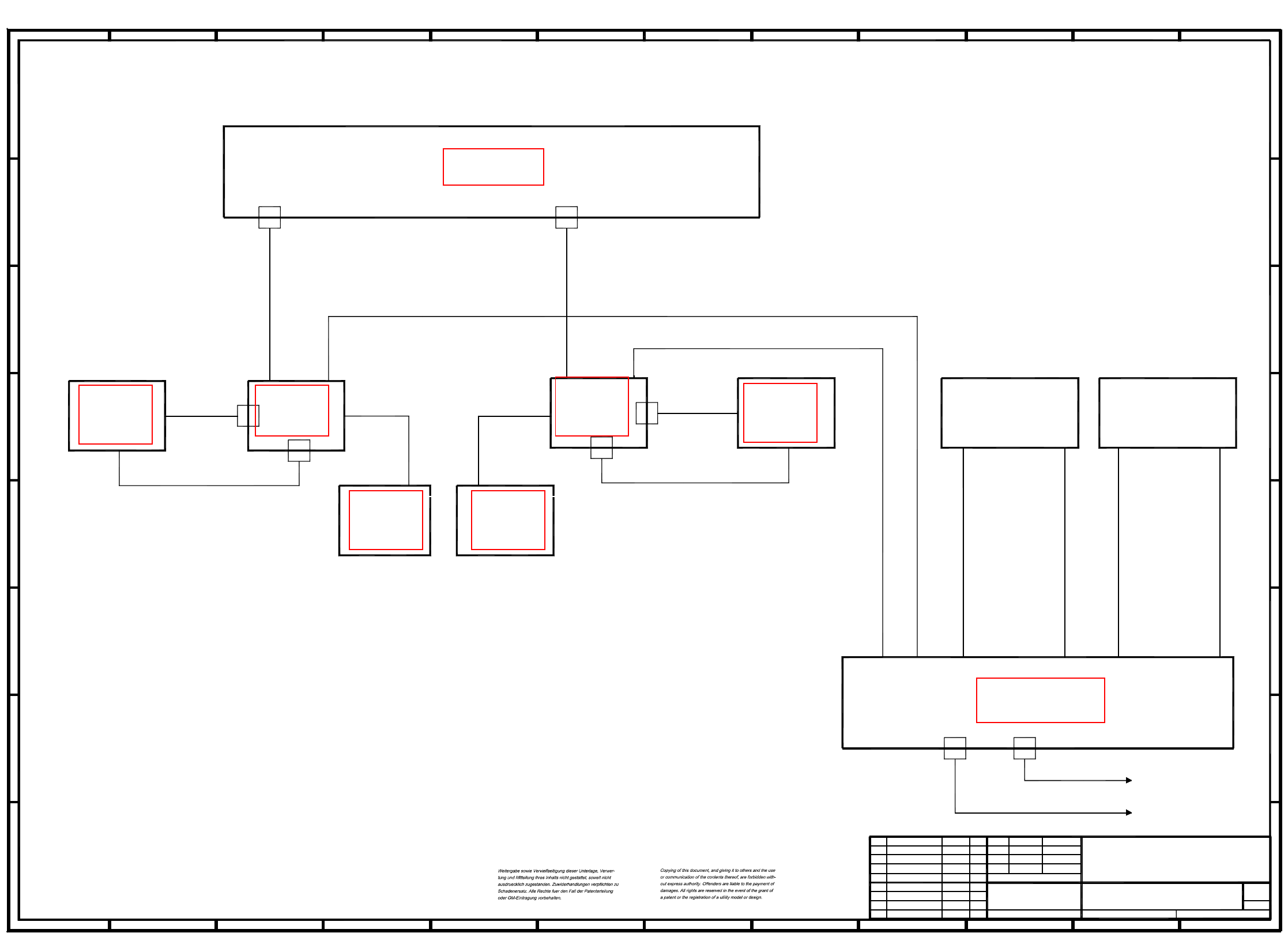
3 Circuit diagrams 49
00118250-010101LD2 Z-diagram, machine wiring 2 (Sh. 5 of 7)
1
10
X4sg
00329284-xx
X4`
X4`
X2sg
00329285-xx
89
G
H
2 7
Option
Lamp main fault indic. on the right
PCB handling
Lamp 'Ready status'
GND
00318689-xx
Icos MC1
00344239-xx
X2kc 1
br
ye
(hood switch
Protection
X2kc -
X2kc 6
X2kc 5
1
00344236-xx*)
*) Applies to option
54
GND
A
43
X4sg
X43
To preceding
station
00321580-xx
00314416-xx
Lamp main fault indic. on the left
C
11
H
A
1
X2sg
br
Main switch from
preceding station
Main switch from
00321580-xx
00321574-xx
00314417-xx
7
E
7
00326068-xx
X3`
X3`
7
G
H
Hood switch
X3sg
Servo unit
C
Voltage/signal
12
2
X14
11
X43
Part of
the options
parts list
station
M44
910
Control
00301486-xx
6
6
Conversion board
wh
D
5 10
PCB conveyor
H
F
E
X2sf
X5sg
X5sg X4sg
1
00321579-xx
(hood switch
Protection
F
12
00344238-xx
lefthand side)
C
12
A
00321421-xx
00321579-xx
Option
To succeeding
station
8
56
98
8
succeeding station
00325581-xx
X2sg
indicator
X3sg
PL EA1 E
SIEMENS AG
Zust. Aenderung Datum Name (Urspr.)
Tu.18.09.00Product status01
01 Document status 18.09.00 Tu.
01 Function status Tu.18.09.00
(Ers. f.:) (Ers. d.:)
00118250-010101LD2
7
Sh.
5
Sheet
18.09.00
Norm
Gepr.
Datum
Bearb.
SIPLACE 80S25HM1Tuth
Z-diagram, machine wiring 2
Name
00321573-xx
to preceding
00300371-xx
To user interface
x2k1
x1k1
X5`
X14
00344232-xx00329283-xx
00326070-xx
X5`
00344238-xx*)
6 11
00344265-xx
to succeeding
00343723-xx
D
Terminal panel, lefthand side
B
X34a
input conveyor
X3
33
00344236-xx
X5
5
X2kc -
B
00321421-xx
x1k1
x2k1
00356211-xx
Main fault
Control unit
9
00348262-xx
X13
12
X4sg
11
X4
X4
Hood switch
Pneumatic system
Voltage/signal
10
E
G
C
F
X2kc 3
X2kc 2
wh
X34a
X2sf
00303617-xx
00326069-xx
station
Hood switch
output conveyor
X1
00322356-xx
00303614-xx
00305815-xx
Hood switch
Lamp
X1
X12
X13
dual conveyor only
2
00321575-xx
F
X12
X3
4
D
righthand side)
Compressed air sensor
E
00300912-xx
Conversion board
PCB handling
Conversion board
2
X5
gn
gn
00344237-xx
00321509-xx
X2sg
D
B
43
B
G
A
S
ee page 72
S
ee page 65
S
ee page 115
S
ee page 86