QEJM5B-E-MPA-11 - 第181页
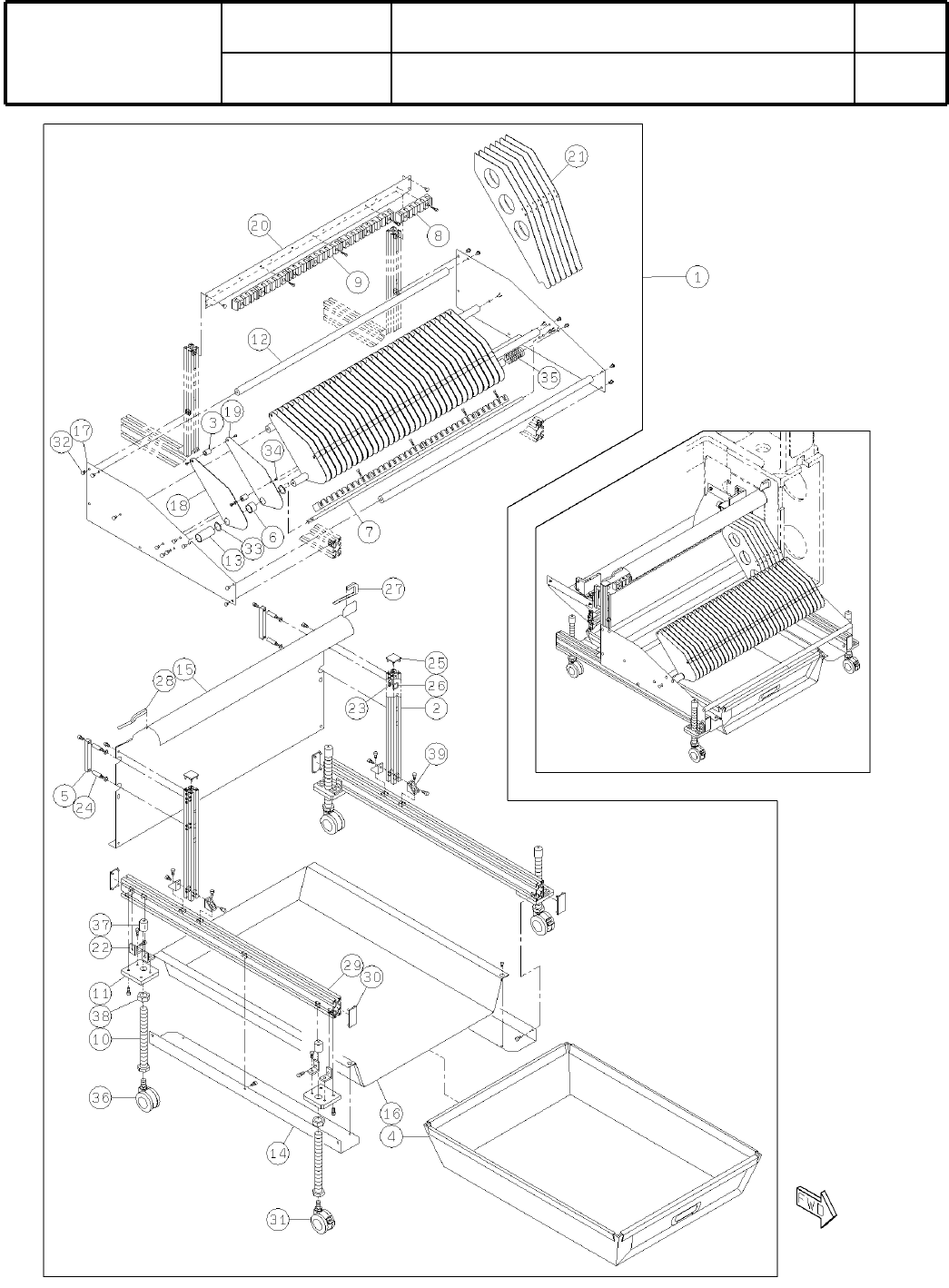
Ref No. Remark s R 1 Q'ty 16-A 固 定 フィーダ用カッティングテープシュート Cutting T ape Chute for Fixed Feeder イラスト No. Part No. 品 名 品番 数量 R 2 パーツリスト Kit N o . キット品 番 Kit Name キット名称 N610044041AA Part Name 備 考 セクションNo. PARTS LIST Sectio…

16-A
固
定
フィーダ用カッティングテープシュート
Cutting Tape Chute for Fixed Feeder
パーツレイアウト
Ki
t
N
o
.
キット
品番
Kit Name
キット名称
N610044041AA
セクションNo.
PARTS LAYOUT
Section No.
--
S65
( KN610044041AA-01-1 )

Ref
No.
Remarks
R
1
Q'ty
16-A
固
定
フィーダ用カッティングテープシュート
Cutting Tape Chute for Fixed Feeder
イラスト
No.
Part No.
品 名品番 数量
R
2
パーツリスト
Kit N
o
.
キット品
番
Kit Name
キット名称
N610044041AA
Part Name
備 考
セクションNo.
PARTS LIST
Section No.
R
3
Main Body Fixation C Kid
1
1 N610069866AA
BRACKET
2
2 KXFB02FRA00
PLATE
2
3 N210028736AA
CHUTE
1
4 N210064797AA
NUT
4
5 KXF0ATGAA00 SFB-002
NUT
2
6 KXF0ARWAA00 SFB-4B6
SPACER
4
7 N510016260AA CF-412E
CABLE-GLAND
2
8 KXF0DG3AA00 V-M20
SWITCH
2
9 KXF0CXNAA00
S
AT0-20-1-I/RS
SPACER
4
10 N510016263AA ASF-530E
FRAME
2
11 N510026956AA SFF-304 L=70
BRACKET
4
12 KXF0ATEAA00 SFJ-018
BOLT
2
13 N510017444AA
Hexagon socket head cap screw M6X45-10.9 A2J (Trivalent)
SPACER
4
14 N510009129AA SFJ-401S
S66
--
( KN610044041AA-01-1 )

16-B
固
定
フィーダ用カッティングテープシュート
Cutting Tape Chute for Fixed Feede
パーツレイアウト
Ki
t
N
o
.
キット
品番
Kit Name
キット名称
N610044041AA
セクションNo.
PARTS LAYOUT
Section No.
--
S67
( KN610044041AA-01-2 )