00191158-01 - 第55页
Käyttöohje SIPLACE 80S-20/F4/F4-6/F5 1 Käyttöturvallisuus Painos 03/98 CE FIN ohjelmave rsiosta SR.404.xx 1.2 Turvallisuusvarusteet 1 - 15 1.2.2 Sisäänsyöttö- ja ulostulohihnojen kosketussuojat VAARA Kosket ussuo ja on a…

1 Käyttöturvallisuus Käyttöohje SIPLACE 80S-20/F4/F4-6/F5
Painos 03/98 CE FIN ohjelmaversiosta SR.404.xx
1.2 Turvallisuusvarusteet
1 - 14
1.2.1.1 Yleistä
Portaalin siirtoalue on katettu kahdella suojakannella. Halutessasi avata suojakannet paina ensin Seis-paini-
ketta (Pos. 1 kuvassa 1.2.2) tai HÄTÄ-SEIS -painiketta (Pos. 2 kuvassa 1.2.2). Portaaliakselit kytkeytyvät voi-
mattomiksi ja pysähtyvät välittömästi.
Jos toinen suojakansi tai sisäänsyöttö- tai ulostulokuljettimella oleva suojalaite avataan, portaaliakselit kytke-
tään voimattomiksi. Ne pysähtyvät välittömästi.
Suojakansien ollessa auki voit jälleentahdistaa tähden alennetulla nopeudella varmistuslukon ollessa suljet-
tuna (asento
I
).
Ladonta pysäytetään HÄTÄ-SEIS -painikkeen ohjauksella. Sen jälkeen voit keskeyttää piirilevyn ladonnan tai
jatkaa sitä. Sivussa olevat suojalevyt voidaan avata koneen seisoessa komponenttien jälkitäyttöä varten.
VAROITUS
Vain vastaavan pätevyyden ja koulutuksen saanut henkilöstö saa avata suojakannet varmistuslukon ollessa
suljettuna (asento
I
)!
Kuva 1.2.2 Seis- ja HÄTÄ-SEIS-painikkeet
- Seloste kuvaan 1.2.2
1 Seis-painike 2 HÄTÄ-SEIS-painike

Käyttöohje SIPLACE 80S-20/F4/F4-6/F5 1 Käyttöturvallisuus
Painos 03/98 CE FIN ohjelmaversiosta SR.404.xx
1.2 Turvallisuusvarusteet
1 - 15
1.2.2 Sisäänsyöttö- ja ulostulohihnojen kosketussuojat
VAARA
Kosketussuoja on aina asetettava työstettävien piirilevyjen korkeudelle. Kosketussuojan ja suojakiskon välillä
on tällöin oltava mahdollisimman pieni väli.
Kosketussuoja asennetaan piirilevykuljettimen sisäänsyöttö- ja ulostulohihnoille.
Kosketussuojan korkeus on säädettävä pitkittäisurien avulla siten, että työstettävät piirilevyt voidaan kuljettaa
koneen lävitse.
Kuva 1.2.3 Kosketussuoja SIPLACE 80S20/F
4
/F
4
-6/F
5
:lla
- Seloste kuvaan 1.2.3
1 Suojakisko (kiinteästi asennettu) 2 Kosketussuoja (säädettävä)
3 Pitkittäisurat korkeudensäätöön 4 Suojus

1 Käyttöturvallisuus Käyttöohje SIPLACE 80S-20/F4/F4-6/F5
Painos 03/98 CE FIN ohjelmaversiosta SR.404.xx
1.2 Turvallisuusvarusteet
1 - 16
1.2.3 HÄTÄ-SEIS -painike, suojakansikytkin ja varmistuslukko
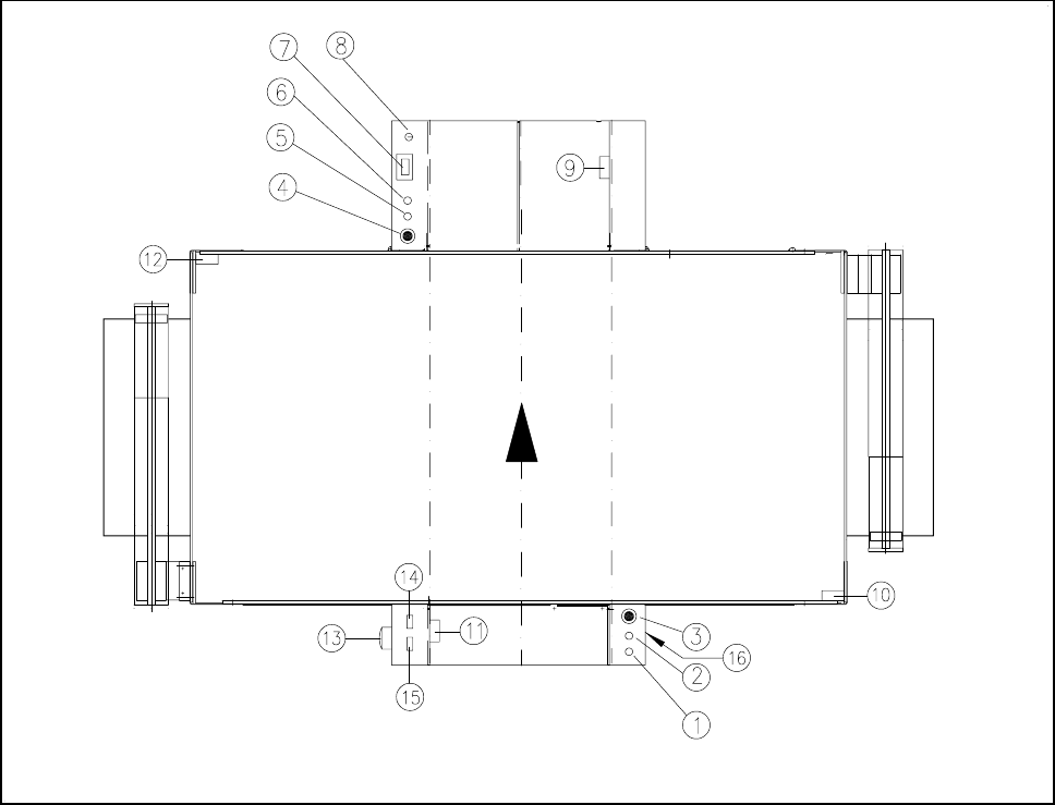
Kuva 1.2.4 Painike- ja suojaturvayhdistelmien K1, K2 asennuspaikat
- Seloste kuvaan 1.2.4
1 Seis-painike
2 Käynnistä-painike
3 HÄTÄ-SEIS-painike
4 HÄTÄ-SEIS-painike
5 Käynnistä-painike
6 Seis-painike
7 Komponenttilaskuri
8 Varmistuslukko avattuna: asento 0 normaalikäytölle
suljettuna: asento I huoltotarkoitukseen
9 Suojakansikytkin (ulostulokuljetus, 00303617-xx)
10 Suojakansikytkin (oikea, 00321417-xx)
11 Suojakansikytkin (sisäänsyöttökuljetus, 00303614-xx)
12 Suojakansikytkin (vasen, 00321416-xx)
13 Pääkytkin
14 Suojaturvayhdistelmä K1
15 Suojaturvayhdistelmä K2
16 Paineilmayksikkö