NPM-W - 第204页
2-B 基 板 ホルダシングル 対応:NPM-W Board Holder For Single:NPM -W パーツレイアウト Ki t N o . キット 品番 Kit N am e キット名称 N610118875AB セクションNo. PARTS LAYOUT Section No. - - O15 ( KN610118875AB-00-2 )

Ref
No.
Remarks
R
1
Q'ty
2-A
基
板
ホルダシングル対応:NPM-W
Board Holder For Single:NPM-W
イラスト
No.
Part No.
品 名品番 数量
R
2
パーツリスト
Kit N
o
.
キット品
番
Kit Name
キット名称
N610118875AB
Part Name
備 考
セクションNo.
PARTS LIST
Section No.
R
3
PLATE
2
1 N210146897AD
PLATE
4
2 N210146939AB
PLATE
4
3 N210146941AB
GUIDE
4
4 N210146943AC
PIN
20
5 N210113757AC
WASHER
8
6 N210161453AA
WASHER
8
7 N210161454AA
WASHER
8
8 N210161459AA
CYL-NUT
4
9 N210146947AA
CYL-NUT
4
10 N210146345AA
WASHER
4
11 N210117337AA
STOPPER
2
12 N210146948AB
WASHER
4
13 N210161425AA
PLATE
2
14 N210146940AC
PLATE
4
15 N210146951AB
DOG
2
16 N210146956AB
DOG
2
17 N210146957AB
BRACKET
4
18 KXFB0A3CA00
STOPPER
2
19 N210147055AA
LINEAR-BUSH
8
20 N510032573AA LMH16LUU
SHAFT
8
21 N510058462AA SF16167M05B
SPACER
8
22 N510035767AA CF-504E
WASHER
8
23 N210160054AA
CYLINDER
4
24 N510057724AA CM2F20-100
JOINT
8
25 KXF09UYAA00 KQ2L04-01S
PLUNGER
4
26 N986MPS4 MPS-4
SPRING
4
27 KXF0CTJAA00 6659
SPACER
8
28 N510057881AA CF-612E
SPACER
16
29 N510050260AA CF-406.5ZE
POST
4
30 N510060300AA SPOS-M4X20-B
O14
--
( KN610118875AB-00-1 )

2-B
基
板
ホルダシングル対応:NPM-W
Board Holder For Single:NPM-W
パーツレイアウト
Ki
t
N
o
.
キット
品番
Kit Name
キット名称
N610118875AB
セクションNo.
PARTS LAYOUT
Section No.
--
O15
( KN610118875AB-00-2 )

Ref
No.
Remarks
R
1
Q'ty
2-B
基
板
ホルダシングル対応:NPM-W
Board Holder For Single:NPM-W
イラスト
No.
Part No.
品 名品番 数量
R
2
パーツリスト
Kit N
o
.
キット品
番
Kit Name
キット名称
N610118875AB
Part Name
備 考
セクションNo.
PARTS LIST
Section No.
R
3
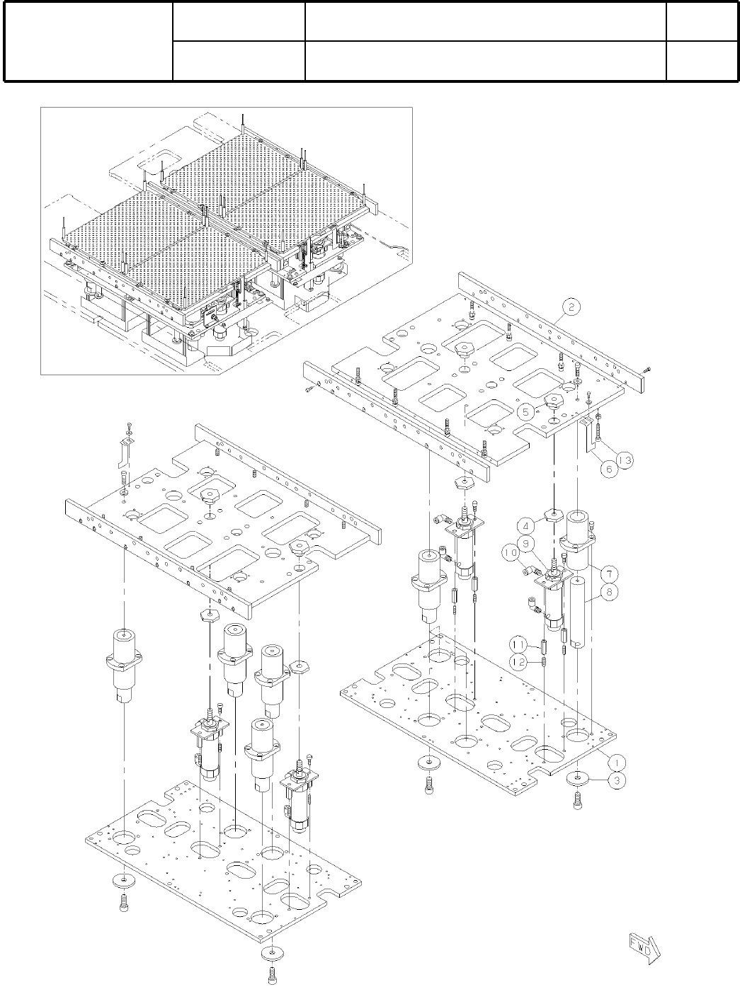
PLATE
2
1 N210146887AF
PLATE
4
2 N210146942AF
WASHER
4
3 N210139772AA
CYL-NUT
4
4 N210161422AA
CYL-NUT
4
5 N210122004AA
DOG
2
6 N210146952AA
LINEAR-BUSH
8
7 N510053990AA LMHC30LUU-PFSC
SHAFT
8
8 N510051414AA SF30163M10B
CYLINDER
4
9 N510048152AA CM2F32-50
JOINT
12
10 KXF0DYW0A00 KQ2L06-01S
SPACER
8
11 N510038214AA ASF-630E
SCREW
8
12 XXE6D20FT
Hexagon socket set screw Cup point M6X20-45H SOB
BOLT
16
13 N510017441AA
Hexagon socket head cap screw M6X35-10.9 A2J (Trivalent) Full thread
O16
--
( KN610118875AB-00-2 )