NPM-W - 第211页
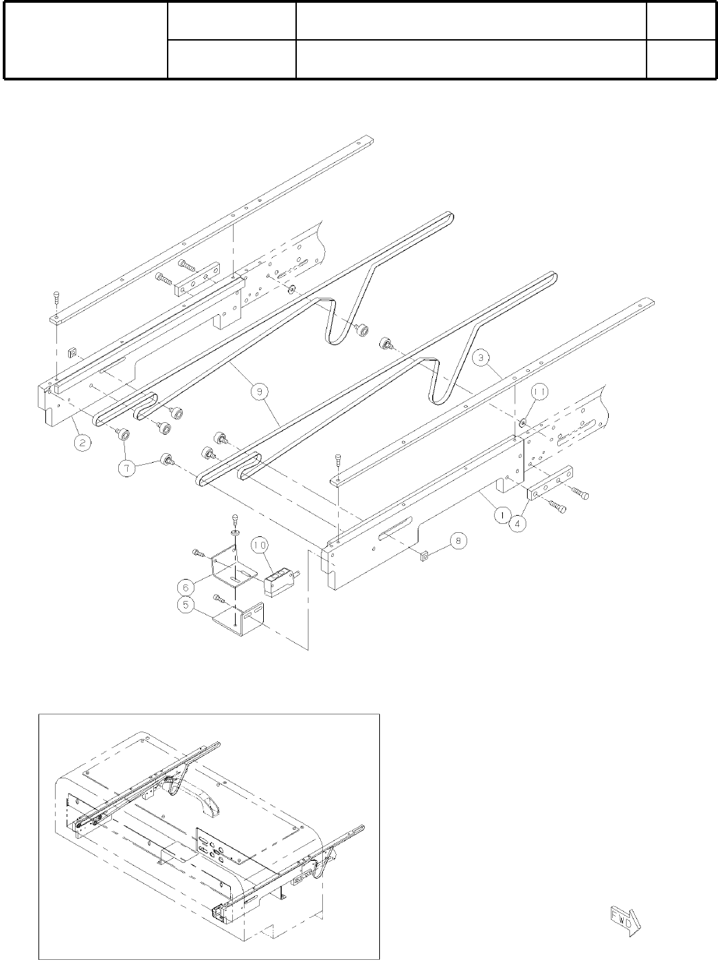
Ref No. Remark s R 1 Q'ty 4 基 板 下 受 けブロックシング ル対応:NPM-W Board Support Bloc k For Single:NPM-W イラスト No. Part No. 品 名 品番 数量 R 2 パーツリスト Kit N o . キット品 番 Kit Name キット名称 N610118877AB Part Nam e 備 考 セクションNo. PARTS LIST Sec…

4
基
板
下
受
けブロックシングル対応:NPM-W
Board Support Block For Single:NPM-W
パーツレイアウト
Ki
t
N
o
.
キット
品番
Kit Name
キット名称
N610118877AB
セクションNo.
PARTS LAYOUT
Section No.
--
O21
( KN610118877AB-00 )

Ref
No.
Remarks
R
1
Q'ty
4
基
板
下
受
けブロックシングル対応:NPM-W
Board Support Block For Single:NPM-W
イラスト
No.
Part No.
品 名品番 数量
R
2
パーツリスト
Kit N
o
.
キット品
番
Kit Name
キット名称
N610118877AB
Part Name
備 考
セクションNo.
PARTS LIST
Section No.
R
3
PLATE
1
1 N210146941AB
O22
--
( KN610118877AB-00 )

5-A
延
長
コンベア(シングル):NPM-W
Extension Conveyor(Single):NPM-W
パーツレイアウト
Ki
t
N
o
.
キット
品番
Kit Name
キット名称
N610126711AA
セクションNo.
PARTS LAYOUT
Section No.
--
O23
( KN610126711AA-08-1 )