NPM-W - 第335页
Ref No. Remark s R 1 Q'ty 41-A ツイント レイフィーダ引出 部 :NP M-W Tw in Tray Feeder Draw ing-out Section:NPM- W イラスト No. Part No. 品 名 品番 数量 R 2 パーツリスト Kit N o . キット品 番 Kit Name キット名称 N610121188AA Part Nam e 備 考 セクションNo. PARTS …

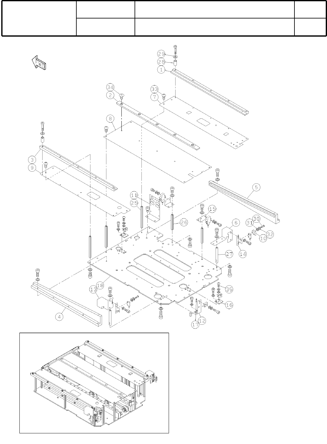
41-A
ツイントレイフィーダ引出
部
:NPM-W
Twin Tray Feeder Drawing-out Section:NPM-W
パーツレイアウト
Ki
t
N
o
.
キット
品番
Kit Name
キット名称
N610121188AA
セクションNo.
PARTS LAYOUT
Section No.
--
O145
( KN610121188AA-08-1 )

Ref
No.
Remarks
R
1
Q'ty
41-A
ツイントレイフィーダ引出
部
:NPM-W
Twin Tray Feeder Drawing-out Section:NPM-W
イラスト
No.
Part No.
品 名品番 数量
R
2
パーツリスト
Kit N
o
.
キット品
番
Kit Name
キット名称
N610121188AA
Part Name
備 考
セクションNo.
PARTS LIST
Section No.
R
3
GUIDE
1
1 N210098252AA
GUIDE
1
2 N210086813AA
GUIDE
1
3 N210098253AA
BLOCK
1
4 N210086819AA
BLOCK
1
5 N210086820AA
BRACKET
1
6 N210143551AA
PLATE
1
7 N210101885AB
PLATE
1
8 N210098256AB
PLATE
1
9 N210143552AB
SLIT
1
10 N210052902AA
BRACKET
1
11 N210094151AC
PH-BRACKET
1
12 N210094153AB
BRACKET
1
13 N210143553AA
BRACKET
2
14 N210050392AB
PH-BRACKET
2
15 N210039980AA
PH-BRACKET
2
16 N210094154AA
NUT-PLATE
1
17 KXFB04N8A00
BASE-PLATE
1
18 N210143554AC
SPACER
14
25 N510019891AA ASF-4100E
SPACER
4
26 N510016924AA ASF-470E
POST
4
27 N510038754AA 87ETKR8-70
SPACER
10
28 N510027891AA 3382330-40100
WASHER
10
29 N510018473AA
Iron round plain washer3X8X1.0(chromeite) A2J (Trivalent)
SCREW
4
30 N510018034AA
Cross recessed Pan head machine screw M2X8-4.8 A2J (Trivalent)
WASHER
4
31 N510018492AA
Round finish plain washer 2 10H A2J (Trivalent)
WASHER
4
32 N510018324AA Spring lock washer No.2 2 S A2J (Trivalent)
BOLT
14
33 N510017536AA
SSS 003 Hexagon socket button head screw M4X8-10.9 A2J (Trivalent)
SCREW
5
34 N510018282AA
Cross recessed Truss head machine screw M4X8-4.8 A2J (Trivalent)
BOLT
4
35 N510000327AA
Hexagon socket button head screw M3X8 Steel Black oxide finish 12.9
O146
--
( KN610121188AA-08-1 )

41-B
ツイントレイフィーダ引出
部
:NPM-W
Twin Tray Feeder Drawing-out Section:NPM-W
パーツレイアウト
Ki
t
N
o
.
キット
品番
Kit Name
キット名称
N610121188AA
セクションNo.
PARTS LAYOUT
Section No.
--
O147
( KN610121188AA-08-2 )