NPM-W.pdf - 第353页
Ref No. Remark s R 1 Q'ty 47 付 属 品(ツイントレイフィーダ): NPM-W Attachme nt(T win Tray Feeder):NPM -W イラスト No. Part No. 品 名 品番 数量 R 2 パーツリスト Kit N o . キット品 番 Kit Name キット名称 N610130744AA Part Name 備 考 セクションNo. PARTS LIST Secti…

47
付
属
品(ツイントレイフィーダ):NPM-W
Attachment(Twin Tray Feeder):NPM-W
パーツレイアウト
Ki
t
N
o
.
キット
品番
Kit Name
キット名称
N610130744AA
セクションNo.
PARTS LAYOUT
Section No.
--
O163
( KN610130744AA-00 )

Ref
No.
Remarks
R
1
Q'ty
47
付
属
品(ツイントレイフィーダ):NPM-W
Attachment(Twin Tray Feeder):NPM-W
イラスト
No.
Part No.
品 名品番 数量
R
2
パーツリスト
Kit N
o
.
キット品
番
Kit Name
キット名称
N610130744AA
Part Name
備 考
セクションNo.
PARTS LIST
Section No.
R
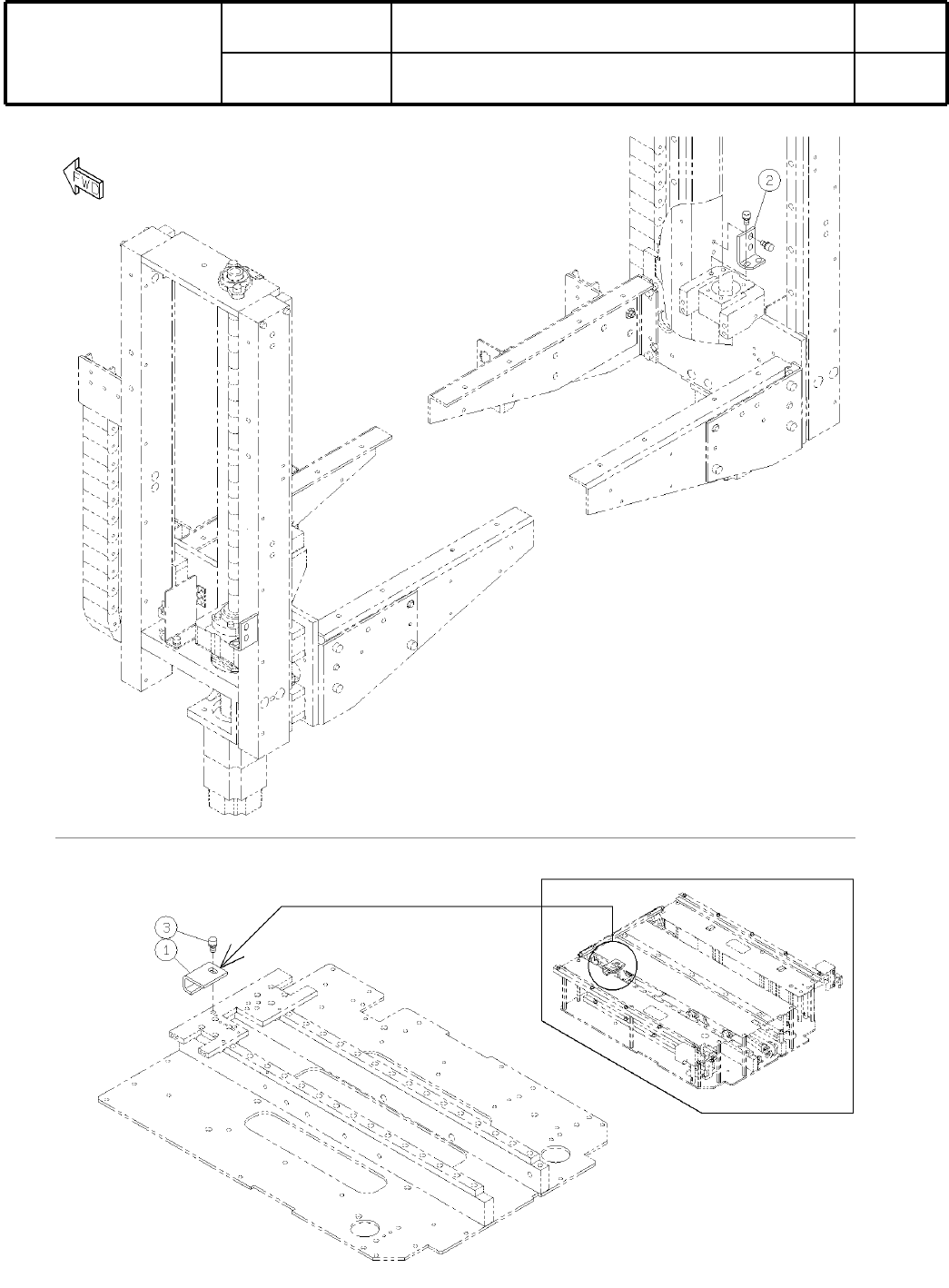
3
BRACKET
2
1 N210057538AA
BRACKET
2
2 N210044422AA
BOLT
10
3 N510040661AA WA SOCKET SP TYPE M5X10-10.9 A2J (Trivalent)
O164
--
( KN610130744AA-00 )

48
13連供
給
カッティング
部
:NPM-W
13-Slot Supply Cutting Part:NPM-W
パーツレイアウト
Ki
t
N
o
.
キット
品番
Kit Name
キット名称
N610121411AA
セクションNo.
PARTS LAYOUT
Section No.
--
O165
( KN610121411AA-03 )