NPM-W - 第595页
Ref No. Remark s R 1 Q'ty 120- A 延 長 コンベア(デュアル):NPM-W Extension C onveyor(Dual):NPM -W イラスト No. Part No. 品 名 品番 数量 R 2 パーツリスト Kit N o . キット品 番 Kit Name キット名称 N610128919AA Part Name 備 考 セクションNo. PARTS LIST Section No…

120-A
延
長
コンベア(デュアル):NPM-W
Extension Conveyor(Dual):NPM-W
パーツレイアウト
Ki
t
N
o
.
キット
品番
Kit Name
キット名称
N610128919AA
セクションNo.
PARTS LAYOUT
Section No.
--
O405
( KN610128919AA-07-1 )

Ref
No.
Remarks
R
1
Q'ty
120-A
延
長
コンベア(デュアル):NPM-W
Extension Conveyor(Dual):NPM-W
イラスト
No.
Part No.
品 名品番 数量
R
2
パーツリスト
Kit N
o
.
キット品
番
Kit Name
キット名称
N610128919AA
Part Name
備 考
セクションNo.
PARTS LIST
Section No.
R
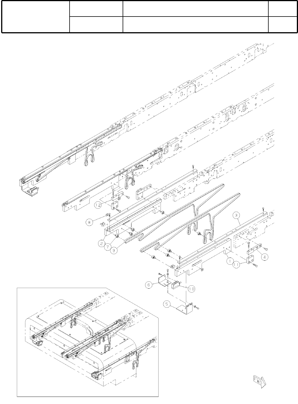
3
FRAME
2
1 N210151409AD
FRAME
2
2 N210151410AD
GUIDE
4
3 N210150893AB
PLATE
3
4 N210161310AA
BRACKET
2
5 N210162350AA
BRACKET
2
6 N210143083AA
PULLEY
16
7 N610127907AA
NUT
4
8 N510048038AA NSMT-04-4
BELT
4
9 N510061365AA
A
TA-4UEB M/D 5.5WX1547.5L
SENSOR(E3S-LS3N:900mm)
2
10 N610102197AA
PLATE
4
11 N210161311AA
PLATE
1
12 N210161625AA
O406
--
( KN610128919AA-07-1 )

120-B
延
長
コンベア(デュアル):NPM-W
Extension Conveyor(Dual):NPM-W
パーツレイアウト
Ki
t
N
o
.
キット
品番
Kit Name
キット名称
N610128919AA
セクションNo.
PARTS LAYOUT
Section No.
--
O407
( KN610128919AA-07-2 )