NPM-W - 第614页
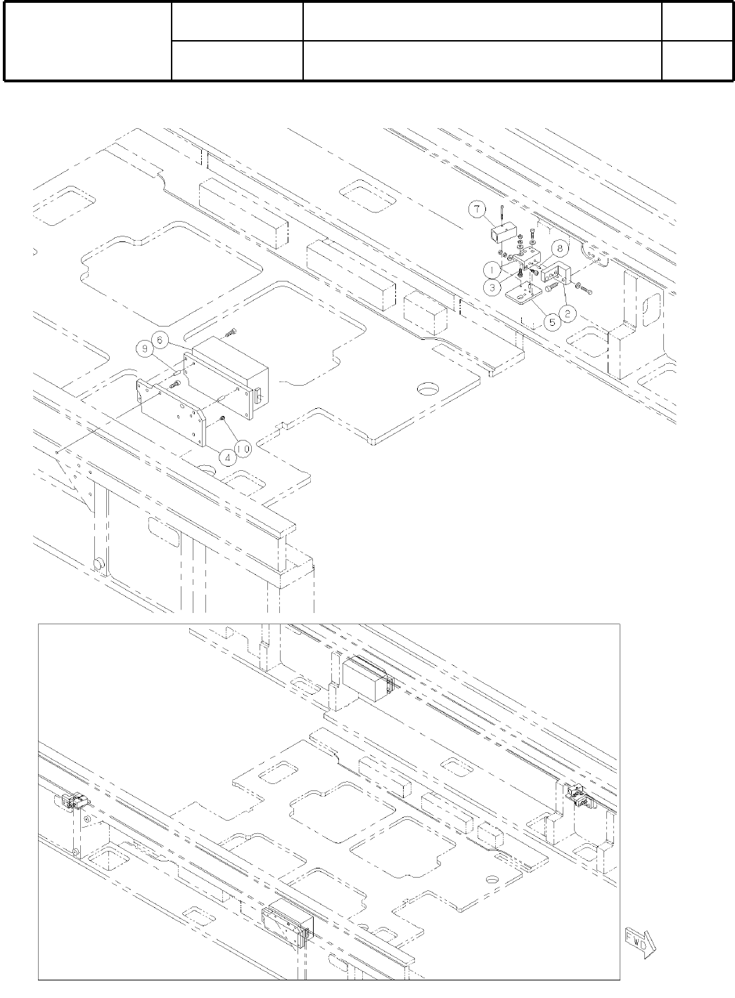
129 バーティカルラインカメラ:NPM-W Vertical Li ne Camera:NPM -W パーツレイアウト Ki t N o . キット 品番 Kit N am e キット名称 N610141625AA セクションNo. PARTS LAYOUT Section No. - - O425 ( KN610141625AA-03 )

Ref
No.
Remarks
R
1
Q'ty
128
デュアルコンベア対応ユニット(本体側):NPM-W
Dual Conveyor Support Unit (For Main Body):NPM-W
イラスト
No.
Part No.
品 名品番 数量
R
2
パーツリスト
Kit N
o
.
キット品
番
Kit Name
キット名称
N610137370AA
Part Name
備 考
セクションNo.
PARTS LIST
Section No.
R
3
COVER
1
1 N210161767AA
PIN
6
2 N510020618AA MMS6-15
JOINT
2
3 KXF0DZUGA00 KQ2U06-99
Dual Conveyor (H):NPM-W
1
4 N610133582AA
O424
--
( KN610137370AA-02 )

129
バーティカルラインカメラ:NPM-W
Vertical Line Camera:NPM-W
パーツレイアウト
Ki
t
N
o
.
キット
品番
Kit Name
キット名称
N610141625AA
セクションNo.
PARTS LAYOUT
Section No.
--
O425
( KN610141625AA-03 )

Ref
No.
Remarks
R
1
Q'ty
129
バーティカルラインカメラ:NPM-W
Vertical Line Camera:NPM-W
イラスト
No.
Part No.
品 名品番 数量
R
2
パーツリスト
Kit N
o
.
キット品
番
Kit Name
キット名称
N610141625AA
Part Name
備 考
セクションNo.
PARTS LIST
Section No.
R
3
BLOCK
1
1 N210166876AA
BLOCK
1
2 N210166877AB
PIN
2
3 KXFB0210A00
PLATE
1
4 N210153669AD
PLATE
1
5 N210166878AB
SENSOR
1
6 N510059071AA
S
HL-X201D
SENSOR
1
7 N510059035AA
S
HL-X201E
PIN
2
8 N510020589AA MMS3-8
PIN
2
9 N510020608AA MMS5-15
SCREW
1
10 XYN4+J8FN
Cross recessed Pan head machine screw with SW & Small round-plain was
O426
--
( KN610141625AA-03 )