Vista MechanicalBook - 第54页
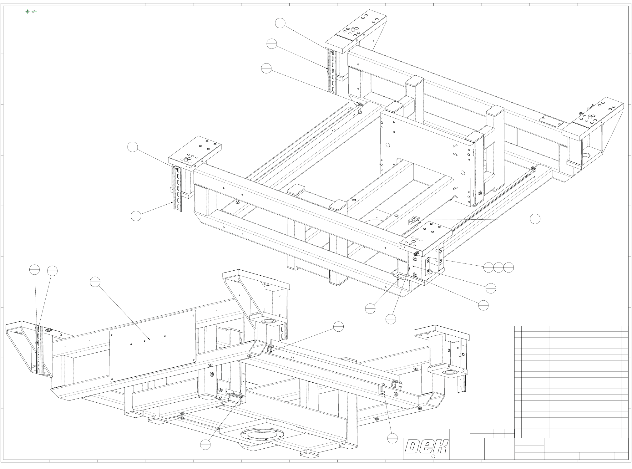
52 Mechanical Drawings 175642 Issue 1 Upper Fram e As sembl y (V ist a ) 5 4 3 2 1 A B C C B A 12345 67 8 91 0 11 12 13 6 7 8 9 10 11 12 13 D E F G H I D E F G H I PROJECTION DRAWN APPROVED DATE C COPYRIGHT DO NOT SCALE …

Mechanical Drawings 51
175613 Issue 2 Front Rail Vista Pallet Transportation

52 Mechanical Drawings
175642 Issue 1 Upper Frame Assembly (Vista)
54321
A
B
CC
B
A
12345
67
8
910
11 12
13
6
7
8
9
10 11
12
13
D
E
F
G
H
I
D
E
F
G
H
I
PROJECTION
DRAWN
APPROVED
DATE
C
COPYRIGHT
DO NOT SCALE
SCALE
TITLE
DRAWING NUMBER
2000
BOM NUMBER
ITEM PART NO. DESCRIPTION QTY.
1
112664 EARTHING STUD 2
2
117076 BRACKET 9 WAY `D' 1
3
117378 BRACKET 9 WAY 1
4
117402 BRACKET, 12 WAY 1
5
117817 BRACKET 4 WAY 2
6
145588 ADJUSTABLE OPTO VANE BRKT 4
7
156382 PUSH IN BASE & TIE 20
8
156861 SPACER 6
9
157745 BRACKET, PNEUMATICS MOUNTING 1
10
175040 RAIL^ STOP BAR^ 2
11
175063 VANE^ OPTO RAIL WIDTH 2
12
175606 UPPER FRAME (FIXED PRINTHEAD) 1
13
700506 NUT M6 FULL ST.ST 8
14
700526 NUT M5 FULL BRASS 6
15
700604 WASHER M6 PLAIN FORM A ST.ST 8
16
700868 SCREW M6X60 SKT. SET(GRUB) 7
17
EN024122_01_01 DIN RAIL 175 LG 3
18
G5120 WASHER M5 BRASS FORM B 6
THIS DRAWING AND THE COPYRIGHT
IN IT, IS THE PROPERTY OF
DEK PRINTING MACHINES LIMITED
IT MAY NOT BE COPIED, REPRODUCED,
PUBLISHED OR DISCLOSED IN WHOLE
OR IN PART WITHOUT OUR WRITTEN
CONSENT.
1:2
C LECLERC
GA ^ UPPER FRAME ^ VISTA
22-NOV-99
175642
175663
SH 1
OF 1
A
0
LATEST
ISSUE
No. DATE DCR INITIAL
01 25 - JUNE 2002 26987 CJL
1
2
4
1
5
2
7
20
8
2
13
8
14
6
15
8
17
1
18
6
16
7
8
2
17
1
2
1
3
1
6
4
9
1
8
2
17
1

Mechanical Drawings 53
175646 S1 Issue 1 Horizon Printhead GA
54321
A
B
CC
B
A
1 2 3 4 5
6 7
8
9 10
10
11 12
12
13
13
6
7
8
9
10 11
11
12
13
13
D
E
F
G
H
I
D
E
F
G
H
I
PROJECTION
DRA
DRA
WN
WN
APPROVED
APPROVED
DA
DA
TE
TE
C
COPYRIGHT
COPYRIGHT
DO NOT SCALE
DO NOT SCALE
SCALE
TITLE
TITLE
DRAWING NUMBER
DRAWING NUMBER
2000
2000
BOM NUMBER
BOM NUMBER
ITEM PART NO.
PART NO.
DESCRIPTION
DESCRIPTION
QTY
QTY
.
1
107245 ELECTRO-MAGNET
ELECTRO-MAGNET
1
2
113822 CABLE TIE CLAMP (M5)
CABLE TIE CLAMP (M5)
7
3
117076
17076
BRACKET 9 WAY `D'
BRACKET 9 WAY `D'
1
4
117131
17131
4 WAY TRIAD 1
5
117324
17324
3 WAY BRACKET
3 WAY BRACKET
1
6
120428 WASHER M5 PLAIN BRASS
WASHER M5 PLAIN BRASS
3
7
129245 BEARING POST
BEARING POST
1
8
129346 BALL BEARING - DEEP GROOVE
BALL BEARING - DEEP GROOVE
10
9
140781 SCREEN CLEAN HOME HALL EFFECT LOOM
SCREEN CLEAN HOME HALL EFFECT LOOM
1
10
145514 FRONT 'Y' TIMING PULLEY
FRONT 'Y' TIMING PULLEY
1
11
145516 AXIS IDLE TIMING PULLEY 2
12
156013 RAIL, PRINTHEAD DRIVE
RAIL, PRINTHEAD DRIVE
1
13
156014 RAIL, CAMERA Y AXIS
RAIL, CAMERA Y AXIS
1
14
156028 DRAG CHAIN, CAMERA Y
DRAG CHAIN, CAMERA Y
2
15
156031 PIVOT, PULLEY
PIVOT, PULLEY
1
16
156034 BEARING BLOCK
BEARING BLOCK
1
17
156035 BALL ROLLER 2
18
156037 PULLEY, CARRIAGE DRIVEN
PULLEY, CARRIAGE DRIVEN
1
19
156038 PULLEY, CARRIAGE DRIVE
PULLEY, CARRIAGE DRIVE
1
20
156039 TIMING BELT, CARRIAGE 1
21
156194 DRAG CHAIN, CARRIAGE
DRAG CHAIN, CARRIAGE
2
22
156213 MOUNT, DRAG CHAIN
MOUNT, DRAG CHAIN
1
23
156329 SUPPORT, DRIVE RAIL
SUPPORT, DRIVE RAIL
1
24
156380 SPACER, PULLEY
SPACER, PULLEY
2
25
156386 WASHER, DISHED
WASHER, DISHED
1
26
156387 WASHER CONVEX
WASHER CONVEX
1
27
156388 PLATE, MAGNET MOUNTING
PLATE, MAGNET MOUNTING
1
28
156499 CHASE PLATE LIMITER
CHASE PLATE LIMITER
1
29
156505 DRAG CHAIN, USC
DRAG CHAIN, USC
1
30
156511 PLATE, USC CHAIN REAR
PLATE, USC CHAIN REAR
1
31
156884 ADJUSTER, M24 X 1.0 PITCH
ADJUSTER, M24 X 1.0 PITCH
2
32
156887 COLLAR, LOCKING
COLLAR, LOCKING
2
33
160702 PRINT CARRIAGE MOTOR (DUNKERMOTOREN)
PRINT CARRIAGE MOTOR (DUNKERMOTOREN)
1
34
161331 O-RING 3.90 x 1.80 SECTION
O-RING 3.90 x 1.80 SECTION
2
35
165475 BELT TENSIONING BRACKET,
BELT TENSIONING BRACKET,
2
36
165477 IDLE BEARING POST
IDLE BEARING POST
2
37
175049 PRINTHEAD^ CASTING^ RHS
PRINTHEAD^ CASTING^ RHS
1
38
175052 CAMERA X DRAG CHAIN
CAMERA X DRAG CHAIN
1
39
175067 BRACKET ^ USC DRIVE
BRACKET ^ USC DRIVE
1
40
175068 BRACKET ^ USC DRIVE
BRACKET ^ USC DRIVE
1
41
175070 BRACKET ^ USC - CHAIN
BRACKET ^ USC - CHAIN
1
42
175079 SCREW^M3^SHOULDER^VIST
SCREW^M3^SHOULDER^VIST
A USC
USC
2
43
175080 ARMATURE PLATE^USC DRIVE^VISTA
ARMATURE PLATE^USC DRIVE^VISTA
2
44
175113 BRACKET^ LOOM RETAINER^
BRACKET^ LOOM RETAINER^
1
45
700104 SCREW M3X14 CAP HD ST.ST
SCREW M3X14 CAP HD ST.ST
4
46
700115 SCREW M5X12 CAP HD ST.ST
SCREW M5X12 CAP HD ST.ST
3
47
700130 SCREW M5X6 CAP HD ST.ST
SCREW M5X6 CAP HD ST.ST
2
48
700404 SCREW M4X6 CSK.SLTD.M/C ST.ST
SCREW M4X6 CSK.SLTD.M/C ST.ST
2
49
700657 WASHER PLASTIC
WASHER PLASTIC
4
50
700658 WASHER SHOULDERED,NYLON
WASHER SHOULDERED,NYLON
4
51
E0505 SMALL P CLIP 6
52
G1404 CLP EXT
EXT
D1400/12 4
THIS DRAWING AND THE COPYRIGHT
THIS DRAWING AND THE COPYRIGHT
IN IT, IS THE PROPERTY OF
IN IT, IS THE PROPERTY OF
DEK PRINTING MACHINES LIMITED
DEK PRINTING MACHINES LIMITED
IT MAY NOT BE COPIED, REPRODUCED,
IT MAY NOT BE COPIED, REPRODUCED,
PUBLISHED OR DISCLOSED IN WHOLE
PUBLISHED OR DISCLOSED IN WHOLE
OR IN PART WITHOUT OUR WRITTEN
OR IN PART WITHOUT OUR WRITTEN
CONSENT
CONSENT
.
1:2
C LECLERC
C LECLERC
GA^VIST
GA^VIST
A PRINTHEAD^^^
PRINTHEAD^^^
10 May 2002
175646
175646
175633
SH
SH
1
OF
OF
2
A
0
LATEST
ISSUE
No. DATE DCR INITIAL
INITIAL
02 01-JUL-02 27562 CJL
RELEASE LEVEL
RELEASE LEVEL
RLName1
RLName1
RIGHT HAND PRINTHEAD SUPPORT
16
16
7
13
13
19
19
20
20
10
10
12
12
22
22
23
23
28
28
30
30
35
35
36
36
38
38
43
43
42
42
34
34
44
44
15
15
18
18
37
37
17
17
51
51
24
24
25
25
26
26
27
27
1
40
40
41
41
11
11
2
9
8
5
52
52
33
33
3
4
49
49
50
50
31
31
32
32
45
45
47
47