JM-20使用说明书 - 第1018页
第 2 部 功能详解篇 第 13 章 选项组件 13 - 36

第 2 部 功能详解篇 第 13 章 选项组件
13-35
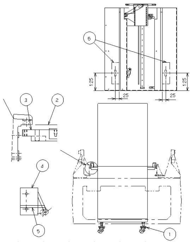
提升脚轮调节器①的 4 处,调整使主机的台架支撑基准面②与本装置的接块③处于相同高度。
用捆束线⑤使主机的构造阀④关闭,会使操作更为容易。
(请充分小心不要将手指夹在台架起重装置内)
调整高度后,请调节水平。
请在 Y 单元上放置水平器⑥进行调整。( ±4 刻度以内)
(使用的水平器为 1Div=0.05mm/M)

第 2 部 功能详解篇 第 13 章 选项组件
13-36

第 2 部 功能详解篇 第 13 章 选项组件
13-37
调整水平后,请将脚轮调节器①(2 处)旋回 1 圈,使装置前部下降。
松开主机构造阀的捆束线,将起重装置的罩安装在主机上,使主机的选择 SW②为 ON,进行夹持。
请多次反复安装拆下,以确认是否确实可以夹持。
(不能夹持时,可能是构造阀不能完全关闭,请调整起重装置罩的位置)
请在夹持状态下再次调整水平(微调整 )。
调整后,请将调节器③降至接触地面的位置,最后用锁紧螺母④进行固定。
请将缆线、压缩空气管道盘绕在框架的下部。
管线・气管