AS176601.pdf - 第17页
AS-1766 17 (3) 材 质 铜箔、镀镍、镀锡、锡水准仪、 镀金 注 : (a) 距离线路板识别标记最 外形在 X/Y 方向的“ 1.0mm ”范围内不 许存有铜箔、保护膜、涂层、丝 网印刷以及穿孔等造成误 识 别的东西。 (b) 线路板识别标记由于线路板的形 状 ( 缺口、穿孔 ) 、来自构造 物的反射光、来自装置外部光的 影响,有时无法识别。 (c) 线路板识别 标记对周围有着强烈的反差效果 。 ( 防止误识别 ) (d) …

AS-1766
16
Table
4.2
形
状
D1 [mm] D2 [mm]
备
注
0.5 ∼ 3.0 0.5 ∼ 1.5
• 标记标准 : 中心
• D2 : 穿孔尺寸
• W : Min. 0.25 mm
0.5 ∼ 3.0 0.5 ∼ 2.0
• 标记标准 : 重心
注: (a) 对于基准图形,标记尺寸误差须在±10% 以内。
(b) 从通孔以及焊盘分出来的配线方向以45° 为一个单位,只有
一个。
(2) 从焊盘以及通孔分出来的配线规格
单位 : mm
Fig. 4.1
(装置前侧)
D2
D1
注 b
D1
D2
1112-001
(装置前侧)
D2
W
D1
注 b
D2
D1
W

AS-1766
17
(3) 材 质
铜箔、镀镍、镀锡、锡水准仪、镀金
注: (a) 距离线路板识别标记最外形在X/Y方向的“1.0mm”范围内不
许存有铜箔、保护膜、涂层、丝网印刷以及穿孔等造成误识
别的东西。
(b) 线路板识别标记由于线路板的形状 (缺口、穿孔)、来自构造
物的反射光、来自装置外部光的影响,有时无法识别。
(c) 线路板识别标记对周围有着强烈的反差效果。(防止误识别)
(d) 在指定的窗口内,除了线路板识别标记以外不许存有其他与
线路板识别标记类似的图形等造成误识别的东西。
(e) 线路板弯曲程度大时,有时无法识别线路板识别标记,因此
需要识别测试。
1.0
X
Y
1.0
1.0
1.0
1.01.0
1.0
1.0
单位 : mm
(装置前侧)
Fi
g
. 4.2
例:
1112-001

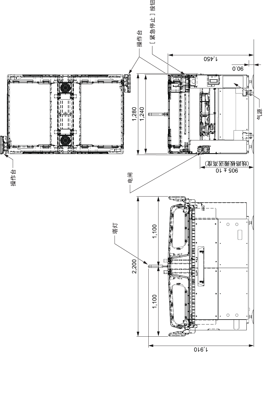
AS-1766
18
5. 装置概观图
单位 : mm
注: 图中为设计基准尺寸。
Fig. 5.1
1112-001