NPM-TT2 PARTS LIST1811 - 第541页
Ref No. Remarks R 1 Q'ty 114- B 17連フィーダー テーブルカバー(切替仕様):NPM-TT2 17-Slot Feeder Table Cov er:NPM -TT 2 イラスト No. Part No. 品 名 品 番 数量 R 2 パーツリスト Kit No. キット品番 Kit Name キット名称 MTKA009073AA Part Nam e 備 考 セク ション No . PARTS…

114-B
17連フィーダーテーブルカバー(切替仕様):NPM-TT2
17-Slot Feeder Table Cover:NPM-TT2
パーツレイアウト
Kit No.
キット品番
Kit Name
キット名称
MTKA009073AA
セクションNo.
PARTS LAYOUT
Section No.
--
O353
( KMTKA009073AA-04-2 )

Ref
No.
Remarks R
1
Q'ty
114-B
17連フィーダーテーブルカバー(切替仕様):NPM-TT2
17-Slot Feeder Table Cover:NPM-TT2
イラスト
No.
Part No.
品 名品 番 数量
R
2
パーツリスト
Kit No.
キット品番
Kit Name
キット名称
MTKA009073AA
Part Name
備 考
セクションNo.
PARTS LIST
Section No.
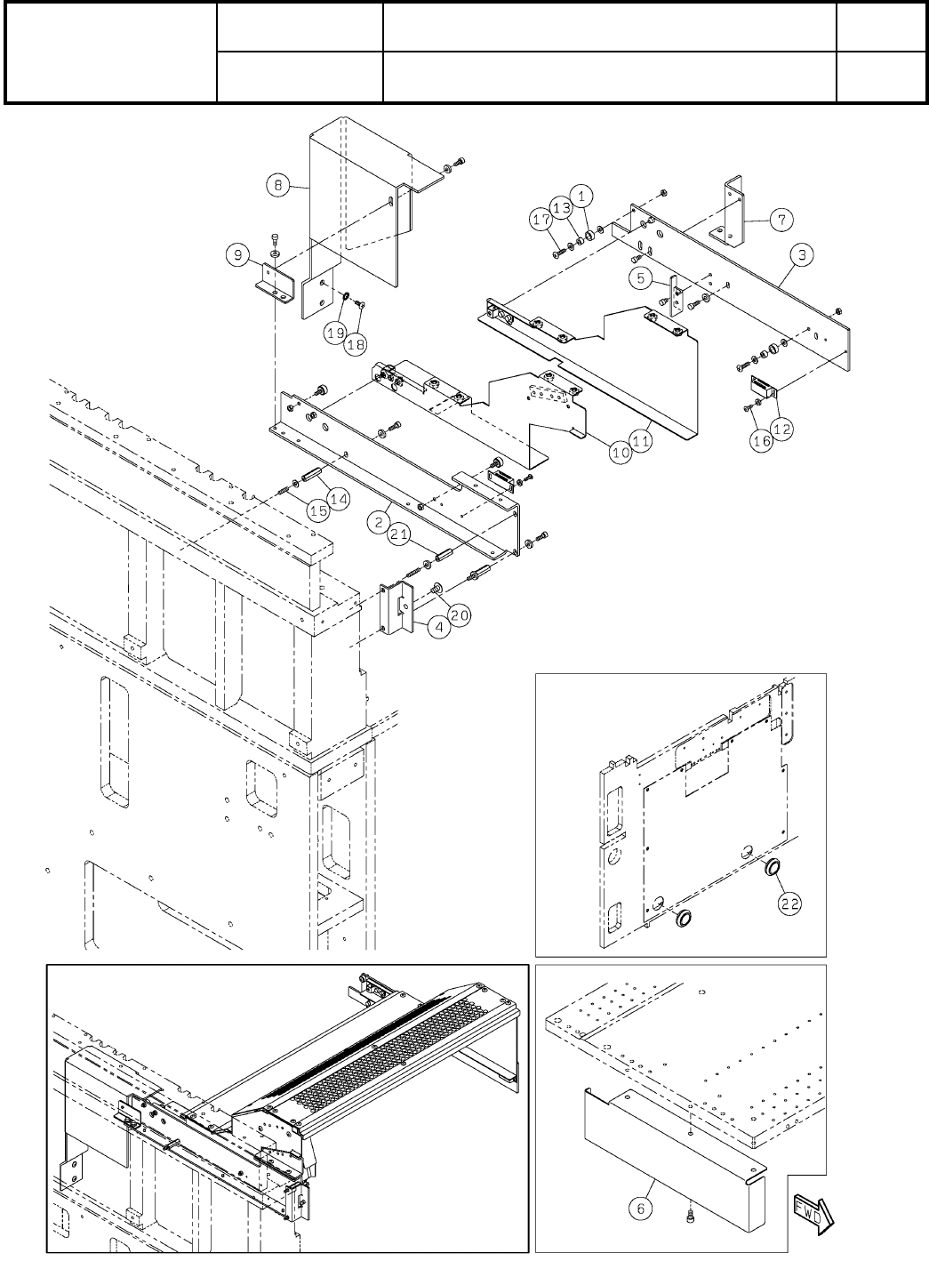
R
3
WASHER
4
1 N210160059AA
BRACKET
1
2 MTPB003321AB
BRACKET
1
3 MTPB009364AA
BRACKET
1
4 MTPB003323AA
COVER
1
5 MTPB003324AB
COVER
1
6 N210172213AC
BRACKET
1
7 MTPB003325AB
COVER
1
8 MTPB009424AA
BRACKET
1
9 N210172904AB
COVER
1
10 MTKP001811AD
COVER
1
11 MTKP001813AD
MAGNET
2
12 KXF0CS8AA00 C-54-2-black
SPACER
4
13 N510017097AA CB-405E
SPACER
1
14 N510029503AA ASF-428E
SCREW
1
15 N510020560AA
Hexagon socket set screw Cup point M4X15-45H A2J (Trivalent)
SCREW
4
16 N510018233AA
Cross recessed Truss head machine screw M3X10-4.8 A2S (Trivalent)
SCREW
4
17 N510018266AA
Cross recessed Truss head machine screw M4X16-4.8 A2S (Trivalent)
SCREW
2
18 N510018285AA
Cross recessed Truss head machine screw M5X10-4.8 A2S (Trivalent)
WASHER
2
19 N510018765AA
Toothed lock washer 5 External toothed Steel Unichrome white (Trivalent)
SCREW
1
20 N510018304AA
Cross recessed Truss head machine screw M6X10-4.8 A2J (Trivalent)
SPACER
2
21 N510029505AA ASF-424E
GROMMET
2
22 N510056668AA C-30-SG-42A-EP-UL
O354
--
( KMTKA009073AA-04-2 )

115
銘板・警告ラベル(フィーダテーブルカバー(17連切替仕様)):NPM-
Label(Feeder Table Cover):NPM-TT2
パーツレイアウト
Kit No.
キット品番
Kit Name
キット名称
MTKA009379AA
セクションNo.
PARTS LAYOUT
Section No.
--
O349
( KMTKA009379AA-03 )