N7201A653J - 第417页
NPM- TT2 EJM1EJ-MB-14M-02 搬送 14-2 フォークリフト・パレット台車を使うとき フォークより設備下面が高くなるまで、アジャス トボルトの調整ボルトを回す。 フォークを右側から設備下面に入れる。 ● 2 本のフォークの中心をシールの▼に合わ せる。 フォークを上昇させて、設備を持ち上げる。 適切な場所に移動して降ろす。 使用工具:スパナ 65 mm (2 本 ) パレット台車、または フォークリフト ロックナッ…

NPM-TT2 EJM1EJ-MB-14M-02
設置の前に
■1次側電源
14-1
メンテナンス
編
14-1
結露しない環境
●温度:10~35℃
●湿度:25 ~ 75 %RH
メンテナンス
作業ができる
十分なスペース
配置図をもとに、
床に基準線を引く
■空圧源
●エアドライヤーを使用した清浄なエアを使用する。
●エア圧:0.5 ~ 0.8 MPa
エア供給後、レギュレーターでエア圧を0.500 ~
0.505 MPaにする。
●エア供給量:200 L/min(A.N.R.)
●ホース接続用の給入口サイズ:3/8
平らな
コンクリートの床
●設置場所の耐荷重:
4903 N/m
2
以上
●工場内で管理された電源設備から供給する。
(公共低電圧配電システム:商用電源には、直接
接続しない)
通常使用
電源
3相AC 200/220 ±10 V
380/400/420/480 ±20 V
周波数 50 / 60 Hz ±5 %
定格容量
2.5 kVA
設置する場所を確認する
1次側電源・空圧源の仕様を確認する
水平な場所
●基板搬送高さ:900 ~ 920 mm
(単体、ライン連結とも)
●「外形寸法と作業エリア」 (→ 『操作編』P.6-1-3)、「高度」 (→ 『操作編』P.6-1-1)

NPM-TT2 EJM1EJ-MB-14M-02
搬送
14-2
フォークリフト・パレット台車を使うとき
フォークより設備下面が高くなるまで、アジャス
トボルトの調整ボルトを回す。
フォークを右側から設備下面に入れる。
●2本のフォークの中心をシールの▼に合わせる。
フォークを上昇させて、設備を持ち上げる。
適切な場所に移動して降ろす。
使用工具:スパナ 65 mm (2本)
パレット台車、または
フォークリフト
ロックナット
調整ボルト
アジャストボルト
フォーク
差し込み位置
フォーク
■フォークの差し込み位置
●フォークは側面から挿入してください。
クレーンを使うとき
専門の運送会社にご相談ください。
アイボルト
(4か所)
●アイボルトは運搬台などの固定用として使用する。また、固定
用ロープと水平線との角度θは45度以内。
●アイボルトは吊り上げ用には使用しない。
●運送後は、アイボルトを保管する。
ご注意
θ
固定用ロープ
運搬台など
MASS:2650 kg
CENTER
1
2
3
4
メンテナンス
編
14-2
前側
右側
搬送のときは、設備の取り扱いに十分ご注意ください。交換台車、トレイフィーダー、ケーブル、配管が本
体に接続されているときは、搬送前に取り外してください。
また、延長コンベヤーを取り付けている設備では、延長コンベヤーに付属のケーブルを設備本体から取り外
し、フォークなどで挟み込まないよう注意してください。

NPM-TT2 EJM1EJ-MB-14M-02
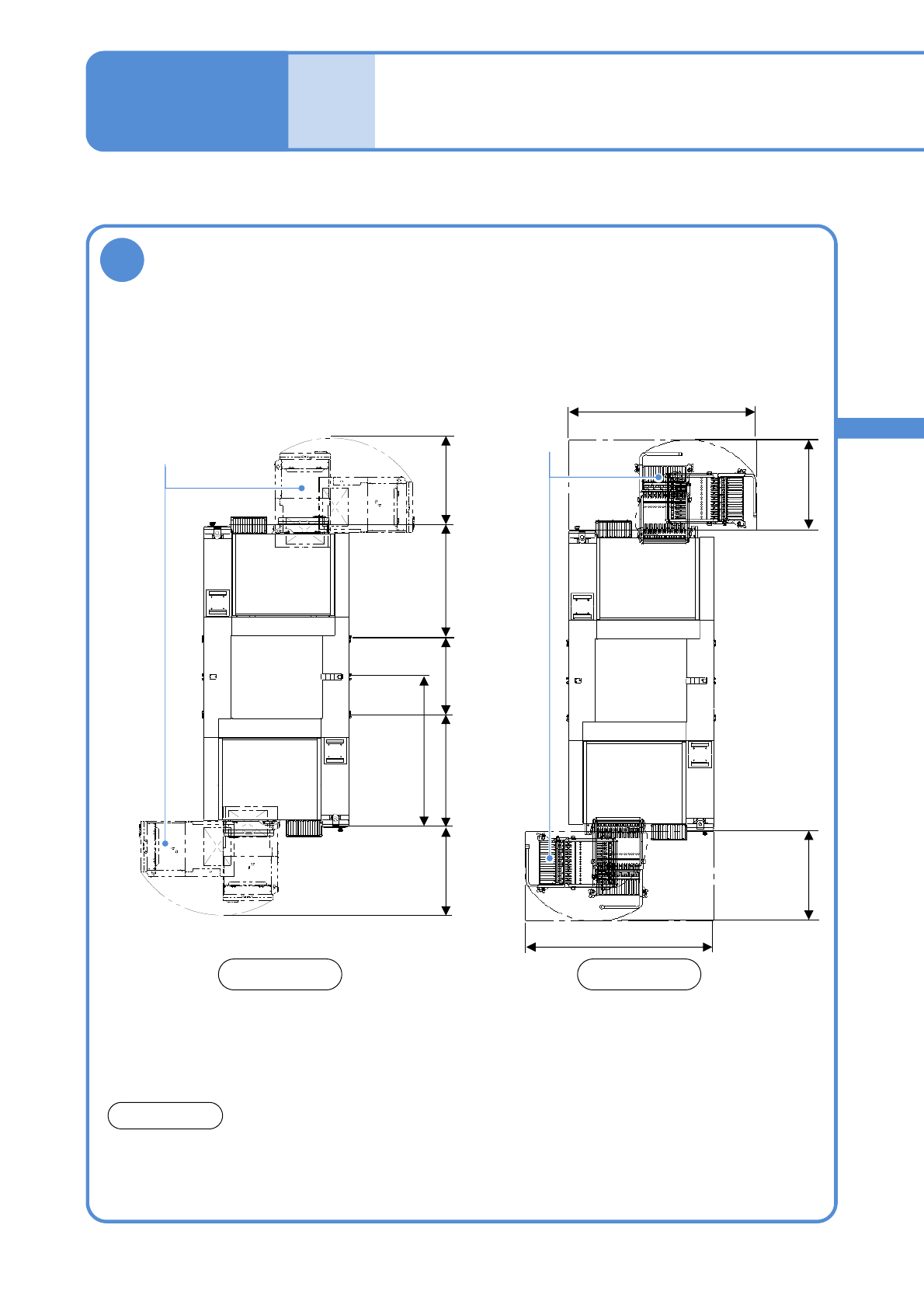
781
1 639
781
1 639
763
971
686
1 314
971
763
14-3-1
使用工具:コンベックス、六角レンチ(3 mm, 4 mm)、金尺、水準器、スパナ 2本(65 mm)
設置 1
メンテナンス
編
14-3
●設置に関しては、専門の方の指示に従ってください。
●再配置に関しては、当社にお問い合わせください。
お願い
前側
1
据え付ける
床の基準線に沿って仮置きし、設置位置を調整する。
●前後の設備間の基板搬送がスムーズに行えるように、方向と高さを調整する。
●隣接する設備との間隔は、1 ~5 mmにする。
●設備の下にダクトなどを通すときは、本体との隙間を40 mm以上空ける。
(下図は最少スペース、単位はmm)
シングル
トレイフィーダー
(オプション)
交換台車
(オプション)
前側