182052 Mechanical Drawings - 第40页
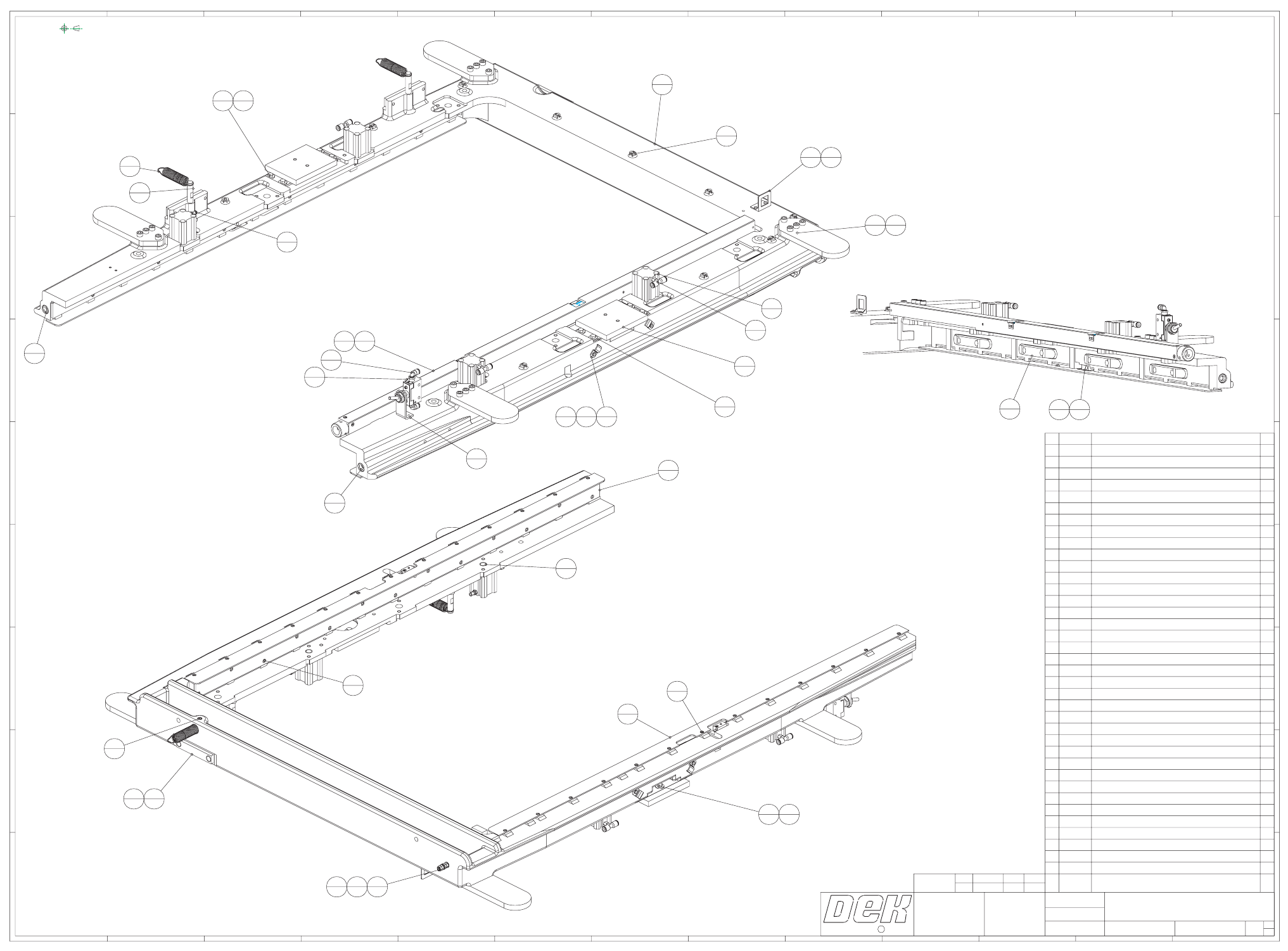
38 Mechanical Drawings 163028 Issue 3 ELA Base Frame GA 5 4 3 2 1 A B C C B A 123 45 67 8 91 0 11 12 13 6 7 8 9 10 11 12 13 D E F G H I D E F G H I PROJECTION DRAWN APPROVED DATE C COPYRIGHT DO NOT SCALE SCALE TITLE DRAW…

Mechanical Drawings 37
163005 Issue 1 Upper Frame GA
54321
A
B
CC
B
A
12345
67
8
910
11 12
13
6
7
8
9
10 11
12
13
D
E
F
G
H
I
D
E
F
G
H
I
PROJECTION
DRAWN
APPROVED
DATE
C
COPYRIGHT
DO NOT SCALE
SCALE
TITLE
DRAWING NUMBER
1999
BOM NUMBER
ITEM PART NO. DESCRIPTION QTY.
1
107471 RAIL STOP BAR 2
2
112664 EARTHING STUD 2
3
117076 BRACKET 9 WAY `D' 1
4
117378 BRACKET 9 WAY 1
5
117402 BRACKET, 12 WAY 1
6
117817 BRACKET 4 WAY 2
7
145588 ADJUSTABLE OPTO VANE BRKT 4
8
145589 OPTO VANE ANGLE 2
9
156382 PUSH IN BASE & TIE 21
10
156861 SPACER 4
11
157254 STUD, M6 RAIL STOP BAR 4
12
157298 UPPER FRAME (FIXED PRINTHEAD) 1
13
157745 BRACKET, PNEUMATICS MOUNTING 1
14
700506 NUT M6 FULL ST.ST 8
15
700511 NUT M6 HEX. LOCK ST.ST 4
16
700526 NUT M5 FULL BRASS 6
17
700604 WASHER M6 PLAIN FORM A ST.ST 12
18
EN024122_01_01DIN RAIL 175 LG 2
19
G5120 WASHER M5 BRASS FORM B 6
THIS DRAWING AND THE COPYRIGHT
IN IT, IS THE PROPERTY OF
DEK PRINTING MACHINES LIMITED
IT MAY NOT BE COPIED, REPRODUCED,
PUBLISHED OR DISCLOSED IN WHOLE
OR IN PART WITHOUT OUR WRITTEN
CONSENT.
1:2
ACR
UPPER FRAME GA
22-Nov-99
163005
160008
SH 1
OF 1
A
0
LATEST
ISSUE
No. DATE DCR INITIAL
01 22-Nov-99 ... ACR
6
8
18
2
5
16
19
14
17
1
10
13
3
7
11
4
9
12
15

38 Mechanical Drawings
163028 Issue 3 ELA Base Frame GA
54321
A
B
CC
B
A
12345
67
8
910
11 12
13
6
7
8
9
10 11
12
13
D
E
F
G
H
I
D
E
F
G
H
I
PROJECTION
DRAWN
APPROVED
DATE
C
COPYRIGHT
DO NOT SCALE
SCALE
TITLE
DRAWING NUMBER
2001
BOM NUMBER
ITEM PART NO. DESCRIPTION QTY.
1
107309 VIBRATION ISOLATOR 4
2
107310 SNUBBING WASHER 4
3
107499 Y-UNION 1
4
112068 STUD M12. 4
5
117119 KLIPPON SUPPORT BLOCK TYPE SH1 1
6
117131 4 WAY TRIAD 1
7
129024 DIN RAIL 125 LG 1
8
133364 BUFFER STOP ASSY. 1
9
140750 MACHINE LEVELLING FOOT 4
10
155875 BASE FRAME TRUNKING 1
11
156382 PUSH IN BASE & TIE 17
12
156429 MAINS TRUNKING 1
13
156430 MAINS TRUNKING 1
14
156875 MMI FRAME CONNECTOR BRKT 1
15
157543 LOWER FAN ASSEMBLY / M19 1
16
157762 CRATE SLIDES ARRANGEMENT (LFRM 157684) 1
17
163087 BRKT, ISOLATOR BOX MTG. 1
18
163223 265 LOWER FRAME / ELA 1
THIS DRAWING AND THE COPYRIGHT
IN IT, IS THE PROPERTY OF
DEK PRINTING MACHINES LIMITED
IT MAY NOT BE COPIED, REPRODUCED,
PUBLISHED OR DISCLOSED IN WHOLE
OR IN PART WITHOUT OUR WRITTEN
CONSENT.
1:4
ACR
LOWER FRAME GA (ELA)
17-Nov-99
163028
163108
SH 1
OF 1
A
0
LATEST
ISSUE
No. DATE DCR INITIAL
03 12-FEB-01 26702 PH
6
7
8
12
13
15
5
11
1
2
4
14
16
18
10
3
17
9

Mechanical Drawings 39
163093 Issue 3 Chase Assembly GA
54321
A
B
CC
B
A
12345
67
8
910
11 12
13
6
7
8
9
10 11
12
13
D
E
F
G
H
I
D
E
F
G
H
I
PROJECTION
DRAWN
APPROVED
DATE
C
COPYRIGHT
DO NOT SCALE
SCALE
TITLE
DRAWING NUMBER
2001
BOM NUMBER
ITEM PART NO. DESCRIPTION QTY.
1
107193 NEOPRENE SPINDLE MOD. 4
2
107259 SPRING TENSION (T32030M) 3
3
107271 TUBING CLIP DOUBLE DIA. 4 4
4
107843 M5X.8-4MM TEE FITTING 3
5
112664 EARTHING STUD 1
6
117376 BRACKET,6 WAY 1
7
128261 TOGGLE SWITCH 1
8
133746 ACTUATOR PLATE(6mm) 3
9
155744 SCREEN SENSOR LOOM 1
10
156206 STENCIL SUPPORT STRIP 2
11
156237 SPRING POST 2
12
156254 COTTER PIN 1
13
156256 ROLLER COUNTER PLATE 4
14
156266 SCREEN DEPTH ADJUSTER, ASM 1
15
156325 1/4 TURN RECEPTACLE 2
16
156382 PUSH IN BASE & TIE 11
17
156768 CHASE CASTING 1
18
156769 STENCIL GUIDE STRIP 1
19
156819 STENCIL LOCATION SKI GA 4
20
163151 BRKT, TOGGLE SWITCH 1
21
163155 PNEUMATIC ELBOW 2
22
163156 CYLINDER 4
23
165534 LEAF SPRING, CHASE CLAMP 2
24
165535 ARMATURE PLATE 2
25
700003 SCREW M3X8 PAN.HD SLTD MC ST.ST 15
26
700036 SCREW M4X8 PAN.HD SLTD MC ST.ST 5
27
700124 SCREW M6X20 CAP HD ST.ST 16
28
700211 SCREW M5X12 HEX.HD HT ST.ST 8
29
700253 SCREW M5X8 HEX.HD HT ST.ST 4
30
700311 SCREW M3X12 BUTT.HD ST.ST 2
31
700402 SCREW M3X8 CSK.SLTD.M/C ST.ST 26
32
700460 SCREW M5X16 CSK.SKT. HT.BLACK 6
33
700526 NUT M5 FULL BRASS 4
34
700601 WASHER M3 PLAIN FORM A ST.ST 4
35
700646 WASH M5 PLAIN FRM G CLEAR ZN.PL 12
36
701011 SCREW M3X8 PAN POZI TRI TAP (ST/ZINC/CLR) 4
37
G5120 WASHER M5 BRASS FORM B 3
38
G5212 4MM-M5 MALE CONNECTOR 1
1:2
ACR
CHASE ASSEMBLY GA
18-Nov-99
163093
163096
SH 1
OF 1
A
0
LATEST
ISSUE
No. DATE DCR INITIAL
03 6-DEC-01 26889 PAH
13
4
6
1
11
2
14
1
17
1
2
3
26
5
3
4
16
11
25
2
27
16
34
4
36
4
20
1
38
1
4
3
22
4
7
1
21
2
15
1
15
1
23
2
24
2
28
8
35
8
8
3
10
2
12
1
25
13
31
26
5
1
33
4
37
3
32
6
18
1
1
4
29
4
35
4
9
1
30
2
19
4
IT MAY NOT BE COPIED,REPRODUCED,
PUBLISHED OR DISCLOSED IN WHOLE
OR IN PART WITHOUT OUR WRITTEN
CONSENT.
IN IT, IS THE PROPERTY OF
THIS DRAWING AND THE COPYRIGHT
DEK
PRINTING MACHINES LIMITED,