00194313-03 - 第63页
SIPLACE S-25 HM / S-27 HM 2 Assembly Inst ructions for PCB Camera, Multicolor 02/2007 Edition 2.5 Preparatory Steps 63 : Open the vertica l cable duct on the right. : Remove the lamp-wire conne ctor with the white, blue-…

2 Assembly Instructions for PCB Camera, Multicolor SIPLACE S-25 HM / S-27 HM
2.5 Preparatory Steps 02/2007 Edition
62
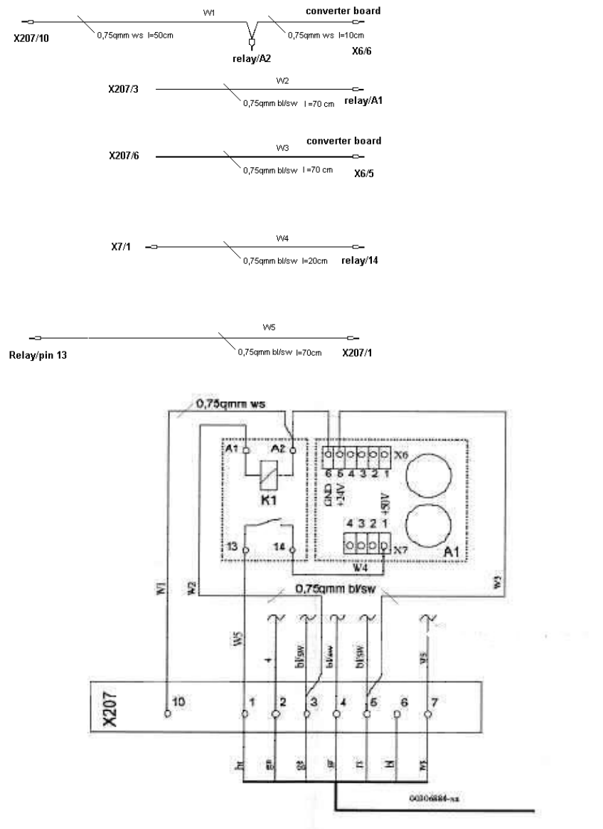
2.5.3 S-25 HM wiring with terminal panel on right-hand side, new version
(new rectifier module A2, lamp-wire connector in cable duct)
2
W1: Ground connection for
relay and converter board
W2: Connection switched
24VDC from X207/3 (only
available if cover is closed)
W3: 24VDC input for converter
board from X207/5
W4: 50VDC output of converter
board to pin 14 of relay
W5: Switched relay output
50VDC to X207/1 (brown wire of
cable 00306880) 2

SIPLACE S-25 HM / S-27 HM 2 Assembly Instructions for PCB Camera, Multicolor
02/2007 Edition 2.5 Preparatory Steps
63
: Open the vertical cable duct on the right.
: Remove the lamp-wire connector with the white, blue-black and blue wires.
2
2
: Wire from X207/5 to relay connection A2.
: Wire from X207/3 to relay connection A1.
If there are no free slots, crimp to existing wire with double ferrule.
: Clamp white wire from the lamp-wire connector to X6/6 (GND).
: Clamp blue-black wire from the lamp-wire connector to X6/5 (+24 V).
: Clamp wire from relay connection 14 to X7/1 (+ 50 V).
: Blue wire from the lamp-wire connector to relay connection 13.
A207/5 to A2
X207/3 to A1
X6/6
X6/5
X7/1
Relay connection 13

2 Assembly Instructions for PCB Camera, Multicolor SIPLACE S-25 HM / S-27 HM
2.5 Preparatory Steps 02/2007 Edition
64
2
2
: Two in a single ferrule (00344260-xx and 00344261-xx):
Remove green, white, blue and gray wires from terminal X212/4.
: Remove and insulate brown wire from X212/9 and place in the cable duct.
: Now combine the white and green wires in a single ferrule.
: Then combine the two green and blue wires using a quadruple ferrule.
2
2
X212/4
X212/9