03. NXT Feeder Part list III - 第137页
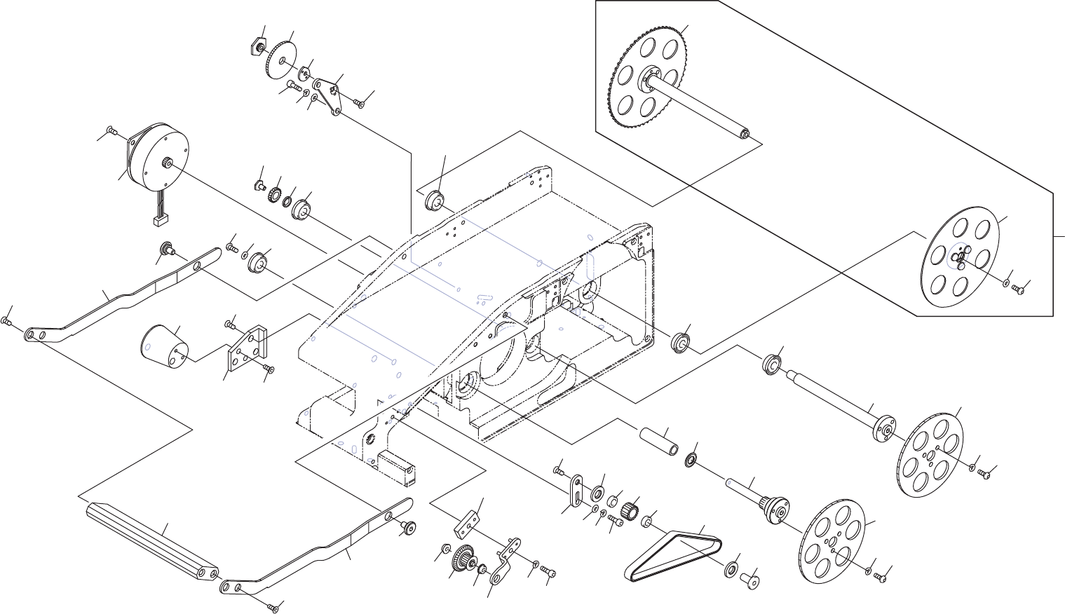
FEEDER W104 2/3 フィーダ W104 2/3 AA4EN18 No. Dr g .No. & Code No. QTY Descri p tion Ratin g Materials Remarks 番号 図番 & コード番号 個数 品名 規 格材 質 備 考 1 AA9NK01 1 SHAFT シャフト OT 2 AA7GH01 1 SHAFT シャフト OT 7 H4450A 1 BEARING, M…

7
13
20
49
18
19
21
28
62
22
23
24
29
33
31
37
38
39
43
44
45
46
40
41
42
32
53
55
48
56
16
17
36
35
34
54
2
57
57.1
59
58
60
26
60
61
51
47
49
50
52
52
63
64
68
67
69
64
65
63
66
70
8
14
15
1
ࣇ࣮ࢲ:
)(('(5
:
AA4EN18
136
PTS-FIFEEDER-13JE

FEEDER W104 2/3
フィーダ W104 2/3
AA4EN18
No. Dr
g
.No. & Code No. QTY Descri
p
tion Ratin
g
Materials Remarks
番号 図番 & コード番号 個数 品名
規
格材質 備考
1 AA9NK01 1 SHAFT シャフト OT
2 AA7GH01 1 SHAFT シャフト OT
7 H4450A 1 BEARING, MINIATURE ベアリン
グ
ミニチュア DDLF-1480ZZ OT
8 AA56B03 1 SHAFT シャフト OT
13 H4450A 1 BEARING, MINIATURE ベアリン
グ
ミニチュア DDLF-1480ZZ OT
14 K5255T 1 SCREW, HEX SOCKET BUTTON 小ネジ 六角穴ボタン M03X006 FE
15 W1042A 1 WASHER, FLAT ワッシャ 平 4W- 3 FE
16 PM13302 1 GEAR ギヤ CO
17 K5255T 3 SCREW, HEX SOCKET BUTTON 小ネジ 六角穴ボタン M03X006 FE
18 W1021A 3 WASHER, LOCK ワッシャ ス
プ
リン
グ
3M
/
MFE
19 PM012W2 1 SHAFT シャフト FE
20 H4450A 1 BEARING, MINIATURE ベアリン
グ
ミニチュア DDLF-1480ZZ OT
21 H4449A 1 BEARING, MINIATURE ベアリン
グ
ミニチュア LF-1360ZZ OT
22 PM13263 1 SPACER スペーサ FE
23 PM04233 1 GEAR ギヤ FE
24 2MDLFC007100 1 BOLT, HEX ボルト 六角 FE
26 AA3NE04 1 SHAFT シャフト OT
28 H4449A 1 BEARING, MINIATURE ベアリン
グ
ミニチュア LF-1360ZZ OT
29 PM12402 1 COLLAR カラー FE
31 K5255T 1 SCREW, HEX SOCKET BUTTON 小ネジ 六角穴ボタン M03X006 FE
32 W1042A 1 WASHER, FLAT ワッシャ 平 4W- 3 FE
33 PM77073 1 SPACER スペーサ FE
34 PM13302 1 GEAR ギヤ CO
35 K5255T 3 SCREW, HEX SOCKET BUTTON 小ネジ 六角穴ボタン M03X006 FE
36 W1021A 3 WASHER, LOCK ワッシャ ス
プ
リン
グ
3M
/
MFE
37 AA01810 1 MOTOR, STEPPING モータ ステッピン
グ
OT
38 K5357M 2 SCREW, HEX SOCKET COUNTERSUNK 小ネジ 六角穴皿 M03X006 FE
39 2MDLFC002700 1 PLATE
プ
レート FE
40 H5276A 2 BOLT, HEX SOCKET ボルト 六角穴 M03X010 FE
41 W1021A 2 WASHER, LOCK ワッシャ ス
プ
リン
グ
3M
/
MFE
42 W1040R 2 WASHER, FLAT ワッシャ 平 3M
/
MX0.5X7(1W-3)(3カクロ) FE
43 2MDLFC002800 1 PLATE
プ
レート FE
44 PM13541 1 GEAR ギヤ FE
45 PM13552 1 PIN ピン FE
46 PZ34211 1 BOLT ボルト OT
47 PM90792 1 PIN ピン FE
48 K5357M 1 SCREW, HEX SOCKET COUNTERSUNK 小ネジ 六角穴皿 M03X006 FE
49 PJ00183 2 SPACER スペーサ PL
50 H45732 1 BELT, TIMING ベルト タイミン
グ
204-2GT-6 OT
51 PM60181 1 PULLEY, TIMING
プ
ーリ タイミン
グ
CO
52 H44516 2 BEARING, MINIATURE ベアリン
グ
ミニチュア DDL-850ZZ OT
53 PB07952 1 PLATE
プ
レート FE
54 H5275A 1 BOLT, HEX SOCKET ボルト 六角穴 M03X008 FE
55 W1021A 1 WASHER, LOCK ワッシャ ス
プ
リン
グ
3M
/
MFE
56 W1042A 1 WASHER, FLAT ワッシャ 平 4W- 3 FE
57 AA3BT02 1 BKT BKT OT
57.1 PM91882 1 SPACER スペーサ AL
58 H5277A 1 BOLT, HEX SOCKET ボルト 六角穴 M03X012 FE
59 W1021A 1 WASHER, LOCK ワッシャ ス
プ
リン
グ
3M
/
MFE
60 H4569A 2 BEARING, MINIATURE ベアリン
グ
ミニチュア DDLF-630ZZ OT
61 AA3ER04 1 GEAR ギヤ OT
137
PTS-FIFEEDER-13JE

FEEDER W104 2/3
フィーダ W104 2/3
AA4EN18
No. Dr
g
.No. & Code No. QTY Descri
p
tion Ratin
g
Materials Remarks
番号 図番 & コード番号 個数 品名
規
格材質 備考
62 PB72144 1 ARM アーム FE
63 PM013M2 2 PIN, PIVOT ピン 支点 FE
64 K5359H 4 SCREW, HEX SOCKET COUNTERSUNK 小ネジ 六角穴皿 M04X010 FE
65 PB72133 1 ARM アーム FE
66 PM023A2 1 BLOCK
ブ
ロック AL
67 PM05XH1 1 BKT BKT FE
68 K5359H 2 SCREW, HEX SOCKET COUNTERSUNK 小ネジ 六角穴皿 M04X010 FE
69 PM05XK2 1 BLOCK
ブ
ロック FE
70 K5357T 2 SCREW, HEX SOCKET COUNTERSUNK 小ネジ 六角穴皿 M03X008 FE
138
PTS-FIFEEDER-13JE