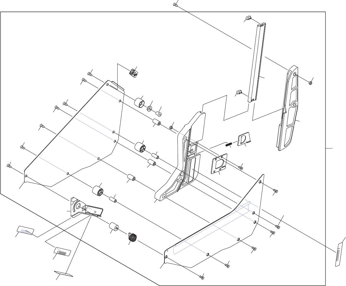
03. NXT Feeder Part list III - 第20页
.7%( .7%( .7%( 18 12 10 7 19 10 11 23 21 3 2 6 5 15 3 8 4 22 16 24 19 9 18 25 10 17 17 17 17 17 17 20 20 20 20 24 26 31 32 32 32 13 14 13.1 1 33 33 33 32 33 ࣮ࣜࣝ࣍ࣝࢲ:E:Iࣥࢳ 5((/+2/&…

FEEDER W04f 2/2
フィーダ W04f 2/2
2ADLFA005203
No. Dr
g
.No. & Code No. QTY Descri
p
tion Ratin
g
Materials Remarks
番号 図番 & コード番号 個数 品名
規
格材質 備考
1 PH01714 1 GUIDE ガイド PL
2 PP02693 1 SLIDE, AUXILIARY スライド 補助 CO
3 H63592 2 BOLT, HEX SOCKET ボルト 六角穴 EH0306 FE
4 2MDLFA065200 1 BOLT, HEX SOCKET ボルト 六角穴 FE
5 W1021A 1 WASHER, LOCK ワッシャ ス
プ
リン
グ
3M
/
MFE
6 W1040R 1 WASHER, FLAT ワッシャ 平 3M
/
MX0.5X7(1W-3)(3カクロ) FE
7 PZ02321 1 SPRING ス
プ
リン
グ
FE
8 PT01871 1 CLAMPER クランパ FE
9 2MDLFA049101 1 WIRE ワイヤ OT
10 PZ27752 1 BOLT ボルト OT
11 2MDLFA105700 1 PLATE, REAR
プ
レート リヤー FE
12 PZ27782 3 BOLT ボルト OT
13 PH01815 1 HANDLE 取手 PL
14 K5358A 3 SCREW, HEX SOCKET COUNTERSUNK 小ネジ 六角穴皿 M03X010 FE
15 N10812 3 NUT, HEX ナット 六角 M03 3シュ(3カクロ) FE
16 2MDLFA063501 1 LEVER レバー FE
17 PT01881 1 CLIPPER, WIRE クリッパ ワイヤ FE
18 K5357T 1 SCREW, HEX SOCKET COUNTERSUNK 小ネジ 六角穴皿 M03X008 FE
19 N4018A 1 SCREW, HEX SOCKET SET ネジ 六角穴止め M03X003 クボミサキ FE
20 PM03663 1 PIN ピン FE
21 K5359E 1 SCREW, HEX SOCKET COUNTERSUNK 小ネジ 六角穴皿 M04X008 FE
22 PP02625 1 LEVER レバー FE
23 PH01670 1 ROLLER ローラ PL
24 PM066B1 1 PIN, ROLLER ピン ローラ FE
25 K5357M 1 SCREW, HEX SOCKET COUNTERSUNK 小ネジ 六角穴皿 M03X006 FE
26 PH01681 1 ROLLER ローラ PL
27 PM066A2 1 PIN, PIVOT ピン 支点 FE
28 K5357M 1 SCREW, HEX SOCKET COUNTERSUNK 小ネジ 六角穴皿 M03X006 FE
29 PM0BAD1 1 RETAINER, SPRING 押え ス
プ
リン
グ
FE
30 PZ45640 1 SPRING ス
プ
リン
グ
FE
31 2AGKFA000201 1 BOARD, PRINTED CIRCUIT 基板
プ
リント OT
32 K5170M 2 SCREW, C
/
R TRUSS 小ネジ 十穴トラス M02X005(ステンレス) FE
33 N10736 2 NUT, HEX ナット 六角 M02 3シュ(3カクロ) FE
34 PS04040 1 SEAL シール OT
35 PJ20960 2 PLATE
プ
レート OT
37 2MDLFA032200 1 PLATE
プ
レート OT
38 PH02062 1 COVER, SWITCH カバー SW PL
39 XK05541 1 BOARD, PRINTED CIRCUIT 基板
プ
リント OT
40 2MDLFA063600 1 SHEET, SW シートSW OT
41 PB03TS3 1 PLATE, SEAL
プ
レート シール FE
42 2MDLFA067100 2 SEAL シール PL W04f
43 2MDLFA067300 1 SEAL, BAR CODE シール バーコード OT W04f, unit serial number
44 PX09210 1 SEAL シール PL
45 2MDLFA010702 1 TAPE, SEAL テー
プ
シール OT
46 2MDLFA035701 1 SHEET, RUBBER シート ゴム OT
47 2MDLFA035901 1 SHEET, RUBBER シート ゴム OT
19
PTS-FIFEEDER-13JE

.7%(
.7%(
.7%(
18
12
10
7
19
10
11
23
21
3
2
6
5
15
3
8
4
22
16
24
19
9
18
25
10
17
17
17
17
17
17
20
20
20
20
24
26
31
32
32
32
13
14
13.1
1
33
33
33
32
33
࣮ࣜࣝ࣍ࣝࢲ:E:Iࣥࢳ
5((/+2/'(5:E:ILQFK
20
PTS-FIFEEDER-13JE

REEL HOLDER W04b,W04f 7inch
リール ホルダ W04b,W04f 7インチ
No. Dr
g
.No. & Code No. QTY Descri
p
tion Ratin
g
Materials Remarks
番号 図番 & コード番号 個数 品名
規
格材質 備考
1 AA7ZM07 1 HOLDER, REEL ホルダ リール OT
2 PM048F1 1 SLIDER スライダ FE
3 PT01740 2 STOPPER ストッパ AL
4 PH01435 1 SLIDER スライダ PL
5 PP02253 1 PLATE, RETAINING
プ
レート 押え FE
6 K5169N 4 SCREW, C
/
R COUNTERSUNK 小ネジ 十穴皿 M02X008(ステンレス) FE
7 N1074A 4 NUT, HEX ナット 六角 M02(ステンレス) FE
8 PP02240 1 JAW 爪 FE
9 PZ27731 1 SPRING ス
プ
リン
グ
FE
10 PM00KH2 3 PIN ピン FE
11 PP02160 1 PLATE, SIDE
プ
レート サイド FE
12 PX08540 1 SEAL シール PL
13 PJ22792 1 ROLLER ローラ PL
13.1 H4445D 1 BEARING, MINIATURE ベアリン
グ
ミニチュア LF-1060ZZ OT
14 PM0D3X1 1 PIN ピン FE
15 K5357M 1 SCREW, HEX SOCKET COUNTERSUNK 小ネジ 六角穴皿 M03X006 FE
16 PB02KZ2 1 PLATE, SIDE
プ
レート サイド FE
17 K5357M 6 SCREW, HEX SOCKET COUNTERSUNK 小ネジ 六角穴皿 M03X006 FE
18 PH01491 2 ROLLER ローラ PL
19 PM97983 2 PIN ピン FE
20 K5357M 4 SCREW, HEX SOCKET COUNTERSUNK 小ネジ 六角穴皿 M03X006 FE
21 PH01413 1 ARM アーム OT
22 PZ34281 1 SPRING, TORSION ス
プ
リン
グ
ネジリ FE
23 PM04LS3 1 PIN, PIVOT ピン 支点 FE
24 K5357M 2 SCREW, HEX SOCKET COUNTERSUNK 小ネジ 六角穴皿 M03X006 FE
25 PH01423 1 BKT, SLIDE BKT スライド PL
26 N10796 2 NUT, HEX ナット 六角 M04(3カクロ) FE
31 PZ31461 2 BOLT ボルト OT
32 PX09171 4 SEAL, BAR CODE シール バーコード OT W04b, unit serial number
33 2MDLFA067300 4 SEAL, BAR CODE シール バーコード OT W04f, unit serial number
21
PTS-FIFEEDER-13JE