第一卷 向导.pdf - 第175页

1OM-1752 4-2 1304-001 项 目 内 容 8. 线路板的缺口 以及孔的限制 3 0 . 5 1 5 9 2 5 5 线路板流动方向 右 → 左 1 5 3 0 . 5 9 2 5 5 1 5 线路板流动方向 左 → 右 1 5 线路板制动器 单位 : mm F1D3 注: 斜线部为不能有缺口范围。 斜线部若有缺口及孔时,请进行线路板定位教示模式,确认线路板是否能 够正常被定位。 9. 线路板位置 补正方法 线路板识别…

100%1 / 211
1OM-1752
4-11306-002
1. 规格
1.1 SIGMA-G5S 贴片机规格
项   目 内     容
1. 型号名称 SIGMA-G5S
2. 概 要 本装置采用装置正面或背面的两面操作方式,线路板的搬送为单程搬送。
3. 生产量 高速安装头 多功能安装头
75,000CPH/ 模数
: 不包括在最适宜条件下的线路板
移载时间。
片状元件 : 18,000CPH/2 个安装头
:
不包括在最适宜条件下的线路板
移载时间。
4. 贴装精度 高速安装头 多功能安装头
0603/0402:30μm(3
σ)
25μm(3
σ)<70,000CPH>
: 最适宜条件时
IC:15μm(3
σ)
: 最适宜条件时
5. 线路板移载时间 2 ( 最适宜条件时,线路板长度须为 280mm 以下 )
6. 线路板流动方向
和搬送基准
线路板流动方向 : 从左到右 / 从右到左 ( 出厂时选择 )
搬送基准 : 后左 / 后右 / 前左 / 前右 ( 出厂时选择 )
7. 适用线路板
小 : 50 × 50 ~ 610 × 510mm( 四角为 R1 R1.5mm)
厚度 : 0.3 ~ 5.0mm
弯曲度 : 满足以下两个条件。
50mm 长的弯曲度在 0.2mm 以下
: 线路板大小为 200mm 时,弯曲度为 0.8mm 以下。
Max.1.0mm
: 线路板大小超过 250mm 时,弯曲度为 1.0mm 以下。
F1D2
质量 : Max.2.5kg( 线路板完成时 )
但是,X 尺寸 280mm 以下为 Max.1.5kg( 线路板完成时 )
质 : 玻璃环氧
陶瓷 ( 选购件 )
: (a) 关于浅色玻璃环氧,请咨询本公司的营业部门或销售代理店。
(b) 根据线路板的材质、形状、弯曲度、质量、表面状态 ( 光泽 ) 等,能
否正常进行线路板搬送或元件贴装,需进行测试确认。
(c) 不使用线路板搬送治具 ( 传导管 ) 时,请订购支撑底座单元。( 选购
件)
T1D1-1
1.规格
弯曲度
1OM-1752
4-21304-001
项   目 内     容
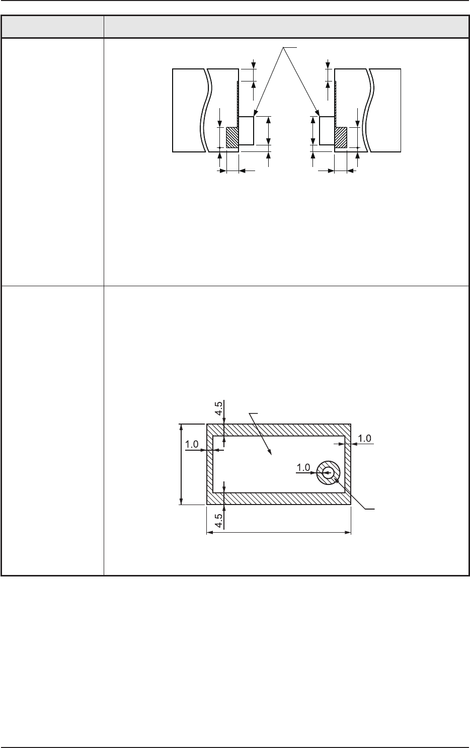
8. 线路板的缺口
以及孔的限制
30.5
15
9
25
5
线路板流动方向
15
30.5
9
255
15
线路板流动方向
15
线路板制动器
单位 : mm
F1D3
注: 斜线部为不能有缺口范围。
斜线部若有缺口及孔时,请进行线路板定位教示模式,确认线路板是否能
够正常被定位。
9.
线路板位置
补正方法
线路板识别
通过用线路板识别照相机识别线路板识别标记,补正线路板全体的位置偏离
量和线路板印刷图形的伸长量。
线路板全体补正在线路板上 ( 分区 1 5) 设定 2 处或 3 处线路板识别标记 (
倒角线路板时,每个线路板设定 2 )
元件贴装点补正在线路板上设定 1 2 处线路板识别标记。
此时,建议设定点对称的线路板识别标记 2 处的重心位置成为元件贴装点中
心。
(装置前侧)
可设定线路板识别标记的范围
50.0 ~ 610.0
50.0 ~ 510.0
孔等
单位 : mm
F1D4
T1D1-2
1.1SIGMA-G5S 贴片机规格
1OM-1752
4-31304-001
项   目 内     容
线路板全体补正用示例
为了提高识别精度,在 2 点识别时,请将线路板识别标记配置到对角位置。
另外, 3 点识别时,请将 2 点配置在对角位置,余下的 1 点配置在边角附近。
线路板识别标记 线路板识别标记
线路板 线路板
F1D5
元件贴装点补正用示例 1(1 点识别 )
请在元件贴装点中心或周围附近的任意 1 点上配置线路板识别标记。
建议位置 : 元件贴装点中心
线路板识别标记
F1D6
元件贴装点补正用示例 2(2 点识别 )
请在元件贴装点中心附近的任意 2 点配置线路板识别标记。
建议位置 : 点对称
建议选择对于元件贴装点中心成为点对称的 2 点。
(A-A’/B-B’)
根据本线路板识别标记 (2 ) 补正元件贴装位置和角度。
并且,2 点识别在局部的印刷图形的偏离和歪斜中有效。
线路板识别标记
F1D7
T1D1-3
1.1SIGMA-G5S 贴片机规格