KE-2070_KE-2080_KE-2080R-Rev18 - 第117页
- 110 - NOTE( 注記 ) *BEFORE M/C REV.H (2070), REV.B(2070C), REV.J(2 080), REV .D(2080R) マシン REV .H(2070) ,REV.B(2070 C) , REV.J(2080) ,REV.D(2080 R)以前 REF.NO NOTE PART NO D E S C R I P T I O N 品 名 Qty 1 400-29034 N-TESTER…

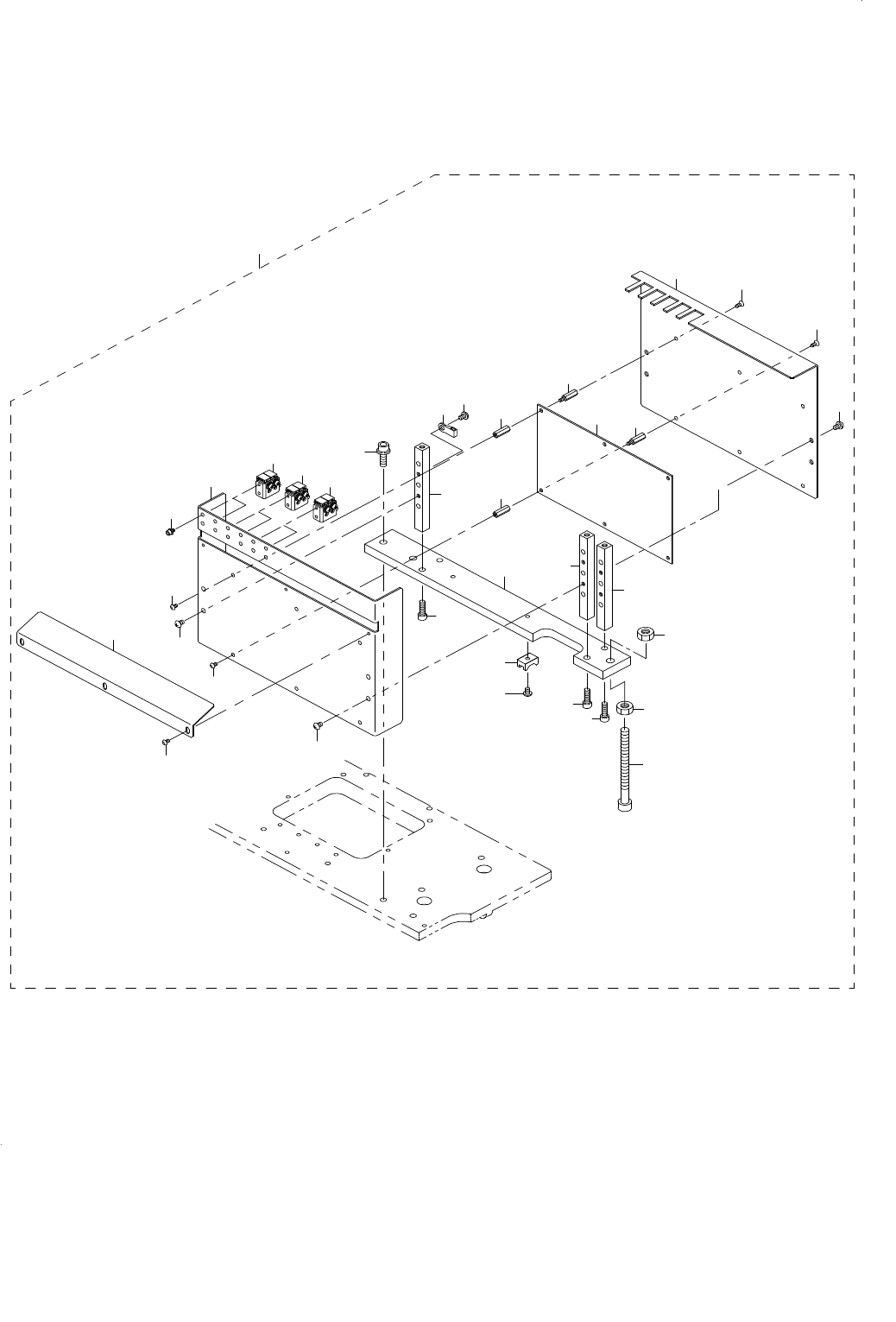
- 109 -
55. CVS COMPONENTS (OLD TYPE)
CVS 関係(旧タイプ)
4
4
11
5
30
17
19
18
20
20
21
22
25
26
27
28
34
33
36
39
40
38
42
43
44
12
13
16
15
14
44
32
31
45
45
45
46
41
44
19
29
8
7
6
37
37
23
5
1
2
24
35
53
3
10
9
8
7
6
9
48
50
49
47
57
58
52
56
51
55
54

- 110 -
NOTE( 注記 ) *BEFORE M/C REV.H(2070), REV.B(2070C), REV.J(2080), REV.D(2080R)
マシン REV.H(2070),REV.B(2070 C),
REV.J(2080),REV.D(2080 R)以前
REF.NO NOTE PART NO D E S C R I P T I O N
品 名
Qty
1 400-29034 N-TESTER UNIT
テスターユニット
1
2 400-01788 SURFACE VERIFICATION UNIT
ベリフィケーション外観組
(1)
3 400-01712 CVS GUARD
CVSガード
(1)
4 E7601-705-000 CONTACT V
コンタクトV
(2)
5 SL-6030892-TN SCREW M3 L=8
座金付き六角穴ボルト M3 L=8
(2)
6 SM-6021202-TN SCREW
六角穴ボルト M2 L=12
(2)
7 WS-0210002-KN SPRING WASHER M2
ばね座金 M2
(2)
8 WP-0220301-SC WASHER M2
平座金みがき丸 M2
(2)
9 400-57185 SPACER
スペーサ
(2)
10 HX-0005500-0D RUBBER BUSH D
ゴム ブッシュ D
(1)
11 E7602-705-000 CONTACT BASE R
コンタクトベース R
(1)
12 SL-4860681-SC SCREW M2.6 X 6
なべ小ねじセムス M2.6 L=6
(2)
13 WP-0280500-SC WASHER
平座金小形丸 M2.5
(2)
14 E7603-705-000 CONTACT BASE L
コンタクトベース L
(1)
15 SL-4860681-SC SCREW M2.6 X 6
なべ小ねじセムス M2.6 L=6
(2)
16 WP-0280500-SC WASHER
平座金小形丸 M2.5
(2)
17 E7604-705-000 VERFYCATION LINK L
ベリフィケーションリンク L
(1)
18 E7605-705-000 VWRFYCATION LINK R
ベリフィケーションリンク R
(1)
19 E3210-700-000 LINK WASHER S
リンクワッシャS
(2)
20 E7606-705-000 V LINK SCREW S
Vリンクスクリュー S
(2)
21 E7607-705-000 V LINK SCREW L
Vリンクスクリュー L
(1)
22 E7608-705-000 V LINK SPACER
Vリンクスペーサ
(1)
23 E7609-705-000 V CYLINDER BASE
Vシリンダベース
(1)
24 SL-6030692-TN SCREW M3 L=6
座金付き六角穴ボルト M3 L=6
(2)
25 PA-0601013-A0 AIR CYLINDER
エアシリンダ
(1)
26 SM-6031202-TN B0LT
六角穴ボルト M3 L=12
(2)
27 PC-0105190-00 SPEED CONTROLLER
スピード コントローラ
(1)
28 PC-0105080-00 SPEED CONTROLLER
スピードコントローラ
(1)
29 E7610-705-000 V CYLINDER ANGLE
Vシリンダアングル
(1)
30 SL-4860681-SC SCREW M2.6 X 6
なべ小ねじセムス M2.6 L=6
(1)
31 WS-0270002-KN SPRING WASHER M2.6
ばね座金 M2.6
(1)
32 WP-0280501-SC WASHER M2.6
平座金みがき丸 M2.6
(4)
33 E7611-705-000 V CYLINDER BUSH
Vシリンダブッシュ
(1)
34 E7612-705-000 VERFYCATION BASE
ベリフィケーションベース
(1)
35 SL-6030692-TN SCREW M3 L=6
座金付き六角穴ボルト M3 L=6
(2)
36 PJ-0460390-01 ELBOW
バーブエルボ
(1)
37 E2610-760-000 BARB COUPLING
バーブ結合
(2)
38 BT-0400251-EA URETHANE TUBE BLUE 4X2.5
ポリウレタン チューブ 青 4X2.5
(0.5)
39 BT-0400251-EA URETHANE TUBE BLUE 4X2.5
ポリウレタン チューブ 青 4X2.5
(0.12)
40 BT-0400251-EA URETHANE TUBE BLUE 4X2.5
ポリウレタン チューブ 青 4X2.5
(0.06)
41 E7613-705-000 VERFY COVER
ベリファイカバー
(1)
42 SM-1030601-SN SCREW M3X0.5 L=6
皿小ねじ M3X0.5 L=6
(4)
43 E7614-705-000 COVER STUD A
カバースタッド A
(4)
44 E7618-705-000 BOLL SLIDE
ボールスライド
(3)
45 SM-1860451-SC SCREW M2.6 L=4
皿小ねじ M2.6 L=4
(6)
46 E9589-705-0A0 VRFY SV CABLE ASM.
VRFY SVケ−ブル組
(1)
47 SL-6061292-TN SCREW
座金付き六角穴ボルト
(2)
48 119-12706 SPACER
上差動目盛板スペーサ
(4)
49 PJ-3040400-04 ELBOW
レジューサエルボ
(1)
50 PJ-3050600-04 TEE
チーズ
(1)
51 400-28139 INTERNAL VERIFICATION UNIT
ベリフィケーション内部組
(1)
52 E1038-871-000 PLATEN LOCK CAM SCREW
プラテン ロックカム スクリュウ
(2)
53 SL-4030691-SC SCREW M3 L=6
座金付きなべ小ねじ M3 L=6
(2)
54 HX-0022300-00 ADJUSTABLE BUSH
自在ブッシュ
(0.1)
55 400-29036 N-VERIFY DMM ASM
デジタルマルチメータ組
(1)
56 400-28994 TESTER COVER
テスターカバー
(1)
57 SL-4031481-SC SCREW M3 X 14
なべ小ねじセムス M3X0.5 L=14
(4)
58 HX-0036700-00 BUSH
プッシュ
(0.1)

- 111 -
56. CVS COMPONENTS (NEW TYPE)
CVS 関係(新タイプ)
12
12
12
26
2
3
3
4
4
5
6
7
7
8
9
9
10
10
11
11
13
14
15
16
18
19
19
20
21
22
23
24
25
1
17
23