KE-2070_KE-2080_KE-2080R-Rev18 - 第77页
- 70 - NOTE( 注記 ) #01....FOR 2070L,2080 L,2080RL, 2070 L,2080 L,2080 RL, 2070CL 2070 CL 用 #02....FOR 2 070E,2080E,2080RE 2070 E,2080 E,2080 RE 用 *INSTALLATION PSITI ON AND DIRECTION VARY IF THE PWB TRANSFER REFERENCE IS …

- 69 -
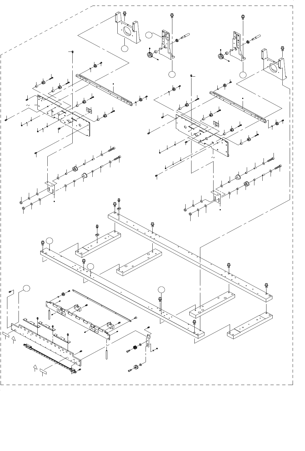
35. PWB CONVEYOR COMPONENTS (2)
基板搬送関係(2)
3 5
17
18
57
6
7
11
13
12
14
15
16
11
13
12
28
30
29
16
15
14
62
55
20
22
34
35
26
25
27
23
24
11
13
12
33
31
56
1
59
28
30
29
28
30
29
28
30
29
33
31
41
40
43
40
38
38
42
41
44
45
40
36
40
38
49
50
51
49
50
51
39
52
52
53
54
49
38
42
40
40
49
49
47
48
47
61
46
47
37
48
47
49
43
58
58
A
C
11
13
12
D
B
C
D
A
26
25
27
60
9
9
8
10
39
B
32
32
64
64
63
63
8
10
19
2

- 70 -
NOTE( 注記 ) #01....FOR 2070L,2080L,2080RL, 2070 L,2080 L,2080 RL,
2070CL 2070 CL 用
#02....FOR 2070E,2080E,2080RE 2070 E,2080 E,2080 RE 用
*INSTALLATION PSITION AND DIRECTION VARY IF THE PWB TRANSFER
REFERENCE IS DIFFERENT.
基板搬送基準が異なると取付位置、方向が変わります。
REF.NO NOTE PART NO D E S C R I P T I O N
品 名
Qty
1 SL-6041492-TN SCREW
座金付き六角穴ボルト
2
2 SM-4040855-SC SCREW
なべ小ねじ M4 L=8
2
3 400-00827 RAIL PLATE FL
レールプレートFL
1
4
#01
400-01048 RAIL PLATE FL(L)
レールプレートFL(L)
1
5
#02
400-01838 RAIL PLATE FL(E)
レールプレートFL(E)
1
6 E2012-721-000 ADJUST PLATE
アジャストプレート
1
7 SL-6030692-TN SCREW M3 L=6
座金付き六角穴ボルト M3 L=6
2
8 E2111-715-0A0 CONVEYOR PULLEY ASM.
搬送プーリ(組)
2
9 WP-0430800-SC WASHER M4
平座金小形丸 M4
2
10 SM-4040855-SC SCREW
なべ小ねじ M4 L=8
2
11 E2089-721-0A0 CONVEYOR PULLEY B ASM.
搬送プーリB組
4
12 E2055-721-000 PULLEY SPACER
プーリスペーサ
4
13 SM-4042501-SC SCREW M4X0.7 L=25
なべ小ねじ M4X0.7 L=25
4
14 WP-0430801-SC WASHER 4.3X9X0.8
平座金 4.3X9X0.8
4
15 WS-0410002-KN SPRING WASHER
ばね座金 M4
4
16 NM-6040001-SC NUT M4X0.7 TYPE1
六角ナット M4X0.7 1種
4
17 400-00828 CONVEYOR RAIL
コンベアレール
1
18
#02
400-01839 CONVEYOR RAIL(E)
コンベアレール(E)
1
19 E2111-715-0A0 CONVEYOR PULLEY ASM.
搬送プ−リ(組)
2
20 400-00830 RAIL PLATE FR
レールプレートFR
1
21
#01
400-01051 RAIL PLATE FR(L)
レールプレートFR(L)
1
22
#02
400-01841 RAIL PLATE FR(E)
レールプレートFR(E)
1
23 E2012-721-000 ADJUST PLATE
アジャストプレート
1
24 SL-6030692-TN SCREW M3 L=6
座金付き六角穴ボルト M3 L=6
2
25 E2111-715-0A0 CONVEYOR PULLEY ASM.
搬送プーリ(組)
2
26 WP-0430800-SC WASHER M4
平座金小形丸 M4
2
27 SM-4040855-SC SCREW
なべ小ねじ M4 L=8
2
28 E2089-721-0A0 CONVEYOR PULLEY B ASM.
搬送プーリB組
6
29 E2055-721-000 PULLEY SPACER
プーリスペーサ
6
30 SM-4042501-SC SCREW M4X0.7 L=25
なべ小ねじ M4X0.7 L=25
6
31 WP-0430801-SC WASHER 4.3X9X0.8
平座金 4.3X9X0.8
6
32 WS-0410002-KN SPRING WASHER
ばね座金 M4
6
33 NM-6040001-SC NUT M4X0.7 TYPE1
六角ナット M4X0.7 1種
6
34 400-00828 CONVEYOR RAIL
コンベアレール
1
35
#02
400-01839 CONVEYOR RAIL(E)
コンベアレール(E)
1
36 E2157-721-000 PULLEY B
プーリ B
1
37 E2016-715-000 IDLER PULLEY
アイドラプーリ
1
38 E2017-715-000 M LINER BUSH
M ライナブッシュ
4
39 E2018-715-000 PULLEY SLEEVE
プーリ スリーブ
2
40 WP-0531001-SC WASHER
平座金みがき丸 M5
6
41 WS-0510002-KN SPRING WASHER
ばね座金 5.1X9.2X1.3
2
42 NM-6050001-SC NUT M5X0.8 TYPE1
六角ナット M5X0.8 1種
2
43 SM-6052502-TN HEXAGONAL-HOLE BOLT
六角穴ボルト
2
44 400-00976 PULLEY BRAKET
プーリブラケット
1
45
#02
E4086-725-000 PULLEY BRACKET(E)
プーリブラケット(E)
1
46 E2016-715-000 IDLER PULLEY
アイドラプーリ
1
47 E2017-715-000 M LINER BUSH
M ライナブッシュ
4
48 E2018-715-000 PULLEY SLEEVE
プーリ スリーブ
2
49 WP-0531001-SC WASHER
平座金みがき丸 M5
6
50 WS-0510002-KN SPRING WASHER
ばね座金 5.1X9.2X1.3
2
51 NM-6050001-SC NUT M5X0.8 TYPE1
六角ナット M5X0.8 1種
2
52 SM-6052502-TN HEXAGONAL-HOLE BOLT
六角穴ボルト
2
53 400-00976 PULLEY BRAKET
プーリブラケット
1
54
#02
E4086-725-000 PULLEY BRACKET(E)
プーリブラケット(E)
1
55 SL-6041492-TN SCREW
座金付き六角穴ボルト
2
56 SL-6051092-TN BOLT
座金付き六角穴ボルト
4
57 SL-6031492-TN SCREW M3 L=14
座金付き六角穴ボルト M3 L=14
4
58 SL-6041092-TN SCREW
座金付き六角穴ボルト
4
59 SL-6031492-TN SCREW M3 L=14
座金付き六角穴ボルト M3 L=14
4
60 WP-0430800-SC WASHER M4
平座金小形丸 M4
2
61 E2157-721-000 PULLEY B
プーリ B
1
62 SL-6051092-TN BOLT
座金付き六角穴ボルト
4
63 CM-3002000-03 ATTENTION LABEL
指けが注意シール(31.5)
2
64 401-05880 CRUSH HAZARD LABEL (50)
挟込注意シール (50)
2

- 71 -
36. PWB CONVEYOR COMPONENTS (3)
基板搬送関係(3)
26 27
10
6
7
8
9
10
6
7
12
11
15
13
14
30
31
16
17
20
21
18
19
20
21
23
22
24
44
45
46
18
19
20
21
16
17
20
21
51
53
54
55
56
34
33
35
35
38
36
37
39
40
41
42
43
38
37
36
36
37
38
38
37
36
41
40
39
41
40
39
41
40
39
47
48
46
57
58
1
3
63
4
5
60
61
62
A
A
B
B
63
4
5
5
4
63
28
29
25
32
49
50
59
34
33