3OM-1301-002.pdf - 第152页

3 - 73 (5) (5) (5) (5) (5) 贴装数据的编写 贴装数据的编写 贴装数据的编写 贴装数据的编写 贴装数据的编写 • 机种 机种 机种 机种 机种 A A A A A 需要重复三遍相同图形的程序。 请用与 “ 3.2 重复图形 ( 有分割线路板识别 ) ” 相同方法进行编写。 (a) 以下为有必要编写的贴装数据。 • • • • • 贴装数据 (P)U 1 • • • • • 贴装数据 (O)U 1 (b) 各图形原…

100%1 / 331
3-72
3.3 3.3
3.3 3.3
3.3
异机种混载重复图形异机种混载重复图形
异机种混载重复图形异机种混载重复图形
异机种混载重复图形
0506-001
基本数据一览基本数据一览
基本数据一览基本数据一览
基本数据一览
Table 3C20Table 3C20
Table 3C20Table 3C20
Table 3C20
线路板程序线路板程序
线路板程序线路板程序
线路板程序
基本数据基本数据
基本数据基本数据
基本数据
操作数据 线路板数据
线路板识别数据
线路板识别标记数据
机种生产参数 Note(a)
吸嘴配置数据 安装头1 2
元件配置数据 送料器安装台1 2
贴装数据 U 1 贴装数据 (P) 贴装数据 (P)
单元控制 Note(b)
分割线路板识别
贴装数据 (O)
贴装数据 Un 贴装数据 (P) 贴装数据 (P)
单元控制 Note(b)
分割线路板识别
贴装数据 (O)
(a) 自动调整传送带宽度时,编写此数据。
(b) 请根据情况使用。
(2)(2)
(2)(2)
(2)
操作数据的编写操作数据的编写
操作数据的编写操作数据的编写
操作数据的编写
请用与 3.2 重复图形( 有分割线路板识别) 相同方法进行编写。
但是,机种 A B C 作为通用数据。
(3)(3)
(3)(3)
(3)
吸嘴配置数据吸嘴配置数据
吸嘴配置数据吸嘴配置数据
吸嘴配置数据
请用与 3.1 单个图形( 有线路板全体识别) 相同方法进行编写。
(4)(4)
(4)(4)
(4)
元件配置数据的编写元件配置数据的编写
元件配置数据的编写元件配置数据的编写
元件配置数据的编写
请用与 3.1 单个图形( 有线路板全体识别) 相同方法进行编写。
但是,机种 A B C 作为通用数据。
Note
3-73
(5)(5)
(5)(5)
(5)
贴装数据的编写贴装数据的编写
贴装数据的编写贴装数据的编写
贴装数据的编写
机种机种
机种机种
机种
AA
AA
A
需要重复三遍相同图形的程序。
请用与 3.2 重复图形( 有分割线路板识别) 相同方法进行编写。
(a) 以下为有必要编写的贴装数据。
贴装数据(P)U1
贴装数据(O)U1
(b) 各图形原点是贴装坐标基准的设定值。
机种机种
机种机种
机种
BB
BB
B
需要重复四遍相同图形的程序。
请用与 3.2 重复图形( 有分割线路板识别) 相同方法进行编写。
(a) 以下为有必要编写的贴装数据。
贴装数据(P)U2
贴装数据(O)U2
(b) 各图形原点是贴装坐标基准的设定值。
机种机种
机种机种
机种
CC
CC
C
虽是单个图形,但作为单个重复图形,请用与 3.2 重复图形
( 有分割线路板识别) 相同方法进行编写。
以下为有必要编写的贴装数据。
贴装数据(P)U3
贴装数据(O)U3
贴装数据贴装数据
贴装数据贴装数据
贴装数据
(O) U3(O) U3
(O) U3(O) U3
(O) U3
Table 3C21Table 3C21
Table 3C21Table 3C21
Table 3C21
O-No. XO-No. X
O-No. XO-No. X
O-No. X
[mm][mm]
[mm][mm]
[mm]
Y[mm]Y[mm]
Y[mm]Y[mm]
Y[mm]
Z[Z[
Z[Z[
Z[
°°
°°
°
]]
]]
]
H[mm]H[mm]
H[mm]H[mm]
H[mm]
CC
CC
C
注释注释
注释注释
注释
11
11
1
OXOX
OXOX
OX
33
33
3
OYOY
OYOY
OY
33
33
3
+000.00+000.00
+000.00+000.00
+000.00
+0.000+0.000
+0.000+0.000
+0.000
--
--
-
22
22
2
+000.000+000.000
+000.000+000.000
+000.000
+000.000+000.000
+000.000+000.000
+000.000
+000.00+000.00
+000.00+000.00
+000.00
+0.000+0.000
+0.000+0.000
+0.000
EE
EE
E
3.3 3.3
3.3 3.3
3.3
异机种混载重复图形异机种混载重复图形
异机种混载重复图形异机种混载重复图形
异机种混载重复图形
0509-002
Note
Note
Note
3-74
3.4 3.4
3.4 3.4
3.4
极坐标变换功能极坐标变换功能
极坐标变换功能极坐标变换功能
极坐标变换功能
0509-002
3.4 3.4
3.4 3.4
3.4
极坐标变换功能极坐标变换功能
极坐标变换功能极坐标变换功能
极坐标变换功能
任意角度配置分割线路板时,通过在 O 数据的 Z(角度) 中输入各
图形的配置角度对应的功能。
贴装数据(O)以外的数据请用与 3.2 重复图形( 有分割线路板识
) 相同方法进行编写。
( 1 )( 1 )
( 1 )( 1 )
( 1 )
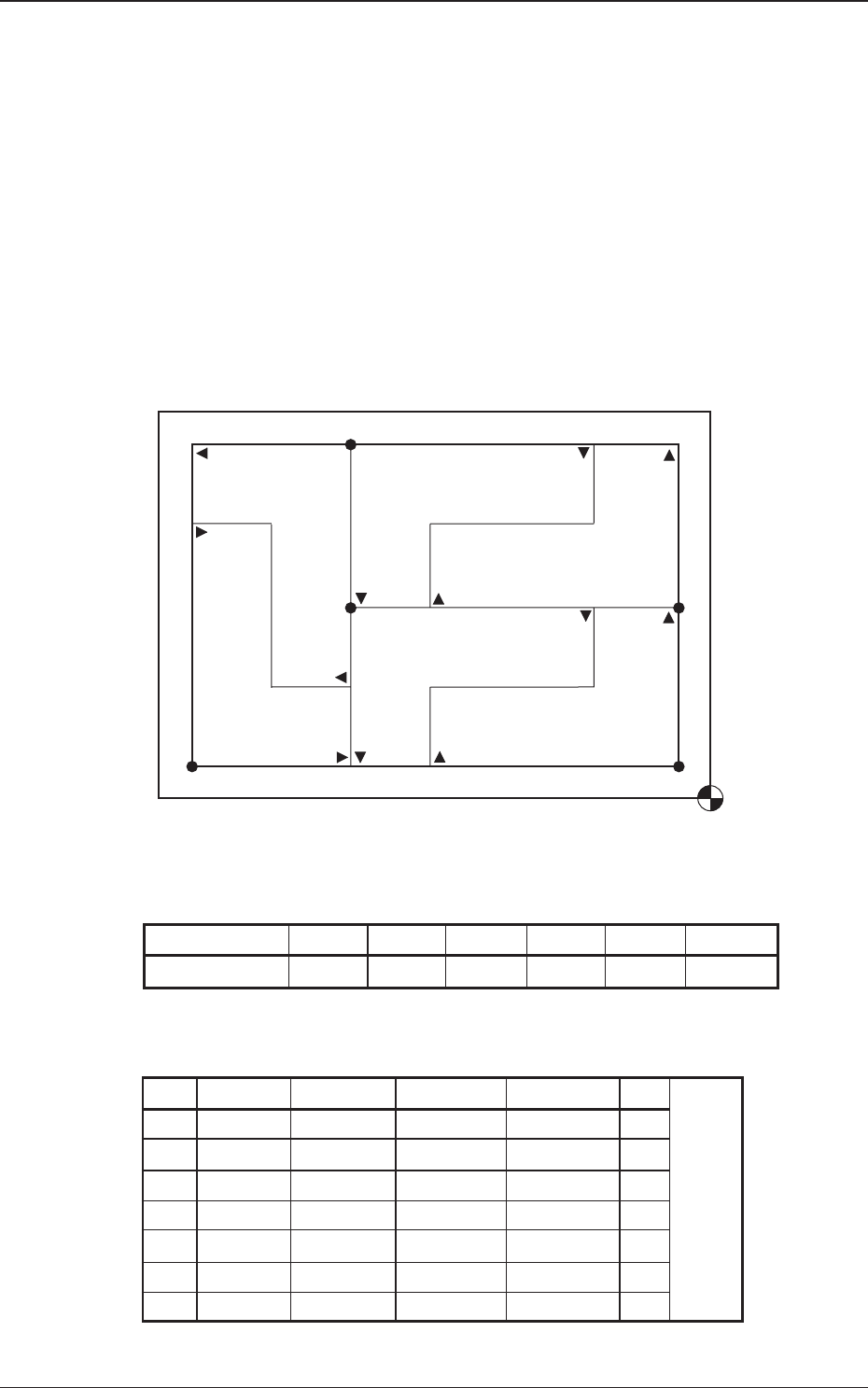
线路板程序的编制信息线路板程序的编制信息
线路板程序的编制信息线路板程序的编制信息
线路板程序的编制信息
图形示例图形示例
图形示例图形示例
图形示例
Fig.3C52Fig.3C52
Fig.3C52Fig.3C52
Fig.3C52
各图形原点的坐标各图形原点的坐标
各图形原点的坐标各图形原点的坐标
各图形原点的坐标
Table 3C22Table 3C22
Table 3C22Table 3C22
Table 3C22
图形原点图形原点
图形原点图形原点
图形原点
OO
OO
O
11
11
1
OO
OO
O
22
22
2
OO
OO
O
33
33
3
OO
OO
O
44
44
4
OO
OO
O
55
55
5
OO
OO
O
66
66
6
坐标坐标
坐标坐标
坐标
(X(X
(X(X
(X
11
11
1
,Y,Y
,Y,Y
,Y
11
11
1
))
))
)
(X(X
(X(X
(X
22
22
2
,Y,Y
,Y,Y
,Y
22
22
2
))
))
)
(X(X
(X(X
(X
11
11
1
,Y,Y
,Y,Y
,Y
22
22
2
))
))
)
(X(X
(X(X
(X
22
22
2
,Y,Y
,Y,Y
,Y
33
33
3
))
))
)
(X(X
(X(X
(X
22
22
2
,Y,Y
,Y,Y
,Y
33
33
3
))
))
)
(X(X
(X(X
(X
33
33
3
,Y,Y
,Y,Y
,Y
11
11
1
))
))
)
(2)(2)
(2)(2)
(2)
贴装数据贴装数据
贴装数据贴装数据
贴装数据
(O)(O)
(O)(O)
(O)
的编写的编写
的编写的编写
的编写
O-No.O-No.
O-No.O-No.
O-No.
X[mm]X[mm]
X[mm]X[mm]
X[mm]
Y[mm]Y[mm]
Y[mm]Y[mm]
Y[mm]
Z[Z[
Z[Z[
Z[
°°
°°
°
]]
]]
]
H[mm]H[mm]
H[mm]H[mm]
H[mm]
CC
CC
C
注释注释
注释注释
注释
11
11
1
XX
XX
X
11
11
1
YY
YY
Y
11
11
1
+000.00+000.00
+000.00+000.00
+000.00
+0.000+0.000
+0.000+0.000
+0.000
--
--
-
22
22
2
XX
XX
X
22
22
2
YY
YY
Y
22
22
2
+1 80.00+ 180.00
+1 80.00+ 180.00
+1 80.00
+0.000+0.000
+0.000+0.000
+0.000
--
--
-
33
33
3
XX
XX
X
11
11
1
YY
YY
Y
22
22
2
+000.00+000.00
+000.00+000.00
+000.00
+0.000+0.000
+0.000+0.000
+0.000
--
--
-
44
44
4
XX
XX
X
22
22
2
YY
YY
Y
33
33
3
+1 80.00+ 180.00
+1 80.00+ 180.00
+1 80.00
+0.000+0.000
+0.000+0.000
+0.000
--
--
-
55
55
5
XX
XX
X
22
22
2
YY
YY
Y
33
33
3
+090.00+090.00
+090.00+090.00
+090.00
+0.000+0.000
+0.000+0.000
+0.000
--
--
-
66
66
6
XX
XX
X
33
33
3
YY
YY
Y
11
11
1
+270.00+270.00
+270.00+270.00
+270.00
+0.000+0.000
+0.000+0.000
+0.000
--
--
-
77
77
7
+000.000+000.000
+000.000+000.000
+000.000
+000.000+000.000
+000.000+000.000
+000.000
+000.00+000.00
+000.00+000.00
+000.00
+0.000+0.000
+0.000+0.000
+0.000
EE
EE
E
Table 3C23Table 3C23
Table 3C23Table 3C23
Table 3C23
贴装坐标基准贴装坐标基准
贴装坐标基准贴装坐标基准
贴装坐标基准
图形图形
图形图形
图形
55
55
5
(90(90
(90(90
(90
°°
°°
°
))
))
)
图形图形
图形图形
图形
4(1 804(1 80
4(1 804(1 80
4(1 80
°°
°°
°
))
))
)
图形图形
图形图形
图形
66
66
6
(270(270
(270(270
(270
°°
°°
°
))
))
)
图形图形
图形图形
图形
1 (01 (0
1 (01 (0
1 (0
°°
°°
°
))
))
)
图形图形
图形图形
图形
2(1 802(1 80
2(1 802(1 80
2(1 80
°°
°°
°
))
))
)
图形图形
图形图形
图形
3(03(0
3(03(0
3(0
°°
°°
°
))
))
)
为线路板识别标记。为线路板识别标记。
为线路板识别标记。为线路板识别标记。
为线路板识别标记。
图形图形
图形图形
图形
11
11
1
00
00
0
°°
°°
°
XX
XX
X
11
11
1
YY
YY
Y
11
11
1
XX
XX
X
22
22
2
XX
XX
X
33
33
3
00
00
0
66
66
6
YY
YY
Y
33
33
3
YY
YY
Y
22
22
2
OO
OO
O
11
11
1
OO
OO
O
33
33
3
OO
OO
O
55
55
5
OO
OO
O
44
44
4
OO
OO
O
22
22
2