JX-350-Rev02PDFAPDFA - 第51页
- - REF.NO NOTE PART NO D E S C R I P T I O N Qty 1 4 01-36092 CONVEYOR RAIL R ASM 1 2 4 01-36093 CONVEYOR RAIL RC ASM (1) 3 4 01-35872 RAIL_PLATE_C_L ED (1) 4 S M-1040852-T P DIS H SCREW ( 6) 5 4 01-35870 CONVEYOR_RAI…

- -
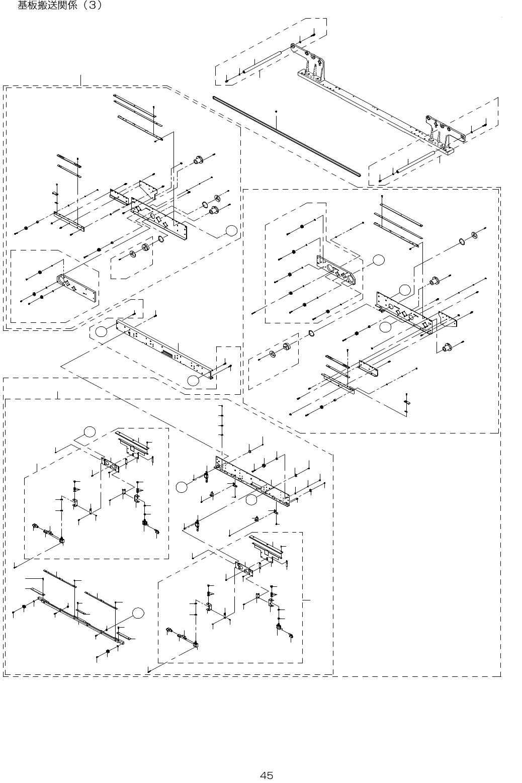
23. PWB CONVEYOR COMPONENTS (3)
1 7
1 6
3
4
5
6
6
7
7
8
9
8
9
1 1
1 0
1 2
1 4
1 8
1 7
1 8
1 6
2 0
1 9
2 1
2 2
2 3
2 4
2 6
3 2
3 1
2 8
2 9
3 3
3 4
3 5
3 5
3 8
4 2
4 1
4 3
4 2
4 1
4 4
3 0
3 4
3 7
3 6
4 4
3 9
3 9
3 6
3 9
3 8
4 0
4 3
4 5
4 6
4 7
4 8
4 9
5 0
5 1
5 2
4 8
4 7
4 6
4 5
4 3
4 0
3 8
3 9
3 6
3 9
3 9
4 4
3 6
3 7
3 4
3 0
4 4
4 1
4 2
4 3
4 1
4 2
3 8
3 5
3 5
3 4
3 3
2 9
2 8
3 1
3 2
2 6
2 5
A
A
B
B
5 4
5 3
5 5
5 3
5 5
5 4
5 6
5 7
5 6
5 7
5 6
5 7
2
1
6 1
6 0
2 5
6 5
6 6
6 6
6 3
6 4
6 2
6 2
6 3
6 6
6 5
6 6
6 4
1 3
2 7
2 7
6 7 6 8
1 5
5 8
5 9
7 0
6 9
6 9
D
E
D
E
C
C

- -
REF.NO NOTE PART NO D E S C R I P T I O N Qty
1 401-36092 CONVEYOR RAIL R ASM 1
2 401-36093 CONVEYOR RAIL RC ASM (1)
3 401-35872 RAIL_PLATE_C_LED (1)
4 SM-1040852-TP DISH SCREW (6)
5 401-35870 CONVEYOR_RAIL_LED (1)
6 401-35489 LNC60_SPACER (2)
7 SL-6031492-TN SCREW M3 L=14 (6)
8 401-35871 PWB_GUIDE_LED (2)
9 SM-3030552-TN SCREW M3 L=5 (6)
10 401-35887 PWB_GUIDE_C_LED (1)
11 SL-6030892-TN SCREW M3 L=8 (2)
12 401-35888 PWB_GUIDE_SA_LED (1)
13 SL-6031092-TN SCREW (2)
14 401-35889 PWB_GUIDE_SB_LED (1)
15 SL-6031092-TN SCREW (2)
16 E2111-715-0A0 CONVEYOR PULLEY ASM. (4)
17 WP-0430800-SC WASHER M4 (4)
18 SM-4040855-SC SCREW (4)
19 E2089-721-0A0 CONVEYOR PULLEY B ASM. (1)
20 E2055-721-000 PULLEY SPACER (1)
21 SM-4042501-SC SCREW M4X0.7 L=25 (1)
22 WP-0430801-SC WASHER M4 (1)
23 WS-0410002-KN SPRING WASHER M4 (1)
24 NM-6040001-SC NUT M4X0.7 TYPE1 (1)
25 400-46973 LINEAR_WAY-S (4)
26 SM-6030502-TN SCREW M3 L=5 (12)
27 401-36089 PWB_CLAMP_GUIDE_ASM (2)
28 401-21746 PWB_GUIDE_PLATE_S-A_PM (1)
29 SM-6030402-TN SCREW M3X4 (3)
30 401-35876 PWB_CLAMP_GUIDE_BR (1)
31 E3805-721-000 OCC SHIM B (2)
32 401-35875 PWB_CLAMP_BR (1)
33 SL-6030692-TN SCREW M3 L=6 (4)
34 401-35878 CLAMP_MOVE_BR_B (2)
35 SL-6030692-TN SCREW M3 L=6 (4)
36 401-35877 CLAMP_MOVE_BR_A (2)
37 SM-6030402-TN SCREW M3X4 (4)
38 400-76113 CYLINDER (2)
39 401-35882 SPEED_CONTROLLER (4)
40 PJ-3080400-04 BRANCH UNION Y (1)
41 E3528-729-000 ATC JOINT (2)
42 GLA-02335000 CLAMP WASHER (6)
43 400-01286 ATC SPACER RUBBER (2)
44 B2107-816-000 WASHER (2)
45 401-35890 PWB_CLAMP_SENS_DOG (1)
46 SL-4030891-SC SCREW M3X8 (2)
47 SM-6030402-TN SCREW M3X4 (12)
48 SM-6031602-TN SCREW M3 L=16 (8)
49 WP-0330816-SF WASHER 3.25X10X0.8 (4)
50 401-03290 SPROCKET_FLUNGE_WASHER (4)
51 SM-6030402-TN SCREW M3X4 (4)
52 401-03301 SPROCKET_SP_R (4)
53 401-35891 PWB_CLAMP_SENS_BR (2)
54 SL-4030891-SC SCREW M3 L=8 (4)
55 SL-4030681-SC SCREW M3 L=6 (4)
56 HX-0029400-00 FIXED BASE (3)
57 SL-4030681-SC SCREW M3 L=6 (3)
58 401-36111 CLAMP SENS LR ASM (1)
59 401-36113 CLAMP SENS RR ASM (1)
60 SL-6041092-TN SCREW (10)
61 401-35874 SIDE_BEAM_LED (1)
62 400-01002 GUIDE SHAFT ASM(L) 4
63 SL-6051292-TN BOLT (1)
64 SL-6052042-TN SCREW (1)
65 E2209-725-000 GUIDE SHAFT (1)
66 WP-0501046-SC WASHER 5 X 14 X 1 (2)
67 401-07791 CONVEYOR_BELT_C 2
68 400-75460 CONVEYOR BELT S(E)250 1
69 SL-6041492-TN SCREW 7
70 SL-6041092-TN SCREW 1

- -
24. PWB CONVEYOR COMPONENTS (4)
A
A
B
B
2
3
4
5
6
6
1 8
1 8
1 8
7
7
9
8
1 0
1 1
1 3
1 6
1 9
2 0
2 1
2 2
2 3
2 4
2 7
2 6
2 5
2 8
2 9
3 0
3 2
3 4
3 5
3 3
3 4
3 5
3 3
3 5
3 4
3 3
3 1
3 6
4 1
3 8
3 9
4 0
3 7
4 2
4 1
1 4
1 5
1 7
1
4 9
4 8
5 2
5 3
5 3
6 4
6 4
5 0
5 1
5 4
5 5
5 7
5 9
6 2
6 6
6 7
6 5
6 8
6 9
7 0
7 3
7 1
7 2
7 4
7 5
7 6
7 9
8 1
7 9
8 1
8 0
8 0
7 9
8 0
8 1
7 9
8 0
8 1
7 9
8 0
5 6
4 5
C
C
8 1
7 9
8 0
8 2
7 8
8 3
8 4
4 4
7 7
8 5
8 8
8 7
8 6
4 6
4 6
4 7
6 0
5 2
6 4
1 5
1 7
6 3
6 1
6 1
6 3
4 3
1 8
7
1 2
5 8
5 3
6 4
E
D
E
D