AX-501 AX-301 安装手册 - 第48页
第 5 章 安装手册 4022 593 52152 48 AX-301/501 , AX-3/5 08.02 ch05.fm 第 5 章通 信 5.1 SMEMA 5.1.1 接口连接 要使机器在流水线上和邻近的 设备协同工作,机器需符合 SME MA 标准。 要顺控机器电路板,需要使用 2 条信号线路: “繁忙”和 “可用电路 板” 。 5.1.1.1 SMEMA ,电气接口电缆 随机器附带 1 根 SMEMA 接口电缆 (长度:…

4022 593 52152 安装手册
08.02 AX-301/501, AX-3/5 47
ch04.fm
第
4
章
4.4 供气
注: 最大气流量时须达到指定气压。
可通过金属管或软管供给压缩空气。
为防止震动影响,建议您在固定管和系统之间连接一段软管。
1. 连接气源
• 如图32所示,在机器下方的 G1/4 耦接头位
置安装一个软管柱或软管耦接头。
• 将软管连接至软管柱或软管耦接头。
2. 打开压缩气源
• 打开主供气开关 (1)。
• 检查/调节数字气压开关 (4)上的气压。
• 通过气压调节器 (2)将气压调为 5.9 bar。
将调节器 (2)旋钮拉下,将其解锁。
• 使用散装供料器时:打开供气开关 (3)。
气压
6-8 Bar
气流量消耗
AX-301 AX-501
150 Nl / min.(仅限于带式送
料)
185 Nl / min.(带式和散装式
送料)
230 Nl / min.(仅限于带式送
料)
290 Nl / min.(带式和散装式
送料)
最大含油量
< 0.1 mg/m
3
露点 7 bar 时 < 2°C
7.2 bar 时 < 4°C
尘粒尺寸
< 10 µm
5.9
1243
5.9 Bar

第
5
章
安装手册 4022 593 52152
48 AX-301/501, AX-3/5 08.02
ch05.fm
第 5 章通信
5.1 SMEMA
5.1.1 接口连接
要使机器在流水线上和邻近的设备协同工作,机器需符合 SMEMA 标准。
要顺控机器电路板,需要使用 2 条信号线路:“繁忙”和 “可用电路板”。
5.1.1.1 SMEMA,电气接口电缆
随机器附带 1 根 SMEMA 接口电缆 (长度:2000 mm)。
电缆规格:
•4 线。
• 两端的电缆连接器都包含以下部件:
• CPC 14p 连接器引脚:AMP 206044-1
•5 针触点:AMP 202236-1
• 电缆夹:AMP 206070-1
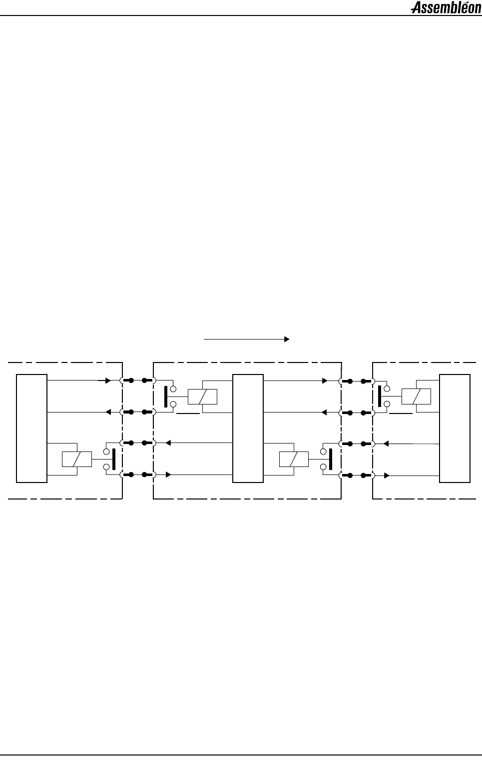
5.1.1.2 SMEMA,电气接口,连接图
可用
电路板
可用
电路板
繁忙
繁忙
1
2
3
4
1
2
3
4
1
2
3
4
1
2
3
4
电路板方向
AX-301/501上游 下游
24V
不繁忙
24V
可用电路板
24V
不繁忙
24V
可用
电路板

4022 593 52152 安装手册
08.02 AX-301/501, AX-3/5 49
ch05.fm
第
5
章
5.1.1.3 SMEMA,电气接口,特征
5.1.2 网络配置 (内部),设定
要检验或更改内部网络设定,请启动 windows 桌面上的网络配置工具。
注:
请勿使用标准的
Windows
“设定 (
setting
)”
-
“控制面板 (
control panel
)”
-
“网络连接 (
network connections
)”选项来更改内部网络的参数。否则会导致
机器无法工作,原因在于这些设定和机器数据库之间存在联系。
网络配置工具则可以处理这种联系。
网络配置工具也是应用程序安装软件的一部分。
1. 前提条件
• 从当地网络管理员处获得以下信息:
∗ 用于外部网络的可用 IP 地址范围。
∗ 机器所需的计算机名称。该信息对于防止内、外部地址冲突非常
必要。
2. 步骤
• 作为 “installer”登录,密码为 “installer (安装人员)”。
• 关闭机器上的所有程序。
• 打开桌面上的快捷方式,启动网络配置工具。
• 按照画面上的操作向导进行操作。
引脚 上游机器连接器 下游机器连接器
1
24V,自上游机器 24 V,至下游机器
1-2
AX:
不繁忙 1 - 2 关闭
繁忙 1 - 2 打开
下游机器:
不繁忙:1 - 2 关闭
繁忙 1 - 2 打开
3
24 V,至上游机器 24V,自下游机器
3-4
上游机器:
可用电路板 3 - 4 关闭
AX:
可用电路板 3 - 4 关闭
321
4567
11
1098
12
13 14