JM-10-Rev03 - 第39页
- 34 - NOTE( 注記 ) #01....FOR EN EN 用 REF.NO NOTE PART NO D E S C R I P T I O N 品 名 Qty 1 401-16822 FEEDER BANK UNI T BW フィーダバンク総組BW 1 2 #01 401-16829 FEEDER BANK UNIT B(EN) フィーダバンク総組BW(EN) 1 3 401-16824 BOWL FEEDER BANK …

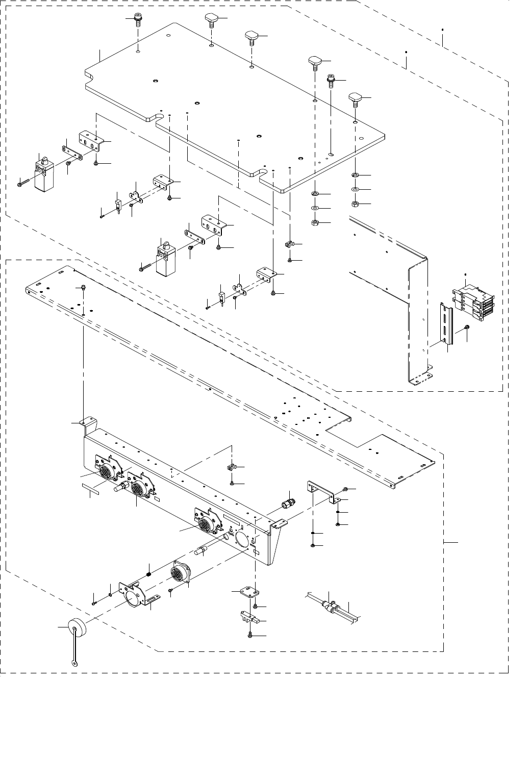
- 33 -
17.FEEDER BANK COMPONENTS (FOR BOWL FEEDER)(BEFORE M/C REV.D)
フィーダバンク関係(ボウルフィーダ用)(マシン REV.D 以前)
39
28
5
7
6
9
10
11
12
14
13
13
12
14
8
11
10
15
16
17
17
28
28
28
6
7
5
44
46
47
48
49
53
51
52
51
52
54
55
30
31
38
37
32
33
43
42
40
41
34
3
4
56
50
35
36
45
22
23
24
21
20
24
24
23
21
19
22
24
24
25
26 27
18
1 2
29

- 34 -
NOTE( 注記 ) #01....FOR EN EN 用
REF.NO NOTE PART NO D E S C R I P T I O N
品 名
Qty
1 401-16822 FEEDER BANK UNIT BW
フィーダバンク総組BW
1
2
#01
401-16829 FEEDER BANK UNIT B(EN)
フィーダバンク総組BW(EN)
1
3 401-16824 BOWL FEEDER BANK ASSY
ボウルフィーダバンク組
(1)
4
#01
401-31930 BOWL FEEDER BANK ASSY(EN)
ボウルフィーダバンク組(EN)
(1)
5 NM-6080001-SC NUT M8X1.25 TYPE1
六角ナット M8X1.25 1種
(4)
6 WP-0841601-SC WASHER M8
平座金みがき丸 M8
(4)
7 WS-0820002-KN SPRING WASHER M8
ばね座金 M8
(4)
8 401-16276 SET SENSOR L ASM
セットセンサL組
(1)
9 401-16277 SET SENSOR R ASM
セットセンサR組
(1)
10 SM-6850802-TN SCREW M2.5 L=8
六角穴ボルト M2.5 L=8
(2)
11 401-16732 SENS BR A
センサブラケットA
(2)
12 SL-4030691-SC SCREW M3 L=6
座金付きなべ小ねじ M3 L=6
(4)
13 401-16733 SENS BR B
センサブラケットB
(2)
14 SL-4040891-SC SCREW M4 L=8
座金付きなべ小ねじ M4 L=8
(4)
15 HX-0029400-00 FIXED BASE
固定ベース
(3)
16 SM-4040601-SC SCREW M4X0.7 L=6
なべ小ねじ M4X0.7 L=6
(3)
17 SL-6082592-TN SCREW M8 L=25
座金付き六角穴ボルト M8 L=25
(4)
18 401-16730 BOWL FIT BASE
ボウルフィットベース
(1)
19
#01
401-23617 SET SW L ASM
セットSW L組
(1)
20
#01
401-23621 SET SW R ASM
セットSW R組
(1)
21
#01
SL-4043091-SC SCREW M4 L=30
座金付きなべ小ねじ M4 L=30
(4)
22
#01
401-31928 BF_SENS_BR_A_EN
BFセンサブラケットA_EN
(2)
23
#01
401-31929 BF_SENS_BR_B_EN
BFセンサブラケットA_EN
(2)
24
#01
SL-4040891-SC SCREW M4 L=8
座金付きなべ小ねじ M4 L=8
(10)
25
#01
400-50012 CARRIER RAIL
キャリーレール
(1)
26
#01
HB-0013900-00 RELAY
リレー
(2)
27
#01
HB-0013900-10 RELAY SOCKET
リレー用ソケット
(2)
28 401-16731 BOWL SET SH
ボウルセットシャフト
(4)
29 401-16825 F CONNECTOR BR ASSY B
FコネクタBR組B
(1)
30 HD-0017100-00 SENSOR
フォトインタラプタ
(4)
31 SL-4041291-SC SCREW M4 L=12
座金付きなべ小ねじ M4 L=12
(4)
32 PJ-3010651-06 FEMALE UNION
メスユニオン
(10)
33 E2904-700-000 SOCKET
ソケット
(10)
34 401-16743 F CON LABEL BW
FコネクタラベルBW
(1)
35 PJ-3080600-03 Y UNION
ユニオンY
(1)
36 BT-0600400-EC URETHANE TUBE BLUE 6X4
ポリウレタンチューブ 青 6X4
(3)
37 HX-0029400-00 FIXED BASE
固定ベース
(5)
38 SM-4040601-SC SCREW M4X0.7 L=6
なべ小ねじ M4X0.7 L=6
(5)
39 SL-6040892-TN SCREW M4 L=8
座金付き六角穴ボルト M4 L=8
(4)
40 401-16274 LL BW FEEDER CABLE ASM
LL BW フィーダケーブル組
(1)
41 401-16288 LR BW FEEDER CABLE ASM
LR BW フィーダケーブル組
(1)
42 401-16290 RL BW FEEDER CABLE ASM
RL BW フィーダケーブル組
(1)
43 401-16292 RR BW FEEDER CABLE ASM
RR BW フィーダケーブル組
(1)
44 401-16738 F CONNECTOR BR BW
FコネクタブラケットBW
(1)
45 WP-0320501-SC WASHER M3
平座金 3.2X7X0.5
(16)
46 SL-4030891-SC SCREW M3 L=8
座金付きなべ小ねじ M3 L=8
(16)
47 401-16740 F CON SLIDER BR
Fコネクタスライダブラケット
(4)
48 SL-4040891-SC SCREW M4 L=8
座金付きなべ小ねじ M4 L=8
(8)
49 401-16739 F CON SLIDER
Fコネクタスライダ
(4)
50 SM-4031001-SC SCREW M3X0.5 L=10
なべ小ねじ M3X0.5 L=10
(8)
51 400-81808 FREE LINK JOINT COLLAR
フリーリンクジョイントカラー
(16)
52 E1120-706-C00 FREE LINK JOINT SCREW
フリーリンクジョイントスクリュウ
(16)
53 401-16741 F CON SPRING
Fコネクタスプリング
(8)
54 401-16742 F CON SENS PLATE
Fコネクタセンサプレート
(4)
55 SL-4040891-SC SCREW M4 L=8
座金付きなべ小ねじ M4 L=8
(8)
56
#01
HK-0429901-9A CONNECTOR
キャップ
(4)

- 35 -
18.HEAD COMPONENTS (1)
ヘッド関係(1)
78 81
4
13
A
A
B
B
2
3
82
83
83
83
15
16
16
17
36
26
26
27
28
29
30
32
33
34
37
38
38
39
40
41
42
44
45
46
47
48
49
50
51
52
53
55
57
58
59
60
61
62
63
63
63
64
64
64
72
17
19
66
71
31
18
83
83
83
74
77
75
75
77
20
76
76
5
14
14
21
25
65
35
73
84
90
91
7
9
8
43
56
89
54
12
11
23
24
24
1
85
88
87
86
64
10
22
6