PTS-NXT2-06JE - 第104页
A A A A 㸨㹆㹗㸮㹁㸯ࠉ㸯㸰㸱㸲㸳㸴㸨 4 5 9 10 12 13 14 15 16 17 18 19 20 21 22 23 24 25 24 25 26 27 28 29 30 31 32 33 34 35 36 37 38 39 39 23 11 26 32 33 1.1 2 3 1 1.2 1.2 2.1 40 41 42 43 44 45 35.1 6 +6࣊ࢵࢻࣃ࣮ࢶ᭷↓☜ㄆࢭࣥࢧᶵ⬟ +6+($&a…

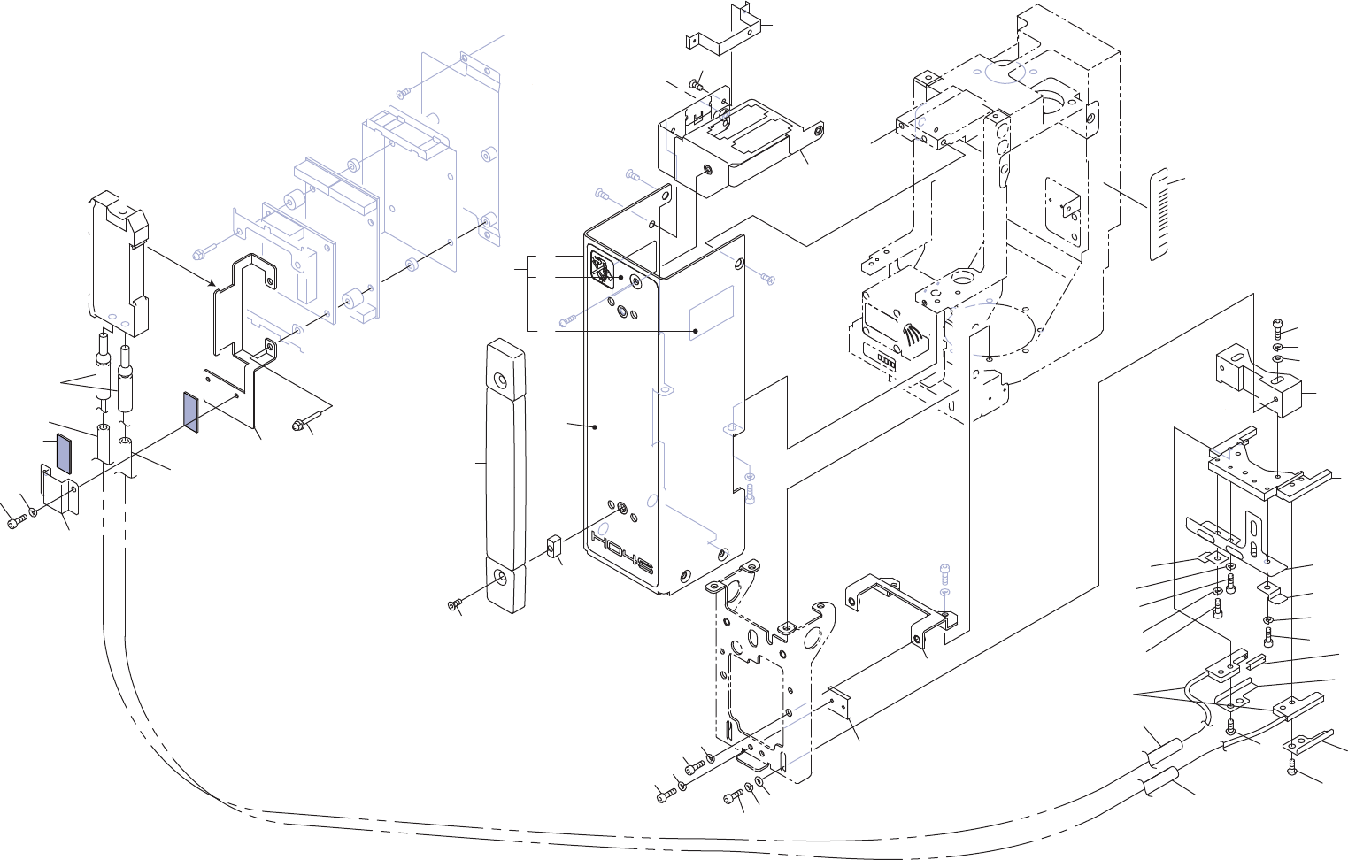
H04S HEAD(AUTO BACKUP PIN EQUIPMENT)
H04S ヘッド(自動バックアップピン機能)
2UGKHE000105
No. Dr
g
.No. & Code No. QTY Descri
p
tion Ratin
g
Materials Remarks
番号 図番 & コード番号 個数 品名
規
格材質 備考
2 AA17R11 1 CHUCK チャック OT
3 XK05620 1 BOARD, PRINTED CIRCUIT 基板
プ
リント OT
4 S3273D 2 SPACER スペーサ C-2005 OT
5 H5268A 2 BOLT, HEX SOCKET ボルト 六角穴 M02X010 FE
6 W1039A 2 WASHER, FLAT ワッシャ 平 2M
/
MFE
9 PB79391 1 BKT, SENSOR BKT センサ FE
10 H5275A 2 BOLT, HEX SOCKET ボルト 六角穴 M03X008 FE
11 W1021A 2 WASHER, LOCK ワッシャ ス
プ
リン
グ
3M
/
MFE
12 W1042A 2 WASHER, FLAT ワッシャ 平 4W- 3 FE
18 PB03FA1 1 DOG ドッ
グ
FE
19 K5180G 2 SCREW, C
/
R PAN 小ネジ 十穴鍋 M02X004 0バン3シュ(3カ クロ) FE
20 PB03FB1 1 DOG ドッ
グ
FE
21 K5180C 2 SCREW, C
/
R PAN 小ネジ 十穴鍋 M01.7X003 0バン3シュ(3カ クロ) FE
25 PM08TL1 1 FLANGE フランジ AL
25.1 N4087K 2 SCREW, HEX SOCKET SET ネジ 六角穴止め M01.6X002 クボミサキ FE
26 H5265A 3 BOLT, HEX SOCKET ボルト 六角穴 M02X005 FE
27 W1020A 3 WASHER, LOCK ワッシャ ス
プ
リン
グ
2M
/
MFE
28 H5265A 1 BOLT, HEX SOCKET ボルト 六角穴 M02X005 FE
29 H5266A 1 BOLT, HEX SOCKET ボルト 六角穴 M02X006 FE
30 W1020A 1 WASHER, LOCK ワッシャ ス
プ
リン
グ
2M
/
MFE
31 XS01844 1 CYLINDER シリンダ OT
32 H5267A 3 BOLT, HEX SOCKET ボルト 六角穴 M02X008 FE
33 W1020A 3 WASHER, LOCK ワッシャ ス
プ
リン
グ
2M
/
MFE
34 PM55703 1 SHAFT シャフト FE
35 PM55002 1 BUSHING, GUIDE
ブ
シュ ガイド OT
37 K51684 1 SCREW, C
/
R COUNTERSUNK 小ネジ 十穴皿 M02X006(3カ クロ) FE
40 AA53A01 1 SENSOR センサ OT
41 S40580 1 SENSOR センサ E3T-FD14 OT
42 XS02681 1 SLIT スリット OT
43 K5175M 2 SCREW, C
/
R PAN 小ネジ 十穴鍋 M02X004(0バン 1シュ)ステンレス OT
45 PJ06032 1 PLATE, ACRYLIC
プ
レート アクリル OT
46 H1122D 1 VALVE, SOL バル
ブ
SOL SYJ3140-5M0U OT
47 . 1 GASKET ガスケット OT
48 . 2 SCREW 小ネジ OT
49 PX09860 1 SEAL, BAR CODE シール バーコード OT unit serial number
103
PTS-NXT2-06JE Vol.1

AA
AA
㸨㹆㹗㸮㹁㸯ࠉ㸯㸰㸱㸲㸳㸴㸨
4
5
9
10
12
13
14
15
16
17
18
19
20
21
22
23
24
25
24
25
26
27
28
29
30
31
32
33
34
35
36
37
38
39
39
23
11
26
32
33
1.1
2
3
1
1.2
1.2
2.1
40
41
42
43
44
45
35.1
6
+6࣊ࢵࢻࣃ࣮ࢶ᭷↓☜ㄆࢭࣥࢧᶵ⬟
+6+($'3DUWV3UHVHQFH&KHFN6HQVRU(TXLSPHQW
2UGKHE000105
104
PTS-NXT2-06JE Vol.1

H04S HEAD(Parts Presence Check Sensor Equipment)
H04S ヘッド(パーツ有無確認センサ機能)
2UGKHE000105
No. Dr
g
.No. & Code No. QTY Descri
p
tion Ratin
g
Materials Remarks
番号 図番 & コード番号 個数 品名
規
格材質 備考
1 AA93T03 1 COVER カバー OT
1.1 PB06XG2 1 COVER, FRONT カバー フロント AL
1.2 PS00831 2 SHEET シート OT Consumable Parts
2 T50032 1 HANDLE 取手 THA-192-1<TG> OT
2.1 PM0FTY1 2 SPACER スペーサ FE
3 K53579 2 SCREW, HEX SOCKET COUNTERSUNK 小ネジ 六角穴皿 M03X010(3カ シロ) FE
4 PB76092 1 BKT, WIRING BKT 配線 AL
5 PB72802 1 BKT BKT FE
6 K5169H 2 SCREW, C
/
R COUNTERSUNK 小ネジ 十穴皿 M02X004(ステンレス) FE
9 PM023B4 1 PLATE, GUIDE
プ
レート ガイド FE
10 H5268N 2 BOLT, HEX SOCKET ボルト 六角穴 M02.5X004 FE
11 W1020H 2 WASHER, LOCK ワッシャ ス
プ
リン
グ
2.5M
/
MFE
12 PM023C3 1 BKT BKT AL
13 H5275A 2 BOLT, HEX SOCKET ボルト 六角穴 M03X008 FE
14 W1021A 2 WASHER, LOCK ワッシャ ス
プ
リン
グ
3M
/
MFE
15 W1042A 2 WASHER, FLAT ワッシャ 平 4W- 3 FE
16 H5280A 2 BOLT, HEX SOCKET ボルト 六角穴 M03X020 FE
17 W1021A 2 WASHER, LOCK ワッシャ ス
プ
リン
グ
3M
/
MFE
18 W1042A 2 WASHER, FLAT ワッシャ 平 4W- 3 FE
19 PM023D2 1 BKT, SENSOR BKT センサ AL
20 PB78832 1 BKT, WIRING BKT 配線 FE
21 H5268T 2 BOLT, HEX SOCKET ボルト 六角穴 M02.5X006 FE
22 W1020H 2 WASHER, LOCK ワッシャ ス
プ
リン
グ
2.5M
/
MFE
23 PB79642 2 RETAINER, WIRING 押え 配線 FE
24 H5268T 2 BOLT, HEX SOCKET ボルト 六角穴 M02.5X006 FE
25 W1020H 2 WASHER, LOCK ワッシャ ス
プ
リン
グ
2.5M
/
MFE
26 S4051R 1 SENSOR, FIBER センサ ファイバ E32-A03-1 OT
27 PB67322 1 COVER カバー FE
28 PB78962 1 COVER カバー FE
29 K5255T 2 SCREW, HEX SOCKET BUTTON 小ネジ 六角穴ボタン M03X006 FE
30 PB78972 1 COVER カバー FE
31 K5255T 2 SCREW, HEX SOCKET BUTTON 小ネジ 六角穴ボタン M03X006 FE
32 PZ34001 1 TUBE チュー
ブ
OT
33 PZ34011 1 TUBE チュー
ブ
OT
34 A1038W 1 AMPLIFIER アン
プ
E3X-DA41-S OT
35 PB0AST0 1 BKT BKT FE
35.1 K5598H 2 SCREW, WASHER ASS'Y 小ネジ 座金組込み B-0320-S1 OT
36 PB78843 1 RETAINER, WIRING 押え 配線 FE
37 H5268N 2 BOLT, HEX SOCKET ボルト 六角穴 M02.5X004 FE
38 W1020H 2 WASHER, LOCK ワッシャ ス
プ
リン
グ
2.5M
/
MFE
39 PS02382 2 SHEET シート OT Consumable Parts
40 PX09870 1 SEAL, BAR CODE シール バーコード OT Without Picker, unit serial number
41 PX09880 1 SEAL, BAR CODE シール バーコード OT With Picker, unit serial number
42 PX09900 1 NAMEPLATE
銘
板PL
43 2MGKHE000300 1 BKT BKT FE
44 H5273A 2 BOLT, HEX SOCKET ボルト 六角穴 M03X005 FE
45 W1021A 2 WASHER, LOCK ワッシャ ス
プ
リン
グ
3M
/
MFE
105
PTS-NXT2-06JE Vol.1