PTS-NXT2-06JE - 第250页
'3;$ 7R%(' 12 14 16 13 17 15 23 22 30 31 32 33 21 24 26 25 2 0,,ࢹࣂࢫࣃࣞࢵࢺ 0,,'(9,&(3$//(7 (Standard) UD02512 11 19 20 28 29 27 18 1 250 PTS-NXT2-06JE Vol.1

M3 II-DEVICE PALLET 1/3
(With bucket) UD02613
M3 II-デバイスパレット 1/3
(Standard) UD02512
No. Dr
g
.No. & Code No. QTY Descri
p
tion Ratin
g
Materials Remarks
番号 図番 & コード番号 個数 品名
規
格材質 備考
115 W1021A 4 WASHER, LOCK ワッシャ ス
プ
リン
グ
3M
/
MFE
116 W1040R 4 WASHER, FLAT ワッシャ 平 3M
/
MX0.5X7(1W-3)(3カ クロ) FE
117 PM089D3 2 HOLDER, CONNECTOR ホルダ コネクタ AL
118 K5256M 4 SCREW, HEX SOCKET BUTTON 小ネジ 六角穴ボタン M03X020 FE
119 W1021A 4 WASHER, LOCK ワッシャ ス
プ
リン
グ
3M
/
MFE
120 PM089A1 1 ARM アーム FE
121 H5277A 2 BOLT, HEX SOCKET ボルト 六角穴 M03X012 FE
122 W1021A 2 WASHER, LOCK ワッシャ ス
プ
リン
グ
3M
/
MFE
123 PP02840 1 RETAINER 押え FE
124 H60283 3 BOLT, HEX SOCKET ボルト 六角穴 M03×006テイトウ(LH0306) FE
125 W1010A 3 WASHER, CONICAL ワッシャ 皿 M- 3-L FE
126 H5163A 1 BOLT, HEX ボルト 六角 M03X006(クロゾメ) FE
127 W1040R 1 WASHER, FLAT ワッシャ 平 3M
/
MX0.5X7(1W-3)(3カ クロ) FE
128 H3038Z 1 HOOK フック BSPO 4-15 OT
129 N10796 1 NUT, HEX ナット 六角 M04(3カ クロ) FE
130 W1022A 1 WASHER, LOCK ワッシャ ス
プ
リン
グ
4M
/
MFE
131 S3262T 1 SPRING, TENSION ス
プ
リン
グ
引
張
AWY8-45 OT
132 PP02850 1 COVER カバー FE
133 H5275A 4 BOLT, HEX SOCKET ボルト 六角穴 M03X008 FE
134 W1021A 4 WASHER, LOCK ワッシャ ス
プ
リン
グ
3M
/
MFE
135 PH01740 1 BUSHING
ブ
シュ OT
249
PTS-NXT2-06JE Vol.1

'3;$
7R%('
12
14
16
13
17
15
23
22
30
31
32
33
21
24
26
25
2
0,,ࢹࣂࢫࣃࣞࢵࢺ
0,,'(9,&(3$//(7
(Standard) UD02512
11
19
20
28
29
27
18
1
250
PTS-NXT2-06JE Vol.1

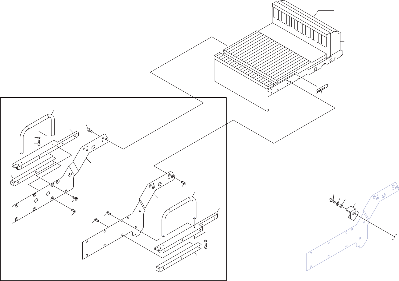
M3 II-DEVICE PALLET 2/3
M3 II-デバイスパレット 2/3
(Standard) UD02512
No. Dr
g
.No. & Code No. QTY Descri
p
tion Ratin
g
Materials Remarks
番号 図番 & コード番号 個数 品名
規
格材質 備考
1 AA7GX11 1 PALLET パレット OT
2 PX07631 1 SEAL, BAR CODE シール バーコード OT unit serial number
11 AA29X10 1 ARM, CLAMP アーム クラン
プ
OT
12 PB58422 1 PLATE, ARM
プ
レート アーム FE
13 K5361T 4 SCREW, HEX SOCKET COUNTERSUNK 小ネジ 六角穴皿 M05X012 FE
14 PM77693 1 BAR, GUIDE バー ガイド FE
15 K5363A 3 SCREW, HEX SOCKET COUNTERSUNK 小ネジ 六角穴皿 M06X012 FE
16 PM87704 1 BAR, GUIDE バー ガイド FE
17 K5363A 5 SCREW, HEX SOCKET COUNTERSUNK 小ネジ 六角穴皿 M06X012 FE
18 AA7ZG02 1 HANDLE 取手 OT
19 H5278A 2 BOLT, HEX SOCKET ボルト 六角穴 M03X015 FE
20 W1021A 2 WASHER, LOCK ワッシャ ス
プ
リン
グ
3M
/
MFE
21 2MGKPE000100 1 PLATE, ARM
プ
レート アーム FE
22 K5361T 4 SCREW, HEX SOCKET COUNTERSUNK 小ネジ 六角穴皿 M05X012 FE
23 PM77693 1 BAR, GUIDE バー ガイド FE
24 K5363A 3 SCREW, HEX SOCKET COUNTERSUNK 小ネジ 六角穴皿 M06X012 FE
25 PM87714 1 BAR, GUIDE バー ガイド FE
26 K5363A 5 SCREW, HEX SOCKET COUNTERSUNK 小ネジ 六角穴皿 M06X012 FE
27 AA7ZG02 1 HANDLE 取手 OT
28 H5278A 2 BOLT, HEX SOCKET ボルト 六角穴 M03X015 FE
29 W1021A 2 WASHER, LOCK ワッシャ ス
プ
リン
グ
3M
/
MFE
30 PB015X0 1 BKT, RETAINER BKT 押え FE
31 H5322A 1 BOLT, HEX SOCKET ボルト 六角穴 M06X015 FE
32 W1024A 1 WASHER, LOCK ワッシャ ス
プ
リン
グ
6M
/
MFE
33 W1045A 1 WASHER, FLAT ワッシャ 平 4W- 6 FE
251
PTS-NXT2-06JE Vol.1