PTS-NXT2-06JE.pdf - 第315页
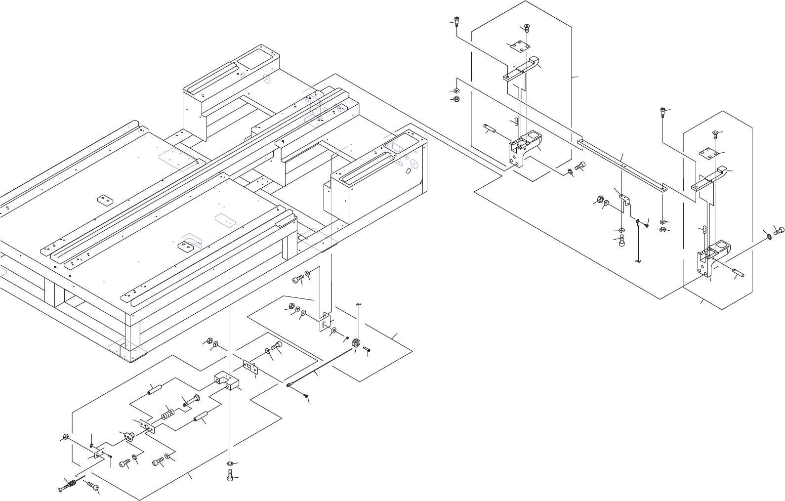
MCU-MODULE CHANGEOVER UNIT 2/6 MCU-モジュール交換台車 2/6 UX00134 No. Dr g .No. & Code No. QTY Descri p tion Ratin g Materials Remarks 番号 図番 & コード番号 個数 品名 規 格材 質 備 考 1 AA27005 1 STOPPER ストッパ OT 2 PM30941 1 HOLDER ホルダ FE …

29
2
5
6
7
8
9
10
11
12
13
14
16
15
8
17
18
53
54
18.1
30
25
28
31
32
33
35
36
37
43
44
45
46
47
49
48
49
48
47
35
36
37
43
44
45
50
51
52
29.1
1
4
3
19
20
21
22
23
24
27
26
21
22
23
34
34
38
39
38
39
0&8ࣔࢪ࣮ࣗࣝྎ㌴
0&802'8/(&+$1*(29(581,7
UX00134
314
PTS-NXT2-06JE Vol.1

MCU-MODULE CHANGEOVER UNIT 2/6
MCU-モジュール交換台車 2/6
UX00134
No. Dr
g
.No. & Code No. QTY Descri
p
tion Ratin
g
Materials Remarks
番号 図番 & コード番号 個数 品名
規
格材質 備考
1 AA27005 1 STOPPER ストッパ OT
2 PM30941 1 HOLDER ホルダ FE
3 H5292A 2 BOLT, HEX SOCKET ボルト 六角穴 M04X020 FE
4 W1011A 2 WASHER, CONICAL ワッシャ 皿 M- 4-L FE
5 PB04153 1 PLATE
プ
レート FE
6 H5299A 2 BOLT, HEX SOCKET ボルト 六角穴 M05X012 FE
7 W1023A 2 WASHER, LOCK ワッシャ ス
プ
リン
グ
5M
/
MFE
8 PM52651 2 SHAFT シャフト FE
9 PB17451 1 BKT BKT FE
10 H5299A 2 BOLT, HEX SOCKET ボルト 六角穴 M05X012 FE
11 W1023A 2 WASHER, LOCK ワッシャ ス
プ
リン
グ
5M
/
MFE
12 S3261T 1 SLEEVE スリー
ブ
JBN8-16 OT
13 H5273A 2 BOLT, HEX SOCKET ボルト 六角穴 M03X005 FE
14 W1010A 2 WASHER, CONICAL ワッシャ 皿 M- 3-L FE
15 PM07782 1 SHAFT シャフト FE
16 PZ05101 1 SPRING ス
プ
リン
グ
FE
17 PB04232 1 PLATE
プ
レート FE
18 PM52631 1 PIN ピン FE
18.1 S1021A 1 CIR-CLIP サークリッ
プ
ST-EW- 3 OT
19 XW00102 1 WIRE ワイヤ OT
20 W1093D 1 WIRE ワイヤ TM-173 C2(NO.7988)L=530 OT
21 PM52501 2 PIN, PIVOT ピン 支点 FE
22 N10812 2 NUT, HEX ナット 六角 M03 3シュ(3カ クロ) FE
23 W1021A 2 WASHER, LOCK ワッシャ ス
プ
リン
グ
3M
/
MFE
24 AA26909 1 ROLLER ローラ OT
25 PB19531 1 BKT, ROLLER BKT ローラ FE
26 H5299A 2 BOLT, HEX SOCKET ボルト 六角穴 M05X012 FE
27 W1023A 2 WASHER, LOCK ワッシャ ス
プ
リン
グ
5M
/
MFE
28 R5001R 1 ROLLER ローラ MBG20-1.5 OT
29 PM52602 1 WASHER ワッシャ FE
29.1 W1040S 1 WASHER, FLAT ワッシャ 平 M4X0.8X9(1W-4)(3カ クロ) FE
30 PM0BYS2 1 PIN ピン FE
31 N10796 1 NUT, HEX ナット 六角 M04(3カ クロ) FE
32 W1022A 1 WASHER, LOCK ワッシャ ス
プ
リン
グ
4M
/
MFE
33 W1043A 1 WASHER, FLAT ワッシャ 平 4W- 4 FE
34 AA26504 2 GUIDE ガイド OT
35 PM30931 2 GUIDE, CLAMP ガイド クラン
プ
FE
36 PM52581 2 PIN ピン FE
37 N4026A 2 SCREW, HEX SOCKET SET ネジ 六角穴止め M04X004 クボミサキ FE
38 H5341A 6 BOLT, HEX SOCKET ボルト 六角穴 M08X020 FE
39 W1014A 6 WASHER, CONICAL ワッシャ 皿 M- 8-H FE
43 PM30961 2 LEVER レバー FE
44 PB17461 2 COVER カバー FE
45 K5359H 8 SCREW, HEX SOCKET COUNTERSUNK 小ネジ 六角穴皿 M04X010 FE
46 PM08133 1 PLATE, JOINT
プ
レート ジョイント FE
47 H5120H 2 BOLT ボルト MSB6.5-10 FE
48 N10797 2 NUT, HEX ナット 六角 M05(3カ クロ) FE
49 W1023A 2 WASHER, LOCK ワッシャ ス
プ
リン
グ
5M
/
MFE
50 PB04222 1 BKT BKT FE
51 H5287A 2 BOLT, HEX SOCKET ボルト 六角穴 M04X008 ゼンネジ FE
52 W1022A 2 WASHER, LOCK ワッシャ ス
プ
リン
グ
4M
/
MFE
315
PTS-NXT2-06JE Vol.1

MCU-MODULE CHANGEOVER UNIT 2/6
MCU-モジュール交換台車 2/6
UX00134
No. Dr
g
.No. & Code No. QTY Descri
p
tion Ratin
g
Materials Remarks
番号 図番 & コード番号 個数 品名
規
格材質 備考
53 PM0AEA0 1 SCREW, ADJUSTING ネジ 調整 FE
54 N1067A 1 NUT, U ナット U M06 FE
316
PTS-NXT2-06JE Vol.1