PTS-NXT2-06JE.pdf - 第327页
ࡇࡢ࣮࣌ࢪࡣࣈࣛࣥࢡ࣮࣌ࢪ࡛ࡍࠋ This page is intentionally blank. 327 PTS-NXT2-06JE Vol.1

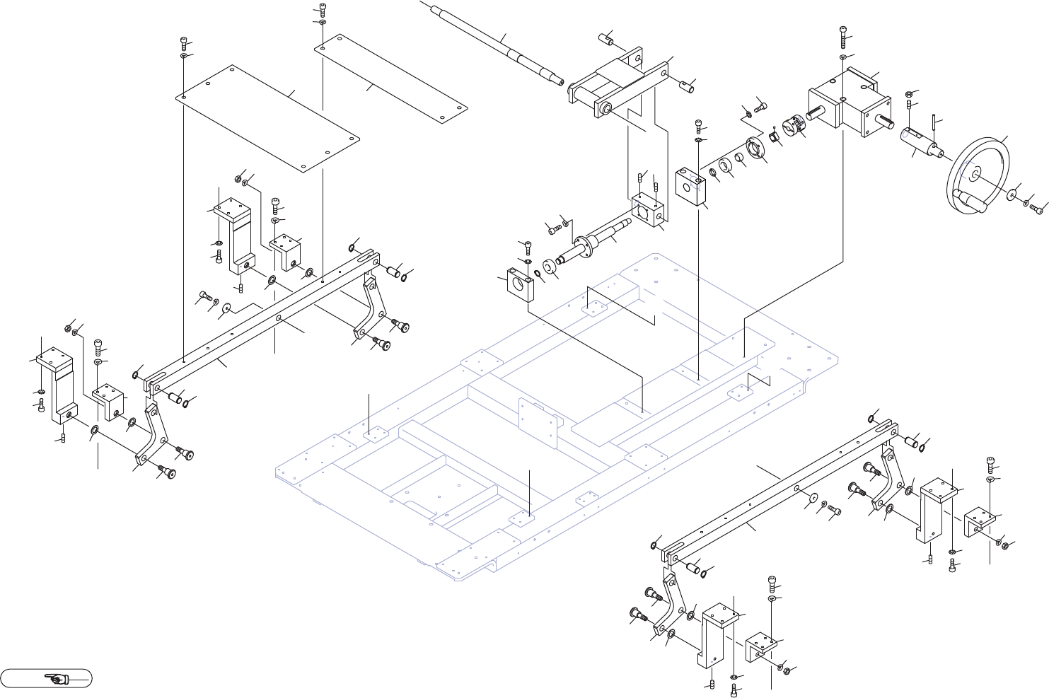
MCU-MODULE CHANGEOVER UNIT 5/6
MCU-モジュール交換台車 5/6
UX00134
No. Dr
g
.No. & Code No. QTY Descri
p
tion Ratin
g
Materials Remarks
番号 図番 & コード番号 個数 品名
規
格材質 備考
52 H5234A 2 BOLT, HEX ボルト 六角 M12X070 10.9 ゼンネジ FE
53 N1080D 4 NUT, HEX ナット 六角 M12(3カ クロ) FE
54 H4902E 2 BEARING, DRY ベアリン
グ
ドライ K5B1212 OT
326
PTS-NXT2-06JE Vol.1
ࡇࡢ࣮࣌ࢪࡣࣈࣛࣥࢡ࣮࣌ࢪ࡛ࡍࠋ
This page is intentionally blank.
327
PTS-NXT2-06JE Vol.1

CC
EE
CC
JJ
DD
EE
FF
AA
LL
MM
BB
KK
BB
AA
J,K,L,MJ,K,L,M
FF
DD
Ref.1/
1
2
3
4
6
5
7
8
7
8
9
11
10
14
15
17
16
6
1
2
3
4
5
6
7
7
8
8
9
10
11
14
15
16
17
5
6
6.1
7
7
14
15
16
17
9
8
8
10
11
24
25
26
27
28
29
30
31
32
34
33
35
36
37
38
39
40
41
42
43
44
45
46
47
48
49
49
50
54
56
57
58
55
5
7
8
7
8
9
11
10
12
13
14
15
17
16
12
13
12
13
12
13
6.1
6.1
6.1
6.1
6.1
6.1
6.1
18
19
20
21
22
23
51
52
53
0&8ࣔࢪ࣮ࣗࣝྎ㌴
0&802'8/(&+$1*(29(581,7
UX00134
328
PTS-NXT2-06JE Vol.1