PTS-NXT2-06JE - 第333页
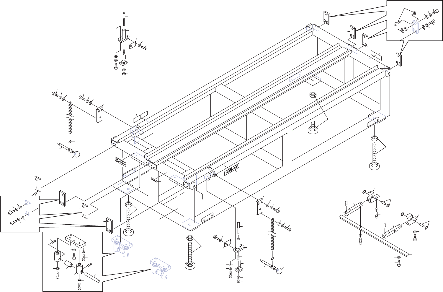
MSU UK01508 No. Dr g .No. & Code No. QTY Descri p tion Ratin g Materials Remarks 番号 図番 & コード番号 個数 品名 規 格材 質 備 考 1 PM61017 1 FRAME フレーム FE 2 A1250D 4 ADJUSTER アジャスタ FJSN20-130 OT 3 PM55784 2 PLATE プ レート FE 4 H542…

BB
BB
AA
AA
1
2
3
4
6
7
8
8
9
5
10
9
10
11
11
12
13
14
15
16
18
19
20
21
22
2
2
2
14
17
18
19
23
24
25
26
27
28
30
31
32
33
35
36
21
22
27
28
23
24
25
26
30
31
32
34
35
36
37
38
39
37
38
39
29
29
40
40
15
16
17
63
41
45
46
47
41
45
46
47
48
48
48
48
50
51
52
53
54
55
49
57
58
59
60
61
62
56
56
56
56
64
65
64
65
42
43
44
42
43
44
55.1
UK01508
068
332
PTS-NXT2-06JE Vol.1

MSU
UK01508
No. Dr
g
.No. & Code No. QTY Descri
p
tion Ratin
g
Materials Remarks
番号 図番 & コード番号 個数 品名
規
格材質 備考
1 PM61017 1 FRAME フレーム FE
2 A1250D 4 ADJUSTER アジャスタ FJSN20-130 OT
3 PM55784 2 PLATE
プ
レート FE
4 H5428R 4 BOLT, HEX SOCKET ボルト 六角穴 M08X030(3カ シロ) FE
5 W1106G 4 WASHER, LOCK ワッシャ ス
プ
リン
グ
8M
/
M(3カ シロ) FE
6 H5428F 2 BOLT, HEX SOCKET ボルト 六角穴 M08X015(3カ シロ) FE
7 W1014A 2 WASHER, CONICAL ワッシャ 皿 M- 8-H FE
8 PM55772 4 GUIDE ガイド FE
9 H5429E 4 BOLT, HEX SOCKET ボルト 六角穴 M12X025(3カ シロ) FE
10 W1016A 4 WASHER, CONICAL ワッシャ 皿 M-12-H FE
11 N4048C 4 SCREW, HEX SOCKET SET ネジ 六角穴止め M06X010 ヒラサキ ステンレス FE
12 PM50282 2 ROLLER ローラ FE
13 PM50271 2 PIN, ROLLER ピン ローラ FE
14 PB31124 2 BKT BKT FE
15 H5427B 4 BOLT, HEX SOCKET ボルト 六角穴 M05X012(3カ シロ) FE
16 W1106E 4 WASHER, LOCK ワッシャ ス
プ
リン
グ
5M
/
M(3カ シロ) FE
17 H2189S 2 PIN ピン HCDGH10-30 OT
18 PM60954 2 LEVER レバー FE
19 S3260D 2 SPRING ス
プ
リン
グ
SWR10.5-25 OT
20 PB33755 1 BKT BKT FE
21 H54269 2 BOLT, HEX SOCKET ボルト 六角穴 M05X010(3カ シロ) FE
22 W1106E 2 WASHER, LOCK ワッシャ ス
プ
リン
グ
5M
/
M(3カ シロ) FE
23 PM61006 2 HOLDER, STOPPER ホルダ ストッパ FE
24 H54274 4 BOLT, HEX SOCKET ボルト 六角穴 M06X025(3カ シロ) FE
25 W1106F 4 WASHER, LOCK ワッシャ ス
プ
リン
グ
6M
/
M(3カ シロ) FE
26 W1108F 4 WASHER, FLAT ワッシャ 平 4W-6(3カ シロ) FE
27 PB39373 2 PLATE, GUIDE
プ
レート ガイド FE
28 K5258L 4 SCREW, HEX SOCKET BUTTON 小ネジ 六角穴ボタン M04X008(3カ シロ) FE
29 W1106D 4 WASHER, LOCK ワッシャ ス
プ
リン
グ
4M
/
M(3カ シロ) FE
30 PM60992 2 STOPPER ストッパ FE
31 S3019L 2 SPRING ス
プ
リン
グ
WL10-45 OT
32 H2093M 2 PIN, PARALLEL ピン 平行 ゚4X25 Aシュ OT
33 PM60974 1 PLATE
プ
レート FE
34 PM60984 1 PLATE
プ
レート FE
35 N1079C 2 NUT, HEX ナット 六角 M 5 P=0.8 1シュ(3カ シロ) FE
36 W1106E 2 WASHER, LOCK ワッシャ ス
プ
リン
グ
5M
/
M(3カ シロ) FE
37 PB33746 2 PLATE, STOPPER
プ
レート ストッパ FE
38 H5428N 4 BOLT, HEX SOCKET ボルト 六角穴 M08X025(3カ シロ) FE
39 W1106G 4 WASHER, LOCK ワッシャ ス
プ
リン
グ
8M
/
M(3カ シロ) FE
40 W1108G 4 WASHER, FLAT ワッシャ 平 4W-8(3カ シロ) FE
41 T20439 2 CHAIN チェーン CHSP4-200 OT
42 H54251 2 BOLT, HEX SOCKET ボルト 六角穴 M03X006(3カ シロ) FE
43 W1106C 2 WASHER, LOCK ワッシャ ス
プ
リン
グ
3M
/
M(3カ シロ) FE
44 W1108B 2 WASHER, FLAT ワッシャ 平 M03(3カ シロ) FE
45 R2035R 2 RING リン
グ
RWS14 OT
46 PM60965 2 PIN, STOPPER ピン ストッパ FE
47 N21197 2 GRIP 握り PBA8-35-R OT
48 PB21484 4 PLATE, STOPPER
プ
レート ストッパ FE T
p
arts
49 H5494E 8 BOLT, STOPPER ボルト ストッパ UNAH3-15 OT
50 H5428R 8 BOLT, HEX SOCKET ボルト 六角穴 M08X030(3カ シロ) FE
51 W1106G 8 WASHER, LOCK ワッシャ ス
プ
リン
グ
8M
/
M(3カ シロ) FE
333
PTS-NXT2-06JE Vol.1

MSU
UK01508
No. Dr
g
.No. & Code No. QTY Descri
p
tion Ratin
g
Materials Remarks
番号 図番 & コード番号 個数 品名
規
格材質 備考
52 W1108G 8 WASHER, FLAT ワッシャ 平 4W-8(3カ シロ) FE
53 H5428R 4 BOLT, HEX SOCKET ボルト 六角穴 M08X030(3カ シロ) FE
54 W1106G 4 WASHER, LOCK ワッシャ ス
プ
リン
グ
8M
/
M(3カ シロ) FE
55 W1108G 4 WASHER, FLAT ワッシャ 平 4W-8(3カ シロ) FE
55.1 W1108G 8 WASHER, FLAT ワッシャ 平 4W-8(3カ シロ) FE
56 PB21474 4 PLATE, FIXED
プ
レート 固定 FE T
p
arts
57 H5428R 8 BOLT, HEX SOCKET ボルト 六角穴 M08X030(3カ シロ) FE
58 W1106G 8 WASHER, LOCK ワッシャ ス
プ
リン
グ
8M
/
M(3カ シロ) FE
59 W1108G 8 WASHER, FLAT ワッシャ 平 4W-8(3カ シロ) FE
60 H5428R 4 BOLT, HEX SOCKET ボルト 六角穴 M08X030(3カ シロ) FE
61 W1106G 4 WASHER, LOCK ワッシャ ス
プ
リン
グ
8M
/
M(3カ シロ) FE
62 W1108G 4 WASHER, FLAT ワッシャ 平 4W-8(3カ シロ) FE
63 PX03621 1 SEAL, BAR CODE シール バーコード OT unit serial number
64 PZ19231 2 SEAL シール PL
65 PZ25581 2 SEAL シール PL
334
PTS-NXT2-06JE Vol.1