PTS-NXT2-06JE.pdf - 第338页
A A B B B B A A 䣙䢷䢸 䣙䢶䢶 䣙䢵䢴 1 2 11.1 11 3 4 5 6 7 8 9 5.1 5 5 5.1 10 10 30 31 32 33 34 35 37 36 38 39 39 39 51 52 54 56 57 55 58 59 59 112 111 123 61 61 61 64 64 65 104 105 106 107 110 109 108 60 62 63 42 43 44 45 45 45 …

PANEL STAND
パネルスタンド
UK01703
No. Dr
g
.No. & Code No. QTY Descri
p
tion Ratin
g
Materials Remarks
番号 図番 & コード番号 個数 品名
規
格材質 備考
1 AA29K02 1 TABLE テー
ブ
ルOT
2 PZ18500 1 TABLE テー
ブ
ルFE
2.1 PZ18281 1 SEAL シール PL
3 PZ18510 2 HANDLE 取手 FE
4 K51959 8 SCREW, C
/
R COUNTERSUNK 小ネジ 十穴皿 M06X008 ニッケルメッキ FE
5 PZ18520 1 BKT, SUPPORT BKT 支え FE
6 PZ18570 1 GRIP 握り OT
7 PZ18580 1 WASHER ワッシャ FE
8 PZ18590 1 SPRING ス
プ
リン
グ
FE
9 PZ18600 1 COLLAR カラー PL
10 PZ18560 1 BOLT, HEX ボルト 六角 FE
11 N1129A 2 NUT, NYLON ナット ナイロン M8 P=1.25 OT
12 K52621 1 SCREW, HEX SOCKET BUTTON 小ネジ 六角穴ボタン M08X025 FE
13 PZ18620 3 WASHER ワッシャ FE
14 PZ18550 1 TABLE テー
ブ
ルFE
15 PZ18610 1 COLLAR, CUSHION カラー クッション OT
16 PZ18530 1 ADJUSTER アジャスタ AL
17 K5250A 4 SCREW, C
/
R PAN 小ネジ 十穴鍋 M06X015 ニッケルメッキ FE
18 PZ18540 1 LEVER レバー FE
19 PZ18630 1 SPRING ス
プ
リン
グ
OT
20 AA29L03 1 CASTER キャスタ OT
21 PZ18640 1 SUPPORT COLUMN 支柱 FE
22 PZ18651 1 BASE ベース OT
23 PZ18660 5 CASTER キャスタ OT
337
PTS-NXT2-06JE Vol.1

AA
BB
BB
AA
䣙䢷䢸
䣙䢶䢶
䣙䢵䢴
1
2
11.1
11
3
4
5
6
7
8
9
5.1
5
5
5.1
10
10
30
31
32
33
34
35
37
36
38
39
39
39
51
52
54
56
57
55
58
59
59
112
111
123
61
61
61
64
64
65
104
105
106
107
110
109
108
60
62
63
42
43
44
45
45
45
46
47
48
50
49
13
13
15
18
26
68
67
23
71
75
75
76
76
77
77
78
78
73
72
74
81
85
82
83
84
79
80
87
88
89
92
93
94
97
96
98
95
100
100
99
101
102
103
91
90
86
21
20
17
18
17
19
27
28
29
82
22
24
25
12
14
16
114
115
116
117
118
120
121
122
119
113
53
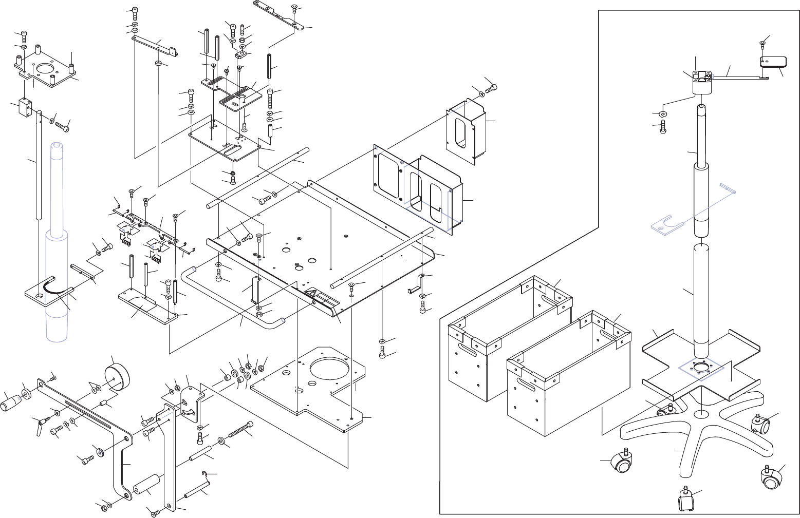
UK04601
ࢫࣉࣛࢩࣥࢢྎ㌴
63/,&,1*67$1'
338
PTS-NXT2-06JE Vol.1

SPLICING STAND
スプライシング台車
UK04601
No. Dr
g
.No. & Code No. QTY Descri
p
tion Ratin
g
Materials Remarks
番号 図番 & コード番号 個数 品名
規
格材質 備考
1 PZ18530 1 ADJUSTER アジャスタ AL
2 PM0E0H0 1 LEVER レバー FE
3 PZ18631 1 SPRING ス
プ
リン
グ
OT
4 PZ18651 1 BASE ベース OT
5 K2023F 3 CASTER キャスタ DNB-40C6.3 NS-6 OT
5.1 K2023L 2 CASTER キャスタ DN-40C6.3 NS-6 OT
6 PZ27642 1 SUPPORT COLUMN 支柱 OT
7 H5323A 4 BOLT, HEX SOCKET ボルト 六角穴 M06X018 FE
8 W1024A 4 WASHER, LOCK ワッシャ ス
プ
リン
グ
6M
/
MFE
9 PM0E0M1 1 CATCH, BOX 受け BOX FE
10 XB02462 2 BOX, DUST BOX ダスト OT
11 PB91052 1 HANDLE 取手 FE
11.1 K5359E SCREW, HEX SOCKET COUNTERSUNK 小ネジ 六角穴皿 M04X008 FE
12 PB061Y3 1 CATCH PAN 受け皿 FE
13 PM0D8D0 2 BAR バー FE
14 PB07CG0 1 HOOK フック FE
15 H5289A 1 BOLT, HEX SOCKET ボルト 六角穴 M04X012 FE
16 W1022A 1 WASHER, LOCK ワッシャ ス
プ
リン
グ
4M
/
MFE
17 H5288A 5 BOLT, HEX SOCKET ボルト 六角穴 M04X010 FE
18 W1022A 5 WASHER, LOCK ワッシャ ス
プ
リン
グ
4M
/
MFE
19 PB04KA1 1 HOOK フック FE
20 N10796 2 NUT, HEX ナット 六角 M04(3カ クロ) FE
21 W1022A 2 WASHER, LOCK ワッシャ ス
プ
リン
グ
4M
/
MFE
22 K5359H 2 SCREW, HEX SOCKET COUNTERSUNK 小ネジ 六角穴皿 M04X010 FE
23 T5003L 1 HANDLE 取手 THA-239-1 OT
24 H5340A 2 BOLT, HEX SOCKET ボルト 六角穴 M08X015 FE
25 W1025A 2 WASHER, LOCK ワッシャ ス
プ
リン
グ
8M
/
MFE
26 PZ18281 1 SEAL シール PL
27 PB78242 1 CASE ケース FE
28 H5287A 3 BOLT, HEX SOCKET ボルト 六角穴 M04X008 ゼンネジ FE
29 W1022A 3 WASHER, LOCK ワッシャ ス
プ
リン
グ
4M
/
MFE
30 PB78233 1 CASE ケース FE
31 H5274A 4 BOLT, HEX SOCKET ボルト 六角穴 M03X006 FE
32 W1021A 4 WASHER, LOCK ワッシャ ス
プ
リン
グ
3M
/
MFE
33 PB061T3 1 PLATE
プ
レート FE
34 PZ54840 1 PIPE パイ
プ
FE
35 H5283H 1 BOLT, HEX SOCKET ボルト 六角穴 M03X040 FE
36 W1021A 1 WASHER, LOCK ワッシャ ス
プ
リン
グ
3M
/
MFE
37 W1042A 1 WASHER, FLAT ワッシャ 平 4W- 3 FE
38 PM0K3C0 1 PLATE
プ
レート FE
39 PM0K3D0 3 BOLT ボルト FE
42 H5277A 3 BOLT, HEX SOCKET ボルト 六角穴 M03X012 FE
43 W1021A 3 WASHER, LOCK ワッシャ ス
プ
リン
グ
3M
/
MFE
44 W1042A 3 WASHER, FLAT ワッシャ 平 4W- 3 FE
45 S2312L 3 SUPPORT COLUMN 支柱 LSBRK7-60 OT
46 K5359E 3 SCREW, HEX SOCKET COUNTERSUNK 小ネジ 六角穴皿 M04X008 FE
47 PB056T0 1 LEVER レバー FE
48 H5263A 1 BOLT, HEX SOCKET ボルト 六角穴 M03X018 FE
49 W1021A 1 WASHER, LOCK ワッシャ ス
プ
リン
グ
3M
/
MFE
50 W1042A 1 WASHER, FLAT ワッシャ 平 4W- 3 FE
51 K5358C 1 SCREW, HEX SOCKET COUNTERSUNK 小ネジ 六角穴皿 M03X012 FE
339
PTS-NXT2-06JE Vol.1