PTS-NXT2-06JE.pdf - 第419页
M6 II-BED 2/7 M6 II-ベッド 2/7 UA01930 No. Dr g .No. & Code No. QTY Descri p tion Ratin g Materials Remarks 番号 図番 & コード番号 個数 品名 規 格材 質 備 考 1 PB04934 1 BKT BKT FE 2 K51986 2 SCREW, WASHER ASS'Y 小ネジ 座金組込み M04X04…

CC
AA
BB
CC
DD
DD
AA
BB
58
57
39
40
37
41
24
46
42
26
25
44
43
27
28
28
27
43
41
15
14
1
8
9
13
12
12
11
11
10
12
57
48
50
49
60
59
81
83
85
16
17
18
19
19.1
19
55
55.1
55.2
36
36.1
36.2
38
62
59
56
20
20
21
21
22
23
90
93
92
91
97
99
98
86
89
88
87
96
95
94
100
90.1
101
102
103
40.1
40.2
6
7
6
2
3
34
33
35
0,,࣋ࢵࢻ
0,,%('
UA01930
42
PTS-NXT2-06JE Vol.2

M6 II-BED 2/7
M6 II-ベッド 2/7
UA01930
No. Dr
g
.No. & Code No. QTY Descri
p
tion Ratin
g
Materials Remarks
番号 図番 & コード番号 個数 品名
規
格材質 備考
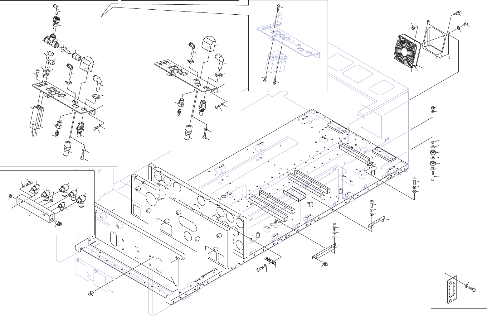
1 PB04934 1 BKT BKT FE
2 K51986 2 SCREW, WASHER ASS'Y 小ネジ 座金組込み M04X040 P=3 ナベセムス(3カ シロ) FE
3 N1080H 2 NUT, HEX ナット 六角 M04(ザツキ)(3カ シロ) FE
6 K1141G 2 GUARD, FIN ガード フィン 109-1000G OT
7 H30129 1 FAN ファン 9G1224G4D01 OT
8 H5501W 4 BOLT ボルト CBSS4-6 OT
9 W1011A 4 WASHER, CONICAL ワッシャ 皿 M- 4-L FE
10 PM00862 1 PIN ピン FE
11 XR00091 2 ROLLER ローラ OT
12 PB00522 3 WASHER ワッシャ FE
13 PM52611 1 WASHER ワッシャ FE
14 W1025A 1 WASHER, LOCK ワッシャ ス
プ
リン
グ
8M
/
MFE
15 N10799 1 NUT, HEX ナット 六角 M08(3カ クロ) FE
16 PM00325 1 MANIFOLD, AIR マニホールド エアー AL
17 H5329A 2 BOLT, HEX SOCKET ボルト 六角穴 M06X035 FE
18 W1024A 2 WASHER, LOCK ワッシャ ス
プ
リン
グ
6M
/
MFE
19 A3033A 2 PLUG 埋栓 PT1
/
4OT
19.1 Y3082Y 1 UNION, HALF ユニオン ハーフ KQ2H04-02S OT
20 Y3082E 2 UNION, ELBOW ユニオン エルボ KQ2VS08-02S OT
21 Y3122A 2 UNION, ELBOW ユニオン エルボ KQ2VS10-02S OT
22 Y3082M 1 UNION, ELBOW ユニオン エルボ KQ2VS06-02S OT
23 Y3121A 1 UNION, ELBOW ユニオン エルボ KQ2VS04-01S OT
24 2MGKBC00050 1 PLATE, SUPPORT
プ
レート 支え FE
25 H5298A 2 BOLT, HEX SOCKET ボルト 六角穴 M05X010 FE
26 W1023A 2 WASHER, LOCK ワッシャ ス
プ
リン
グ
5M
/
MFE
27 Y3079H 2 UNION, ELBOW ユニオン エルボ KQ2L06-99 OT
28 Y3086Y 2 UNION, HALF ユニオン ハーフ KQ2S06-M5 OT
33 XS00920 1 SW, PRESSURE SW
プ
レッシャ OT
34 XS00930 1 SW, PRESSURE SW
プ
レッシャ OT
35 H5273A 4 BOLT, HEX SOCKET ボルト 六角穴 M03X005 FE
36 2MGKBC000401 1 JOINT ジョイント AL
36.1 H5275A 2 BOLT, HEX SOCKET ボルト 六角穴 M03X008 FE
36.2 W1021A 2 WASHER, LOCK ワッシャ ス
プ
リン
グ
3M
/
MFE
37 K1158B 1 COUPLER カ
プ
ラ K4-04PM OT
38 Y30868 1 UNION, HALF ユニオン ハーフ KQ2S12-03S OT
39 PZ54110 1 TUBE チュー
ブ
OT
40 Y3023W 1 UNION ユニオン PEG12-8 OT
40.1 Y3027B 1 UNION ユニオン PWJ8-6 OT
40.2 Y3077T 1 UNION, ELBOW ユニオン エルボ KQ2L04-06 OT
41 K11578 1 COUPLER カ
プ
ラ KK4P-10E OT
42 A4066H 1 ELBOW エルボ KQ2L10-99 OT
43 Y3024A 1 UNION ユニオン PMF6-01 OT OPTION
44 K1161W 1 COUPLER カ
プ
ラ CPPE7-01 OT OPTION
46 Y3016B 1 UNION ユニオン PLLJ6 OT OPTION
48 2MGKBC00050 1 PLATE, SUPPORT
プ
レート 支え FE
49 H5298A 2 BOLT, HEX SOCKET ボルト 六角穴 M05X010 FE
50 W1023A 2 WASHER, LOCK ワッシャ ス
プ
リン
グ
5M
/
MFE
55 2MGKBC000101 1 JOINT ジョイント AL
55.1 H5275A 2 BOLT, HEX SOCKET ボルト 六角穴 M03X008 FE
55.2 W1021A 2 WASHER, LOCK ワッシャ ス
プ
リン
グ
3M
/
MFE
56 K1158B 1 COUPLER カ
プ
ラ K4-04PM OT
43
PTS-NXT2-06JE Vol.2

M6 II-BED 2/7
M6 II-ベッド 2/7
UA01930
No. Dr
g
.No. & Code No. QTY Descri
p
tion Ratin
g
Materials Remarks
番号 図番 & コード番号 個数 品名
規
格材質 備考
57 K11578 1 COUPLER カ
プ
ラ KK4P-10E OT
58 A4066H 1 ELBOW エルボ KQ2L10-99 OT
59 Y3024A 1 UNION ユニオン PMF6-01 OT OPTION
60 K1161W 1 COUPLER カ
プ
ラ CPPE7-01 OT OPTION
62 Y3016B 1 UNION ユニオン PLLJ6 OT OPTION
81 K5224A 2 SCREW, C
/
R PAN 小ネジ 十穴鍋 M03X006 ニッケルメッキ FE
83 K5224A 2 SCREW, C
/
R PAN 小ネジ 十穴鍋 M03X006 ニッケルメッキ FE
85 K51757 2 SCREW, C
/
R PAN 小ネジ 十穴鍋 M02.5X006 ステンレス FE
86 PP01571 1 BKT BKT FE
87 H5299A 2 BOLT, HEX SOCKET ボルト 六角穴 M05X012 FE
88 W1023A 2 WASHER, LOCK ワッシャ ス
プ
リン
グ
5M
/
MFE
89 W1044A 2 WASHER, FLAT ワッシャ 平 4W- 5 FE
90 PB14291 1 BKT BKT FE
90.1 K51999 2 SCREW, WASHER ASS'Y 小ネジ 座金組込み M04X012 P=3 ナベセムス(3カ シロ) FE
91 H5299A 2 BOLT, HEX SOCKET ボルト 六角穴 M05X012 FE
92 W1023A 2 WASHER, LOCK ワッシャ ス
プ
リン
グ
5M
/
MFE
93 W1044A 2 WASHER, FLAT ワッシャ 平 4W- 5 FE
94 H5299A 2 BOLT, HEX SOCKET ボルト 六角穴 M05X012 FE
95 W1023A 2 WASHER, LOCK ワッシャ ス
プ
リン
グ
5M
/
MFE
96 W1044A 2 WASHER, FLAT ワッシャ 平 4W- 5 FE
97 RB01844 1 BKT BKT OT
98 H5288A 2 BOLT, HEX SOCKET ボルト 六角穴 M04X010 FE
99 W1022A 2 WASHER, LOCK ワッシャ ス
プ
リン
グ
4M
/
MFE
100 K51981 8 SCREW, WASHER ASS'Y 小ネジ 座金組込み M03X006 P=4 ナベセムス(3カ シロ) FE
101 PB00KG1 1 BKT, WIRING BKT 配線 FE
102 H5297A 2 BOLT, HEX SOCKET ボルト 六角穴 M05X008 FE
103 W1023A 2 WASHER, LOCK ワッシャ ス
プ
リン
グ
5M
/
MFE
44
PTS-NXT2-06JE Vol.2